Fakta om boligen
- 6 personer
- 1 husdyr
- 2 soveværelser
- 0 badeværelser
Faciliteter
Aktivitetsfaciliteter
-
Cykeludlejning
Børnefaciliteter
-
Børneprogram
-
Familievenlig
-
Indendørs legehus
-
Legeplads
Grundlæggende faciliteter
-
Størrelse69 m²
Indkvartering Faciliteter
-
Fitnesscenter
-
Handicapvenlig
-
Internet i det offentlige område
Servicefaciliteter
-
Adgang for handicappede
-
Bruser
-
Dyr velkomne
-
Eisen
-
Flere soveværelser
-
Handicapvenlig
-
Husdyr tilladt eller efter anmodning
-
Hårtørrer
-
Internet - WiFi
-
Kaffemaskine
-
Komfur
-
Køleskab
-
Kørestolsvenligt
-
Mikroovn
-
Vandvarmer
Beskrivelse
Beskrivelsen foreligger desværre ikke på Dansk. Se teksten på Tysk nedenfor, eller se den maskinoversatte tekst på Dansk.
Camping Seehof, 3-Zimmer-Appartement Top 6
CAMPING & APPARTEMENTS SEEHOF – DIE FERIENANLAGE IM ALPBACHTAL
Unser familienfreundliches Ferienparadies liegt ruhig und idyllisch direkt am Ostufer des Reintalersees – umrahmt von Wiesen, Wäldern und einer beeindruckenden Bergkulisse.
Die großzügig parzellierten und teilweise terrassenförmig angelegten Panoramastellplätze bieten Strom-, TV- sowie großteils Zu- und Abwasseranschluss.
FÜR VERPFLEGUNG IST BESTENS GESORGT!
Im „Café Restaurant Seehof“ genießen Sie Tiroler Spezialitäten, internationale Gerichte sowie hausgemachte Kuchen und Eisvariationen – selbstverständlich mit traumhaftem Seeblick.
Unser Kiosk bietet täglich abends warme Speisen zum Mitnehmen. Der neue autonome Seehof Shop hat täglich von 7:00–22:00 Uhr geöffnet und versorgt Sie mit frischem Brot und Gebäck,
Getränken, Lebensmitteln inkl. Frischwaren. Zudem gibt es auch eine Auswahl wichtigsten Haushaltswaren und Hygieneartikel.
SANITÄRANLAGEN ZUM WOHLFÜHLEN!
Drei moderne Sanitärhäuser bieten gehobenen Komfort mit kostenlosen Einzelwaschkabinen, Babybädern sowie barrierefreien Sanitäranlagen und auch die sehr beliebten Miet- und Familienbäder.
Großzügige Geschirrspülbereiche, Geschirrspülmaschinen, Waschmaschinen, Trockner und Bügelmöglichkeiten stehen ebenfalls bereit. Für vierbeinige Begleiter gibt es eigene Hundeduschen.
Wichtig: es sind alle Anlagen barrierefrei zugänglich.
ANKOMMEN & GENIESSEN – APPARTEMENTS MIT TIROLER CHARME
Unsere gemütlichen Appartements sind ideal für alle, die Campingflair genießen möchten, aber eine Unterkunft mit mehr Komfort bevorzugen.
Die liebevoll eingerichteten Ferienwohnungen bieten voll ausgestattete Küchen, gemütliche Wohnbereiche und Balkone mit herrlichem Bergblick – perfekt für Paare, Familien und Freundesgruppen.
EIN PARADIES FÜR GROSS & KLEIN
Auf der weitläufigen Liegewiese begeistert der große Spielplatz mit Klettergeräten, Schaukeln und Rutschen. Fußballtore und Gokarts sorgen für Action, während das Indoor-Spielparadies auch an Regentagen für Spaß sorgt.
Für Jugendliche steht ein moderner Aufenthaltsraum mit Tischtennis, Hockeytisch und Tischfußball zur Verfügung – ideal für spannende Matches und gesellige Stunden.
SOMMER AM WÄRMSTEN BADESEE TIROLS
Die 12.000 m² große Privatliegewiese mit barrierefreiem Seezugang ist ausschließlich unseren Gästen vorbehalten – ideal zum Baden, Entspannen und Stand-Up-Paddeln direkt vom Seeufer aus.
Unser Campingplatz ist zudem ein perfekter Ausgangspunkt für Wanderungen, Radtouren und Ausflüge. Mit der kostenlosen Alpbachtal Card profitieren Sie von zahlreichen Vorteilen,
darunter die kostenlose Nutzung von 4 Sommerbergbahnen, freie Eintritte in Museen, geführte Wanderungen und vieles mehr.
WINTERZAUBER IN DEN TIROLER BERGEN
Im Winter zeigt sich der Reintalersee von seiner schönsten Seite: verschneite Berge, klare Luft und ein glitzernder See.
Direkt am Platz starten Sie in die Langlaufloipe, und der kostenlose Skibus bringt Sie bequem ins Ski Juwel Alpbachtal Wildschönau.
Wenn der See zufriert, wird er zur traumhaften Natur-Eisfläche zum Eislaufen und Stockschießen.
Unser familienfreundliches Ferienparadies liegt ruhig und idyllisch direkt am Ostufer des Reintalersees – umrahmt von Wiesen, Wäldern und einer beeindruckenden Bergkulisse.
Die großzügig parzellierten und teilweise terrassenförmig angelegten Panoramastellplätze bieten Strom-, TV- sowie großteils Zu- und Abwasseranschluss.
FÜR VERPFLEGUNG IST BESTENS GESORGT!
Im „Café Restaurant Seehof“ genießen Sie Tiroler Spezialitäten, internationale Gerichte sowie hausgemachte Kuchen und Eisvariationen – selbstverständlich mit traumhaftem Seeblick.
Unser Kiosk bietet täglich abends warme Speisen zum Mitnehmen. Der neue autonome Seehof Shop hat täglich von 7:00–22:00 Uhr geöffnet und versorgt Sie mit frischem Brot und Gebäck,
Getränken, Lebensmitteln inkl. Frischwaren. Zudem gibt es auch eine Auswahl wichtigsten Haushaltswaren und Hygieneartikel.
SANITÄRANLAGEN ZUM WOHLFÜHLEN!
Drei moderne Sanitärhäuser bieten gehobenen Komfort mit kostenlosen Einzelwaschkabinen, Babybädern sowie barrierefreien Sanitäranlagen und auch die sehr beliebten Miet- und Familienbäder.
Großzügige Geschirrspülbereiche, Geschirrspülmaschinen, Waschmaschinen, Trockner und Bügelmöglichkeiten stehen ebenfalls bereit. Für vierbeinige Begleiter gibt es eigene Hundeduschen.
Wichtig: es sind alle Anlagen barrierefrei zugänglich.
ANKOMMEN & GENIESSEN – APPARTEMENTS MIT TIROLER CHARME
Unsere gemütlichen Appartements sind ideal für alle, die Campingflair genießen möchten, aber eine Unterkunft mit mehr Komfort bevorzugen.
Die liebevoll eingerichteten Ferienwohnungen bieten voll ausgestattete Küchen, gemütliche Wohnbereiche und Balkone mit herrlichem Bergblick – perfekt für Paare, Familien und Freundesgruppen.
EIN PARADIES FÜR GROSS & KLEIN
Auf der weitläufigen Liegewiese begeistert der große Spielplatz mit Klettergeräten, Schaukeln und Rutschen. Fußballtore und Gokarts sorgen für Action, während das Indoor-Spielparadies auch an Regentagen für Spaß sorgt.
Für Jugendliche steht ein moderner Aufenthaltsraum mit Tischtennis, Hockeytisch und Tischfußball zur Verfügung – ideal für spannende Matches und gesellige Stunden.
SOMMER AM WÄRMSTEN BADESEE TIROLS
Die 12.000 m² große Privatliegewiese mit barrierefreiem Seezugang ist ausschließlich unseren Gästen vorbehalten – ideal zum Baden, Entspannen und Stand-Up-Paddeln direkt vom Seeufer aus.
Unser Campingplatz ist zudem ein perfekter Ausgangspunkt für Wanderungen, Radtouren und Ausflüge. Mit der kostenlosen Alpbachtal Card profitieren Sie von zahlreichen Vorteilen,
darunter die kostenlose Nutzung von 4 Sommerbergbahnen, freie Eintritte in Museen, geführte Wanderungen und vieles mehr.
WINTERZAUBER IN DEN TIROLER BERGEN
Im Winter zeigt sich der Reintalersee von seiner schönsten Seite: verschneite Berge, klare Luft und ein glitzernder See.
Direkt am Platz starten Sie in die Langlaufloipe, und der kostenlose Skibus bringt Sie bequem ins Ski Juwel Alpbachtal Wildschönau.
Wenn der See zufriert, wird er zur traumhaften Natur-Eisfläche zum Eislaufen und Stockschießen.
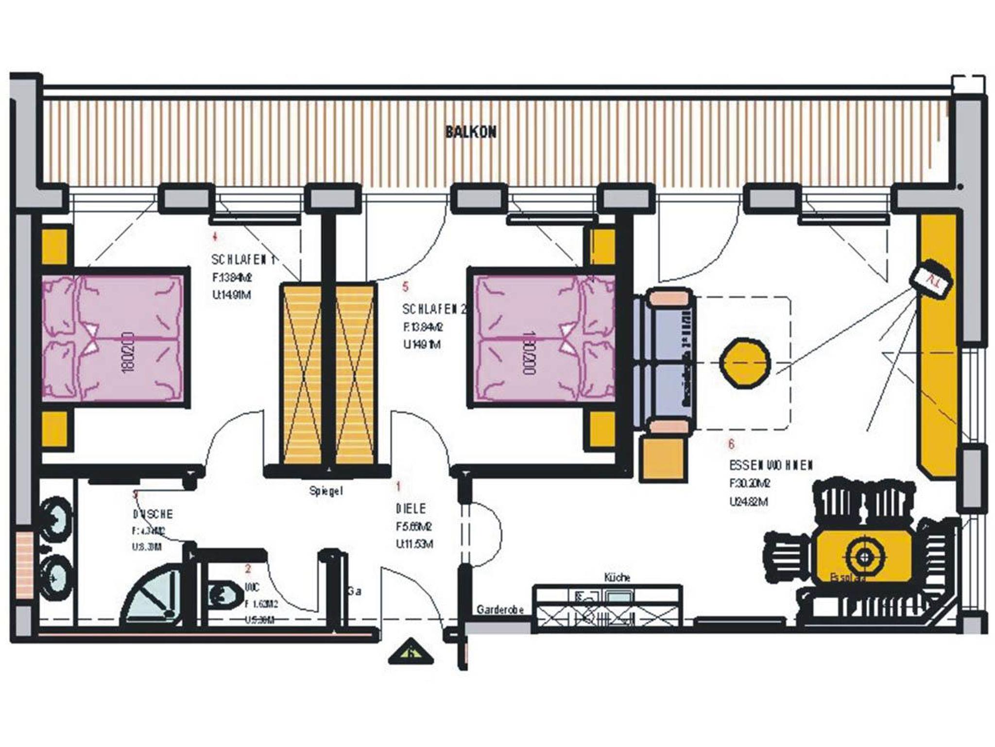
3-Zimmer-Appartement mit 69,50 m²,für 1-6 Personen, im 1. Obergeschoss, mit Blick auf das Rofangebirge und auf das Kaisergebirge, Fenster: Nord/Ost, Balkon: Nord Austattung: 2 Doppelbettzimmer, 1 Sofa im Wohnbereich - zum Ausziehen als Doppelbett verwendbar, Kochnische und gemütliche Eckbank, Bad: Dusche und Doppelwaschbecken; WC extra, Vorraum; inkl. Bettwäsche.
Haustiere und das Rauchen auf den Zimmern sind nicht erlaubt! Küche: Elektroherd mit 2 Kochfeldern, Dunstabzug, Kühlschrank mit Gefrierfach, Mikrowelle, Kaffeemaschine, Wasserkocher, Koch- und Speisegeschirr, Geschirrspüler, Geschirrtücher.
Bad: inkl. Föhn, pro Gast ist 1 Duschtuch und 1 Handtuch im Appartement. Handtücher für den Badesee bitte mitbringen!
Sonstiges: TV inkl. Radio, Internet gegen Gebühr. Die Betten sind bereits bezogen.
Haustiere und das Rauchen auf den Zimmern sind nicht erlaubt! Küche: Elektroherd mit 2 Kochfeldern, Dunstabzug, Kühlschrank mit Gefrierfach, Mikrowelle, Kaffeemaschine, Wasserkocher, Koch- und Speisegeschirr, Geschirrspüler, Geschirrtücher.
Bad: inkl. Föhn, pro Gast ist 1 Duschtuch und 1 Handtuch im Appartement. Handtücher für den Badesee bitte mitbringen!
Sonstiges: TV inkl. Radio, Internet gegen Gebühr. Die Betten sind bereits bezogen.
Afstande fra ferieboligen og placering på kort
Nærtliggende sommerhuse
Er I flere familier, der gerne vil bo tæt på hinanden kan I søge efter nærtliggende sommerhuseSe nabohuse
Priser og kalender
Kalender
Varighed
Personer
Pris
Periode
- Ankomst
- Afrejse
- Varighed
- 1 uge
Personer
Ingen personer er valgt
Bemærk
Ankomst er ikke valgt.
Der er ikke valgt personer.