Fakta om boligen
- 12 personer
- Ingen husdyr
- Rygning ikke tilladt
- 5 soveværelser
- 4 badeværelser
Faciliteter
Afstand
-
Busstop1,1 km
-
Centrum1,2 km
-
Langrend100 m
-
Mad1,7 km
-
Offentlig svømmehal4,3 km
-
Offentlig swimmingpool4,3 km
-
Restauranter600 m
-
Skibus100 m
-
Skilift100 m
-
Skipiste100 m
Andre
-
Skistøvlevarmere
-
Terrasse
Beliggenhed
-
An der Piste
-
I en feriepark
-
På landet
Byggestatus
-
Fritliggende
Fritids aktiviteter
-
Skiing
-
Swimming pool
Generel Information
-
Boligareal250 m²
-
Have
-
Ikkeryger
-
Sjov for børn
-
WiFi
Køkkenudstyr
-
Elkedel
-
KaffemaskineFilter
-
Køleskab - Fryser
-
Mikroovn
-
Opvaskemaskine
-
Ovn
Parkfaciliteter
-
Internetadgang
Rundt om huset
-
Carport
-
Havemøbler
-
Parkering
-
Swimming poolDelt med andre gæster, naturlig svømmedam
-
Terrasse
-
Terrassevarmer
Sanitet / Vask
-
Badekar
-
Bruser
-
Håndvask
-
Sauna
-
Toilet
-
Tørretumbler
-
Vaskemaskine
Type
-
Chalet
Værelsesudstyr
-
Pejs
-
TV
Beskrivelse
Nationalpark Chalet Malhamhorn
Bolig:
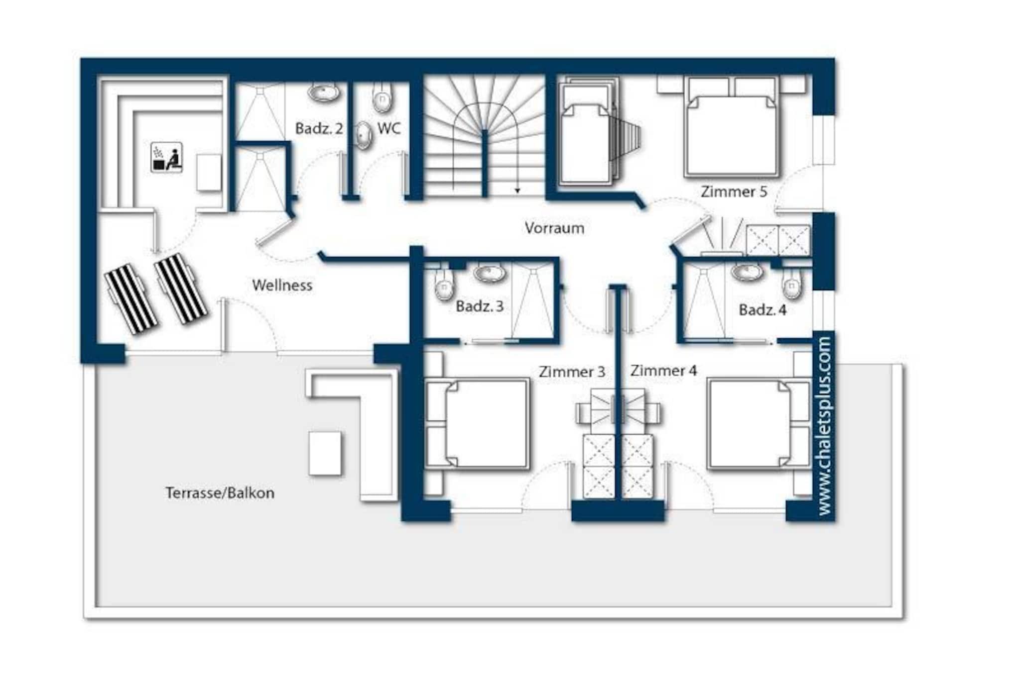
Dette meget luksuriøse, fritliggende chalet, som I vil bebo helt alene, er ideelt for grupper, der rejser sammen og ønsker at tilbringe tid sammen, men også har et behov for privatliv. Begge dele er muligt i dette fantastiske chalet! Det består af to komplette, fuldt møblerede og meget luksuriøse lejligheder. Lejlighederne har begge deres egen indgang, men I kan nemt nå begge hoveddøre via en trappe på siden af chaleten. Da chaleten er bygget på en skråning, er indgangen til den øverste lejlighed i stueetagen. Det betyder, at I kan nå den anden lejlighed, som ligger en etage lavere, via en trappe. Her har I en dejlig stue, et fuldt udstyret åbent køkken, to soveværelser og et badeværelse. Udenfor finder I en terrasse. Det store hus strækker sig over to etager med den attraktive stue og det helt åbne køkken nedenunder. Her finder I også en dejlig sauna, et badeværelse, et skiopbevaringsrum med skistøvletørrer og adgang til den behagelige terrasse med terrassevarmer. På øverste etage har I tre soveværelser til rådighed; et af dem med eget badeværelse, et separat badeværelse og et opbevaringsrum med vaskemaskine og tørretumbler. To af soveværelserne har adgang til balkonen. På grund af den sydvendte beliggenhed har du masser af sol i begge lejligheder og på altanerne og terrasserne, samt en smuk udsigt over dalen og de omkringliggende bjerge. Havemøbler er til rådighed, og du har tre parkeringspladser ved hytten, hvoraf to er overdækkede. Det betyder, at du i alt har fem soveværelser og fire badeværelser til din rådighed. Glædelig ferie!
Layout:
Stueetage: (entre(toilet), Stue(Fjernsyn, pejs), åbent køkken(elkedel, kaffemaskine(kaffetragt), ovn, mikrobølgeovn, opvaskemaskine , køle-fryseskab), badeværelse(bruser, håndvask), loungerum(sauna), pulterkammer, skiopbevaring(skistøvlevarmere), Internetadgang, balkon, terrasse, terrassevarmer) På 1. etage: (soveværelse(dobbeltseng), soveværelse(dobbeltseng, køjeseng), Soveværelse med badeværelse(dobbeltseng, bruser, håndvask, toilet), badeværelse(bruser, håndvask, toilet), Repos, pulterkammer(tørretumbler, vaskemaskine), balkon) Kælderetage: (entre, Stue(Fjernsyn), åbent køkken(elkedel, kaffemaskine(kaffetragt), ovn, opvaskemaskine , køle-fryseskab), soveværelse(dobbeltseng), soveværelse(køjeseng), badeværelse(badekar, bruser, håndvask, toilet), pulterkammer, terrasse) carport, Internetadgang, havemøbler, parkering, parkering, swimmingpool(deles med andre gæster, naturlig svømmedam)
Bemærk:
Udgifter til opladning af elbiler eller hybridbiler skal altid betales særskillt. Medbring din voucher og du vil modtage 10 % rabat på leje af ski ved tl2 i tl3 Parkeringsmuligheder 3
Bolig:
Dette meget luksuriøse, fritliggende chalet, som I vil bebo helt alene, er ideelt for grupper, der rejser sammen og ønsker at tilbringe tid sammen, men også har et behov for privatliv. Begge dele er muligt i dette fantastiske chalet! Det består af to komplette, fuldt møblerede og meget luksuriøse lejligheder. Lejlighederne har begge deres egen indgang, men I kan nemt nå begge hoveddøre via en trappe på siden af chaleten. Da chaleten er bygget på en skråning, er indgangen til den øverste lejlighed i stueetagen. Det betyder, at I kan nå den anden lejlighed, som ligger en etage lavere, via en trappe. Her har I en dejlig stue, et fuldt udstyret åbent køkken, to soveværelser og et badeværelse. Udenfor finder I en terrasse. Det store hus strækker sig over to etager med den attraktive stue og det helt åbne køkken nedenunder. Her finder I også en dejlig sauna, et badeværelse, et skiopbevaringsrum med skistøvletørrer og adgang til den behagelige terrasse med terrassevarmer. På øverste etage har I tre soveværelser til rådighed; et af dem med eget badeværelse, et separat badeværelse og et opbevaringsrum med vaskemaskine og tørretumbler. To af soveværelserne har adgang til balkonen. På grund af den sydvendte beliggenhed har du masser af sol i begge lejligheder og på altanerne og terrasserne, samt en smuk udsigt over dalen og de omkringliggende bjerge. Havemøbler er til rådighed, og du har tre parkeringspladser ved hytten, hvoraf to er overdækkede. Det betyder, at du i alt har fem soveværelser og fire badeværelser til din rådighed. Glædelig ferie!
Layout:
Stueetage: (entre(toilet), Stue(Fjernsyn, pejs), åbent køkken(elkedel, kaffemaskine(kaffetragt), ovn, mikrobølgeovn, opvaskemaskine , køle-fryseskab), badeværelse(bruser, håndvask), loungerum(sauna), pulterkammer, skiopbevaring(skistøvlevarmere), Internetadgang, balkon, terrasse, terrassevarmer) På 1. etage: (soveværelse(dobbeltseng), soveværelse(dobbeltseng, køjeseng), Soveværelse med badeværelse(dobbeltseng, bruser, håndvask, toilet), badeværelse(bruser, håndvask, toilet), Repos, pulterkammer(tørretumbler, vaskemaskine), balkon) Kælderetage: (entre, Stue(Fjernsyn), åbent køkken(elkedel, kaffemaskine(kaffetragt), ovn, opvaskemaskine , køle-fryseskab), soveværelse(dobbeltseng), soveværelse(køjeseng), badeværelse(badekar, bruser, håndvask, toilet), pulterkammer, terrasse) carport, Internetadgang, havemøbler, parkering, parkering, swimmingpool(deles med andre gæster, naturlig svømmedam)
Bemærk:
Udgifter til opladning af elbiler eller hybridbiler skal altid betales særskillt. Medbring din voucher og du vil modtage 10 % rabat på leje af ski ved tl2 i tl3 Parkeringsmuligheder 3
Afstande fra ferieboligen og placering på kort
- Busstop 1,1 km
- Centrum 1,2 km
- Langrend 100 m
- Mad 1,7 km
- Offentlig svømmehal 4,3 km
- Offentlig swimmingpool 4,3 km
- Restauranter 600 m
- Skibus 100 m
- Skilift 100 m
- Skipiste 100 m
Nærtliggende sommerhuse
Er I flere familier, der gerne vil bo tæt på hinanden kan I søge efter nærtliggende sommerhuseSe nabohuse
Priser og kalender
Kalender
Varighed
Personer
Pris
Periode
- Ankomst
- Afrejse
- Varighed
- 1 uge
Personer
Ingen personer er valgt
Bemærk
Ankomst er ikke valgt.
Der er ikke valgt personer.