Fakta om boligen
- 5 personer
- Ingen husdyr
- Rygning ikke tilladt
- 0 soveværelser
- 1 badeværelse
- Indkøb 500
Faciliteter
Afstande
-
Til bjergbanen/svævebanen300 m
-
Til busstoppestedet300 m
-
Til centrum600 m
-
Til pengeautomaten/banken600 m
-
Til restauranten200 m
-
Til skiområdet200 m
-
Til stien300 m
-
Til supermarkedet500 m
-
Til turistinformationen600 m
-
Til vandrestien300 m
Aktivitetsfaciliteter
-
Cykelvenlig
-
Klettern
-
Langrend
Børnefaciliteter
-
Familievenlig
-
Småbørns udstyr
Grundlæggende faciliteter
-
Størrelse50 m²
Indkvartering Faciliteter
-
Allergivenlig
-
Cykelrum aflåselig
-
Cykelvenlig
-
El-cykel ladestation
-
Ikke-ryger hus
-
Internet i det offentlige område
-
Skirum
-
Tørrerum
-
Vandrer venlig
Mad faciliteter
-
Brødservice
Omgivende faciliteter
-
Parkeringsplads
Servicefaciliteter
-
Bad / WC
-
Balkon
-
Bjergudsigt
-
Brødservice
-
Dobbeltseng
-
Dyr ikke tilladt
-
Højstol
-
Håndklæder
-
Ikke-rygere
-
Internet - WiFi
-
Kabel/Sat
-
Køkken (åbent)
-
Køleskab
-
Morgenmadsservice
-
Mulighed for fryser
-
Opvarmet
-
Opvaskemaskine
-
Ovn
-
Panoramaudsigt
-
Rejseseng/krybbe
-
Røgalarm
-
Sauna
-
Sengetøj
-
Sofa seng
-
TV
-
TV - fladskærm
Beskrivelse
Beskrivelsen foreligger desværre ikke på Dansk. Se teksten på Tysk nedenfor, eller se den maskinoversatte tekst på Dansk.
Appartement BergZeit, Appartement Zeit
Das Appartement BergZeit ist ruhig, doch sehr zentral gelegen.
Wir bieten Euch zwei komfortabel und modern eingerichtete 50 m² Ferienwohnungen mit Südbalkon.
Für zusätzlichen Komfort verwöhnen wir Euch gerne mit unserer BergZeit-Frühstückskistô mit selbstgemachten und regionalen Produkten sowie unserem BergZeit-Brotsäckle, gefüllt mit selbst gebackenen Brötchen.
Unsere zentrale Lage bietet einen optimalen Ausgangspunkt für jegliche Unternehmungen.
Startet direkt vom Haus aus ins Ski-, Berg- und Bikevergnügen, ohne Bus oder Auto. Perfekter Standort für „Ski-In/Ski-Out“.
Nach einem aktiven Tag mit viel Frischluft in unserem Naturjuwel könnt Ihr in der hauseigenen BergZeit-Sauna abschalten und entspannen.
Spatenstich war im Juni 2021. Seit Juli 2022 heißen wir Euch in unserem mit viel Liebe, Schweiß und etwas Blut gebautem Haus recht herzlich Willkommen!
Wir freuen uns!
Fabienne&Daniel
Wir bieten Euch zwei komfortabel und modern eingerichtete 50 m² Ferienwohnungen mit Südbalkon.
Für zusätzlichen Komfort verwöhnen wir Euch gerne mit unserer BergZeit-Frühstückskistô mit selbstgemachten und regionalen Produkten sowie unserem BergZeit-Brotsäckle, gefüllt mit selbst gebackenen Brötchen.
Unsere zentrale Lage bietet einen optimalen Ausgangspunkt für jegliche Unternehmungen.
Startet direkt vom Haus aus ins Ski-, Berg- und Bikevergnügen, ohne Bus oder Auto. Perfekter Standort für „Ski-In/Ski-Out“.
Nach einem aktiven Tag mit viel Frischluft in unserem Naturjuwel könnt Ihr in der hauseigenen BergZeit-Sauna abschalten und entspannen.
Spatenstich war im Juni 2021. Seit Juli 2022 heißen wir Euch in unserem mit viel Liebe, Schweiß und etwas Blut gebautem Haus recht herzlich Willkommen!
Wir freuen uns!
Fabienne&Daniel
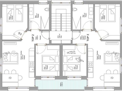
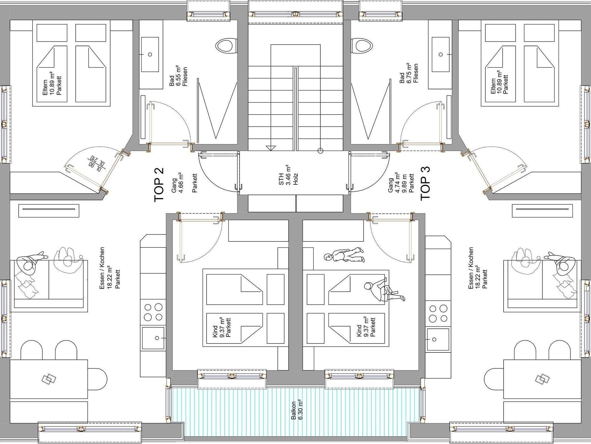
50m² Genussfläche mit Südbalkon, Neubau, modern eingerichtet, vollausgestattete Küchenzeile, ausziehbare Chillcouch, 2 Doppelzimmer, Bad mit Dusche/WC, Flatscreen -TV mit Netflix, Parkettboden, E-Bike Lademöglichkeit, versperrbarer Ski- und Fahrradraum, Kleider- und Schuhtrockner, Sauna im Haus, selbstgebackenes Brotsäckle und Frühstückskistô mit selbstgemachten und regionalen Produkten
Vor Ort
Saunabenützung
Saunabenützung
Afstande fra ferieboligen og placering på kort
- Til bjergbanen/svævebanen 300 m
- Til busstoppestedet 300 m
- Til centrum 600 m
- Til pengeautomaten/banken 600 m
- Til restauranten 200 m
- Til skiområdet 200 m
- Til stien 300 m
- Til supermarkedet 500 m
- Til turistinformationen 600 m
- Til vandrestien 300 m
Nærtliggende sommerhuse
Er I flere familier, der gerne vil bo tæt på hinanden kan I søge efter nærtliggende sommerhuseSe nabohuse
Priser og kalender
Kalender
Varighed
Personer
Pris
Periode
- Ankomst
- Afrejse
- Varighed
- 1 uge
Personer
Ingen personer er valgt
Bemærk
Ankomst er ikke valgt.
Der er ikke valgt personer.