Hyggeligt sommerhus med skøn beliggenhed ved Vesterhavet

Dortheasvej - Bjerregård - 6960 - Hvide Sande

4 personer
7 overnatninger
Fra DKK 4.013,-
Hyggeligt træsommerhus i Bjerregård med skønne terrasser og kun 500 m til Vesterhavet.

Fakta om boligen

  • 4 personer
  • Ingen husdyr
  • Rygning ikke tilladt
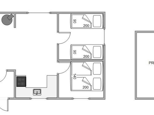
  • 3 soveværelser
  • 1 badeværelse
  • Vand 500
  • Indkøb 700

Faciliteter

Opholdsrum

  • CD afspiller
  • DVD-afspiller
    1
  • Gulv: Træ
  • Radio
  • Brændeovn
  • Fladskærms-TV
    1

Soverum

  • Gulv: Træ
  • Dobbeltsenge
    2
  • Enkeltsenge
    2
  • Sovepladser
    6
  • Soverum
    3
  • 1. soverum/sengestørrelser
    160x200
  • 2. soverum/sengestørrelser
    140x200
  • 3. soverum/sengestørrelser
    2x90x200

Køkken

  • Komfur: Induktion m. ovn
  • Køleskab
  • Opvaskemaskine
  • Mikroovn
  • Separat fryser /L
    40

Baderum

  • Gulvvarme bad
  • Antal badeværelser
    1

Objektinfo - Inde

  • Areal: Hus m²
    75
  • Byggeår
    2000
  • Ikke ryger hus
  • Personantal
    4
  • Tyske tv-programmer
  • Tørretumbler
  • Varme: Elvarme
  • Varme: Varmepumpe luft til luft
  • Vaskemaskine
  • Satellit (tyske kanaler samt et par danske)
  • Gratis fiber Internet
  • Jubilæumsmønt er udleveret

Objektinfo - ude

  • Afstand i meter: Hav
    500 m
  • Afstand i meter: Indkøb
    700 m
  • Grundens areal i m2
    1284
  • Grill
  • Havemøbler
  • Solvogne
  • Parasol
  • Terrasse: åben
  • Terrasse: Afskærmet
  • Terrasse: Lukket
  • Terrasse: Overdækket
  • Redskabsrum
  • Naturgrund
  • Affald hentes:
    Onsdag
  • Affald: Helårstømning
  • Skraldespand - Liter
    240
  • Ladestik til el-bil

Koncepter

  • Skiftedag: Fredag
  • Vandaflæsning

Miniferie

  • Ja, tak - tillad miniferie

Beskrivelse

På en lyngklædt grund i Bjerregård står dette skønne feriehus og venter på jer. Træhuset udstråler ægte ferieidyl, og indenfor byder en venlig og indbydende indretning jer varmt velkommen i jeres feriehjem. De skønne, læfyldte terrasser giver jer mulighed for at nyde naturen helt tæt på, og kun 500 meter væk ligger det brusende Vesterhav.

Rummeligt og indbydende med klassisk sommerhuscharme

Det fine træhus på Dortheasvej 43 er fint og imødekommende fra top til tå. I vil straks blive budt velkommen af de venlige omgivelser, hvor lyse træelementer og masser af vinduer dominerer og skaber en rummelig følelse, samtidig med, at de tilfører huset den helt klassiske sommerhuscharme.

Feriehuset er indrettet med kærlighed, og det ses tydeligt i de mange små, dekorative detaljer, som gør indretningen endnu mere hjemlig. Her vil I med garanti føle jer godt tilpas med op til 4 personer.

Sommerhuset har flere fine highlights både indvendigt og udvendigt. Indenfor finder I brændeovnen, som vil varme jer på de kolde dage, og i huset er der installeret en hurtig og stabil internetforbindelse, som lader hele familien være på nettet på samme tid uden problemer.

Find altid sol og læ på de skønne terrasser på Dortheasvej 43

Udvendigt hører 2 skønne terrasser med, som begge er godt afskærmede og helt lukkede. Her kan I altid finde både sol og læ, og ligegyldigt hvad vejret melder, kan I nyde den friske luft fra havemøblerne uden problemer.

Under den overdækkede del af terrassen kan der arrangeres en hyggelig grillmiddag i aftensolen, og selv når regnen melder sig, kan der tændes op i grillen - mens maden kan spises indenfor omkring spisebordet.

Den skønne beliggenhed er bestemt værd at nævne, og på Dortheasvej bor I kun 500 meter fra Vesterhavet. På få minutter når I den brede strand til fods, og året rundt byder den på nye og storslåede naturoplevelser for både store og små.

Lademuligheden for el bilen er en ladestander, medbring eget kabel (type 2 stik).

Afstande fra ferieboligen og placering på kort

  • Afstand i meter: Hav 500 m
  • Afstand i meter: Indkøb 700 m
Der tages forbehold for evt. fejlplacering. Husadressen fremgår af lejebeviset.

Vores gæstevurderinger Eksterne vurderinger

4,0
Baseret på 1 vurdering
Vurderet d. 19-07-2021
5
(0)
4
(1)
3
(0)
2
(0)
1
(0)
Kommentarer
1 vurdering har kommentar på dansk.
4,0
2 voksne 3 børn 0 husdyr 7 overnatninger 2021 juli
Lidt slidt nogle steder, men rigtig dejligt hus og god indretning.

Priser og kalender

Kalender

Ankomst
Forrige Næste
  • maj 2026
    mationtofr
    18123
    1945678910
    2011121314151617
    2118192021222324
    2225262728293031
    23
  • juni 2026
    mationtofr
    231234567
    24891011121314
    2515161718192021
    2622232425262728
    272930
    28
   Se om emnet er ledigt på den valgte dato
Ledig
Optaget
   Ankomst mulig
Varighed

Pris

Periode
Ankomst
Afrejse
Varighed
1 uge
Personer
Op til 4 personer

Bemærk

Ankomst er ikke valgt.
Aftale- og lejebetingelser