Hyggeligt sommerhus med sauna nær Blåvand

Vandflodvej - 6857 - Blåvand

6 personer
7 overnatninger
Fra DKK 4.123,-
Inkl. rengøring
Dejligt sommerhus i Blåvand med udesauna, udestue og nærhed til både strand og centrum.

Fakta om boligen

  • 6 personer
  • Ingen husdyr
  • Rygning ikke tilladt
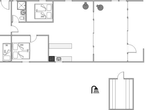
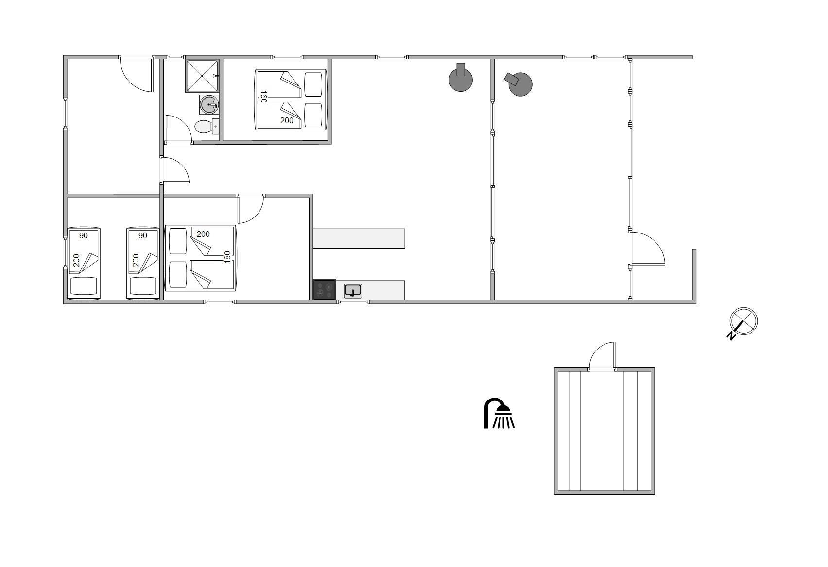
  • 3 soveværelser
  • 1 badeværelse
  • Vand 2500
  • Indkøb 750

Faciliteter

Opholdsrum

  • Gulv: Trælaminat
  • Brændeovn
  • Fladskærms-TV
    1

Soverum

  • Gulv: Trælaminat
  • Dobbeltsenge
    2
  • Enkeltsenge
    2
  • Sovepladser
    6
  • Soverum
    3
  • 1. soverum/sengestørrelser
    180X200
  • 2. soverum/sengestørrelser
    160x200
  • 3. soverum/sengestørrelser
    2x90x200

Køkken

  • Komfur: El m. ovn
  • Køleskab
  • Opvaskemaskine
  • Mikroovn
  • Separat fryser /L
    30

Baderum

  • Gulvvarme bad
  • Antal badeværelser
    1

Objektinfo - Inde

  • Areal: Hus m²
    127
  • Byggeår
    1975
  • Barneseng
    1
  • Barnestol
    1
  • Ikke ryger hus
  • Personantal
    6
  • Danske TV-kanaler (Betalingskanaler)
  • Tyske tv-programmer
  • Varme: Elvarme
  • Varme: Solvarme anlæg
  • Varme: Varmepumpe luft til luft
  • Vaskemaskine
  • Udestue
  • Gratis fiber Internet
  • Jubilæumsmønt er udleveret

Objektinfo - ude

  • Afstand i meter: Hav
    2,5 km
  • Afstand i meter: Indkøb
    750 m
  • Grundens areal i m2
    2236
  • Gynge
  • Sandkasse
  • Havemøbler
  • Solvogne
  • Parasol
  • Terrasse: åben
  • Terrasse: Overdækket
  • Redskabsrum
  • Plænegrund
  • Affald hentes:
    Tirsdag
  • Affald: Helårstømning
  • Skraldespand - Liter
    140
  • Ladestik til el-bil
  • Udesauna
  • Udebruser (April - 1. november)

Koncepter

  • Skiftedag: Lørdag
  • Varme: 24 timer f. ankomst

Miniferie

  • Ja, tak - tillad miniferie

Beskrivelse

På Vandflodvej 32 i Blåvand står dette dejlige sommerhus klar til jeres næste ferie. Med plads til op til 6 personer er det et oplagt valg til en ferie for familie eller venner. På jeres ferie i sommerhuset kan I forkæle jer selv med ekstra afslapning i udesaunaen, og derudover byder feriehuset også på en hyggelig udestue.

Hyggelig indretning med udestue

Sommerhuset på Vandflodvej 32 i Blåvand byder på en hyggelig indretning, og her vil I utvivlsomt hurtigt føle jer godt tilpas, så snart I ankommer. Her udgør alrummet feriehusets hjerte, hvor I kan samles til madlavning, spil og film. Fra alrummet kan I desuden træde ud i den hyggelige udestue, hvor I kan nyde udsigten til sommerhusets skønne have.

I det 127 kvadratmeter store feriehus venter jer desuden 3 gode soveværelser med i alt 2 dobbeltsenge og 2 enkeltsenge samt 1 badeværelse. I badeværelset er der desuden gulvvarme, så I slipper for at fryse om tæerne fra morgenstunden.

Dejligt udeområde med udesauna, udebruser, terrasse og have

Sommerhuset byder på et dejligt udeområde, der er omkranset af træer, så I har masser af privatliv i løbet af jeres ferie. På udeområdet venter jer en skøn have, hvor der også er tænkt på feriens yngste gæster, som kan få glæde af sandkassen og gyngestativet.

På udeområdet finder I også sommerhusets højdepunkt: udesaunaen. Her kan I sætte jer ind, når I vil forkæle jer selv med ekstra afslapning på ferien. I den dejlige varme kan I virkelig komme helt ned i gear. I kan også sætte jer ind i saunaen efter en frisk gåtur eller en dukkert i Vesterhavet, så I kan blive varmet igennem igen. Har I været ved stranden, kan I skylle det sidste sand af tæerne under udebruseren, der står til jeres rådighed fra 1. april til 31. oktober.

Udendørs har I desuden en skøn terrasse, der er delvist overdækket, hvor I kan slappe af og nyde ferien fra en god plads i solen, hvor I kan læne jer tilbage i liggestole og havemøbler. Hvis I trænger til en pause fra solen, kan I sætte jer ind under terrassens overdækkede del.

Ferieoplevelser for hele familien i Blåvand

I har mange skønne ferieoplevelser i vente, når I holder ferie i Blåvand. Her er der mange forskellige ting, I kan tage ud at opleve i løbet af jeres ferie. I kan for eksempel tage en tur til Danmarks vestligste punkt, Blåvandshuk Fyr, hvor I kan opleve en fantastisk udsigt fra toppen af fyret.

På jeres ferie i Blåvand er Vesterhavet også et af de steder, I bør besøge. De smukke, brede sandstrande og brusende blå bølger er værd at besøge på alle tider af året, og fra jeres ferieadresse er der 2,5 kilometer dertil.

Fra sommerhuset har I desuden ikke langt til centrum af Blåvand. I har blot 750 meter til jeres nærmeste indkøbsmulighed, og I Blåvand er der både supermarkeder og specialbutikker, I kan besøge, når I skal handle ind.

Lademuligheden for el bilen er en ladestander med type 2 stik.

Afstande fra ferieboligen og placering på kort

  • Afstand i meter: Hav 2,5 km
  • Afstand i meter: Indkøb 750 m
Der tages forbehold for evt. fejlplacering. Husadressen fremgår af lejebeviset.

Priser og kalender

Kalender

Ankomst
Forrige Næste
  • april 2026
    mationtofr
    1412345
    156789101112
    1613141516171819
    1720212223242526
    1827282930
    19
  • maj 2026
    mationtofr
    18123
    1945678910
    2011121314151617
    2118192021222324
    2225262728293031
    23
   Se om emnet er ledigt på den valgte dato
Ledig
Optaget
   Ankomst mulig
Varighed

Pris

Periode
Ankomst
Afrejse
Varighed
1 uge
Personer
Op til 6 personer

Bemærk

Ankomst er ikke valgt.
Aftale- og lejebetingelser