Hyggeligt bjælkesommerhus med anneks nær strand
Bugten - Bratten - 9981 - Jerup
6 personer
Hyggeligt bjælkesommerhus med stort anneks og terrasse nær børnevenlig strand i Jerup.
Fakta om boligen
- 6 personer
- 1 husdyr
- Rygning ikke tilladt
- 4 soveværelser
- 2 badeværelser
- Vand 200
- Indkøb 800
Faciliteter
Adgang til ferieboligen
-
Nøgleboks med kode
Bemærk
-
Ingen håndværkere efter anmodning
-
Ingen ungdomsgrupper efter anmodning
-
Rygning er forbudt
Indretning
-
Antal voksne inkl. 4-11 år6
-
Bebygget areal100 m²
-
Brændeovn1
-
Byggeår1977
-
Feriebolig
-
Frysekapacitet (antal liter)100
-
Husdyr1
-
Højstol1
-
Renoveringsår2015
-
Varmepumpe
-
Vaskemaskine1
Køkken
-
Antal keramiske kogeplader4
-
Køleskab1
-
Opvaskemaskine1
-
Varmluftovn1
Multimedier
-
> 3 danske kanaler
-
> 3 tyske kanaler
-
Antal tv'er2
-
Download200
-
Radio
-
Smart-Tv2
-
Trådløst internet
-
Upload200
Soveforhold
-
Anneks (antal sovepladser)
-
Antal soveværelser4
-
Dobbeltseng (antal sovepladser)2
-
Justerbar seng (antal sovepladser)2
-
Soveplads ikke i soveværelset
-
Sovesofa, dobbelt (antal sovepladser)4
Toilet og bad
-
Antal badeværelser2
-
Antal toiletter2
-
Brusekabine
-
Gulvvarme2
Udenfor
-
Butik800 m
-
Grill3
-
Hav200 m
-
Natursted
-
Overdækket terrasse10 m²
-
Parkeringsplads ved huset
-
Størrelse af grunden2500 m²
-
Terrasse70 m²
Beskrivelse
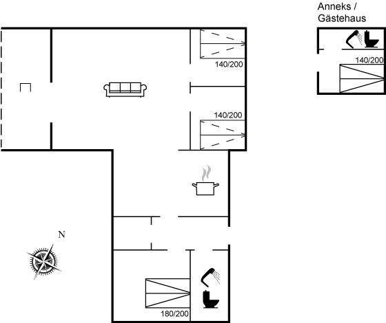
Hyggeligt og lyst indrettet bjælkesommerhus beliggende på en meget stor og lukket grund med mange høje træer i et roligt og naturskønt område tæt på børnevenlig badestrand. Til huset hører skønne terrassearealer samt et rummeligt anneks med eget bad og toilet, og hvor 2 af sovepladserne befinder sig.
Indretning
Sommerhuset egner sig til 6 personer. Ferieboligen er på 100 m² og er bygget i 1977. I 2015 gennemgik ferieboligen en delvis renovering. Det er tilladt at medbringe 1 husdyr. Ferieboligen er udstyret med energibesparende varmepumpe. Ferieboligen har vaskemaskine. Frysekapacitet på 100 liter. Der er desuden brændeovn. Til de små er der 1 stk. barnestol.
Udenfor
Ferieboligen er beliggende på en 2500 m² stor naturgrund. Der er 200 m til havet. Nærmeste forretning er beliggende i en afstand af 800 m. Til ferieboligen hører 70 m² terrasseareal. Desuden er der 10 m² overdækket terrasse. Der findes 1 kuglegrill og 2 gasgrill. Parkering ved ferieboligen.
Soveforhold
Der er i alt 4 soveværelser. Sovepladserne fordeler sig på: 2 sovepladser i dobbeltseng.2 sovepladser i elevationssenge. 4 sovepladser i sovesofa (dobbelt).- 2 af disse sovepladser befinder sig i et anneks.
Køkken
Køkkenet er udstyret med 1 køleskab. Der er 4 keramiske kogeplader, varmluftovn samt opvaskemaskine.
Toilet og bad
Der er 2 badeværelser med bruseniche og 2 toiletter. Der er gulvvarme på 2 badeværelser.
Multimedier
I ferieboligen er der 1 Smart-TV med soundbar. Radio. Der er mindst 4 danske kanaler. Mindst 4 tyske kanaler. Der er trådløst internet til rådighed. Desuden findes der 1 Smart-TV i annekset.
Værd at vide
Ingen udlejning til ungdomsgrupper, hvor alle er 15-25 år. Rygning ikke tilladt. Ved overtrædelse af forbuddet opkræves et gebyr på minimum DKK 3.000,-. Ingen udlejning til håndværkere.
Indretning
Sommerhuset egner sig til 6 personer. Ferieboligen er på 100 m² og er bygget i 1977. I 2015 gennemgik ferieboligen en delvis renovering. Det er tilladt at medbringe 1 husdyr. Ferieboligen er udstyret med energibesparende varmepumpe. Ferieboligen har vaskemaskine. Frysekapacitet på 100 liter. Der er desuden brændeovn. Til de små er der 1 stk. barnestol.
Udenfor
Ferieboligen er beliggende på en 2500 m² stor naturgrund. Der er 200 m til havet. Nærmeste forretning er beliggende i en afstand af 800 m. Til ferieboligen hører 70 m² terrasseareal. Desuden er der 10 m² overdækket terrasse. Der findes 1 kuglegrill og 2 gasgrill. Parkering ved ferieboligen.
Soveforhold
Der er i alt 4 soveværelser. Sovepladserne fordeler sig på: 2 sovepladser i dobbeltseng.2 sovepladser i elevationssenge. 4 sovepladser i sovesofa (dobbelt).- 2 af disse sovepladser befinder sig i et anneks.
Køkken
Køkkenet er udstyret med 1 køleskab. Der er 4 keramiske kogeplader, varmluftovn samt opvaskemaskine.
Toilet og bad
Der er 2 badeværelser med bruseniche og 2 toiletter. Der er gulvvarme på 2 badeværelser.
Multimedier
I ferieboligen er der 1 Smart-TV med soundbar. Radio. Der er mindst 4 danske kanaler. Mindst 4 tyske kanaler. Der er trådløst internet til rådighed. Desuden findes der 1 Smart-TV i annekset.
Værd at vide
Ingen udlejning til ungdomsgrupper, hvor alle er 15-25 år. Rygning ikke tilladt. Ved overtrædelse af forbuddet opkræves et gebyr på minimum DKK 3.000,-. Ingen udlejning til håndværkere.
Afstande fra ferieboligen og placering på kort
- Butik 800 m
- Hav 200 m
Nærtliggende sommerhuse
Er I flere familier, der gerne vil bo tæt på hinanden kan I søge efter nærtliggende sommerhuseSe nabohuse
Priser og kalender
Kalender
Varighed
Pris
Periode
- Ankomst
- Afrejse
- Varighed
- 1 uge
Personer
Op til 6 personer
Bemærk
Ankomst er ikke valgt.