Lyst sommerhus med søudsigt ved Dageløkke Marina

Dageløkke Marina 3 K - Dageløkke - 5953 - Tranekær

4 personer
7 overnatninger
Fra DKK 3.620,-
Inkl. rengøring og forbrug
Skønt og lyst sommerhus ved Dageløkke Marina med smuk udsigt til søen og rolige omgivelser.

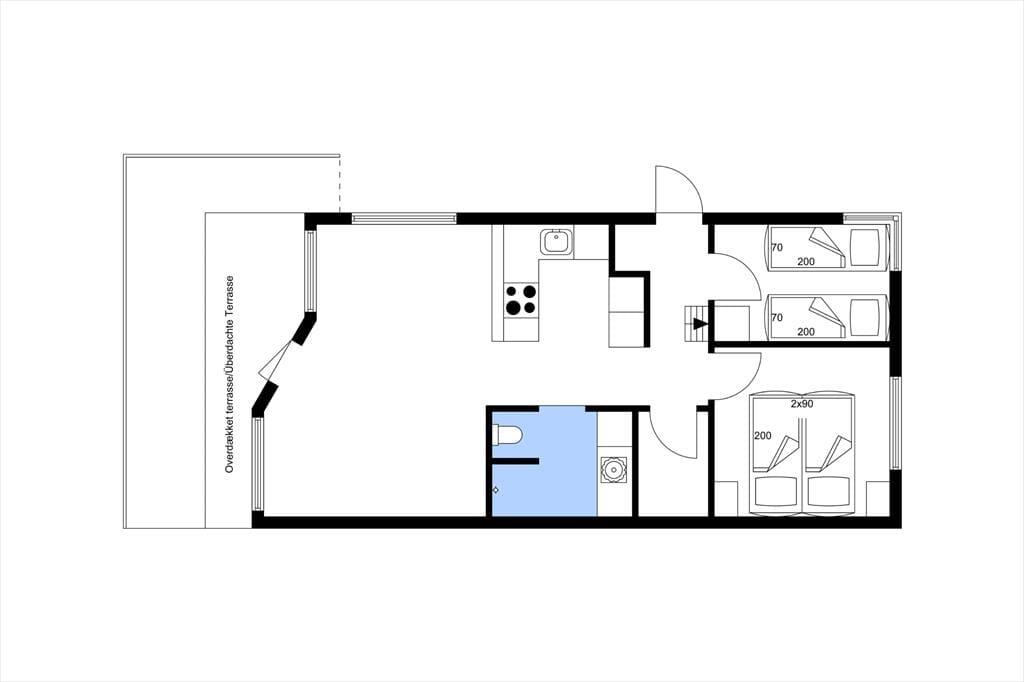
Fakta om boligen

  • 4 personer
  • 2 husdyr
  • Rygning ikke tilladt
  • 2 soveværelser
  • 1 badeværelse
  • Vand 450
  • Indkøb 5400

Faciliteter

Hus Info

  • Antal husdyr
    2
  • Antal voksne
    4
  • Bruser
  • Byggeår
    2007
  • Grundareal
  • Husareal
    58 m²
  • WC

Afstande

  • Afstand hav
    450 m
  • Afstand indkøb
    5,4 km
  • Afstand restaurant
    600 m
  • Afstand strand
    450 m
  • Afstand til fælles legeplads
    250 m

Energi / Opvarmning

  • Elvarme

Hårde hvidevarer

  • Emhætte
  • Kaffemaskine
  • Kogeplader
  • Køleskab med frys
  • Opvaskemaskine
  • Ovn
  • Strygebræt
  • Strygejern
  • Vaskemaskine

Multimedier

  • Dansk tv
  • Norsk TV
  • Svensk TV
  • TV
    Mere TV
  • Tysk TV
  • Wi-FI

Ekstra

  • Hundevenlig

Udenfor

  • Fælles parkering
  • Grill
  • Havemøbler
  • Indhegnet Terrasse
  • Liggestole
    2
  • Parasol
    1
  • Terrasse

Diverse

  • 2 x Enkeltseng 70x200cm
  • Dobbeltseng 2 x 90x200cm
  • Gulvvarme

Regler

  • Husdyr: Kun hunde tilladt
  • Opladning af elbil ikke tilladt
  • Rygning ikke tilladt

Pris inklusiv

  • Forbrug inkl.
  • Gratis adgang til aktiviteter

Beskrivelse

Velkommen til dette skønne Søhus ved Dageløkke Marina – et dejligt og velindrettet sommerhus, der ligger i anden række til søen, men med et direkte og smukt kig til vandet. Husene er placeret forskudt i området, hvilket giver netop denne bolig udsigt fra både stue og køkken-alrum ned mod søen, hvor du kan følge årstidernes skiften og det rige dyreliv. Huset er en del af de karakteristiske Søhuse, der ligger som små tvillinger ved marinaen, og her får du en rolig feriebase i naturskønne omgivelser.

Velkommen indenfor
Sommerhuset er opført i 2007 og fremstår lyst, velholdt og godt isoleret, så det kan nydes året rundt. Med sine 58 m² er boligen udnyttet optimalt, og højden til loftet giver en rummelig fornemmelse, der får huset til at føles større. Køkken-alrummet ligger i åben forbindelse med stuen, og her er udsigten mod søen en naturlig del af oplevelsen – uanset om du laver mad, spiser eller slapper af. Huset har to gode soveværelser, og derudover er der en hems, som kan benyttes, hvis man ønsker lidt variation i sovepladserne. Badeværelset er lyst og funktionelt og udstyret med vaskemaskine, hvilket er praktisk under ferien.

Nyd livet udenfor
Fra opholdsrummet er der udgang til en indhegnet terrasse, hvor du kan nyde udelivet i rolige og trygge rammer – perfekt, hvis familiens hund er med på ferie. Her kan du starte dagen med morgenkaffen og kigge mod søen, mens fuglelivet langs bredden langsomt vågner. Terrassen indbyder til afslapning, måltider under åben himmel og lange, stille aftener, hvor naturens lyde danner bagtæppe. Den nære kontakt til vand og natur giver en helt særlig stemning, som gør det let at koble af og være til stede i nuet.

Kom tæt på de lokale oplevelser
Dageløkke er et stemningsfuldt og attraktivt ferieområde med marina, natur og gode fællesfaciliteter. Som gæst har du adgang til den fælles hal på området, hvor der er mulighed for forskellige aktiviteter – ideelt på dage, hvor vejret indbyder til indendørs hygge. Derudover findes der en stor legeplads, som er et hit for børnene. Området omkring Dageløkke er oplagt til gå- og cykelture langs kysten, og den hyggelige marina bidrager med maritim stemning og liv i sommermånederne. Her får du et sommerhus, der kombinerer ro, udsigt og gode faciliteter i et af Nordlangelands charmerende ferieområder.

Afstande fra ferieboligen og placering på kort

  • Afstand hav 450 m
  • Afstand indkøb 5,4 km
  • Afstand restaurant 600 m
  • Afstand strand 450 m
  • Afstand til fælles legeplads 250 m
Der tages forbehold for evt. fejlplacering. Husadressen fremgår af lejebeviset.

Priser og kalender

Kalender

Ankomst
Forrige Næste
  • juni 2026
    mationtofr
    231234567
    24891011121314
    2515161718192021
    2622232425262728
    272930
    28
  • juli 2026
    mationtofr
    2712345
    286789101112
    2913141516171819
    3020212223242526
    312728293031
    32
   Se om emnet er ledigt på den valgte dato
Ledig
Optaget
   Ankomst mulig
Varighed

Pris

Periode
Ankomst
Afrejse
Varighed
1 uge
Personer
Op til 4 personer

Bemærk

Ankomst er ikke valgt.
Aftale- og lejebetingelser