Romantisk sommerhus tæt på Vesterhavet

Stenurtsvej - Grærup - 6840 - Oksbøl

2 personer
7 overnatninger
DKK 8.093,-
Romantisk sommerhus for to i første klitrække ved Vesterhavet med skøn udsigt og moderne komfort.

Fakta om boligen

  • 2 personer
  • Ingen husdyr
  • Rygning ikke tilladt
  • 1 soveværelse
  • 1 badeværelse
  • Vand 200
  • Indkøb 10000

Faciliteter

Opholdsrum

  • DVD-afspiller
    1
  • Gulv: Trælaminat
  • Ekstra: Pejs
  • Fladskærms-TV
    1

Soverum

  • Gulv: Trælaminat
  • Dobbeltsenge
    1
  • Sovepladser
    2
  • Soverum
    1
  • 1. soverum/sengestørrelser
    180X200

Køkken

  • Komfur: El m. ovn
  • Køleskab
  • Opvaskemaskine

Baderum

  • Gulvvarme bad
  • Antal badeværelser
    1

Objektinfo - Inde

  • Areal: Hus m²
    75
  • Byggeår
    1967
  • Ikke ryger hus
  • Gratis Internet
  • Personantal
    2
  • Renoveret
    2022
  • Tyske tv-programmer
  • Varme: Elvarme
  • Varme: Varmepumpe luft til luft
  • Satellit (tyske kanaler samt et par danske)
  • Jubilæumsmønt er udleveret

Objektinfo - ude

  • Afstand i meter: Hav
    200 m
  • Afstand i meter: Indkøb
    10 km
  • Grundens areal i m2
    2514
  • Grill
  • Havemøbler
  • Terrasse: åben
  • Terrasse: Afskærmet
  • Redskabsrum
  • Naturgrund
  • Klitgrund
  • Affald hentes:
    Torsdag
  • Skraldespand - Liter
    140
  • Gasgrill

Koncepter

  • Varme: 24 timer f. ankomst
  • Skiftedag: Søndag

Miniferie

  • Ja, tak - tillad miniferie

Beskrivelse

Romantisk ferie for to på den smukke danske vestkyst? Dette smukt beliggende sommerhus i Grærup tæt på Vejers Strand inviterer til netop dette. Hold ferie i dette klassiske feriehus i første klitrække, hvor du kan høre Vesterhavets brusen fra terrassen.

Fantastisk beliggenhed kun et stenkast fra Vesterhavet

Leder du efter en førsteklasses-beliggenhed til din sommerhusferie, så er Stenurtsvej 6 i Grærup Strand den helt rigtige ferieadresse til dig. Sommerhuset ligger midt i det flotte klitlandskab og tilmed i første klitrække, kun 200 meter fra stranden.

Næsten lige uden for døren finder du en sti, som fører dig gennem klitterne ned til havet, og mens du sidder på den terrassen og nyder solens lune, bruser bølgerne sagte i baggrunden. Her får du en helt særlig beliggenhed, som inviterer til afslappende gåture langs vandet, forfriskende dukkerter og synet af betagende solnedgange fra klittoppen.

Tid til tosomhed midt i naturen

Det lille 2 personers-sommerhus med træpaneler og synlige bjælker har i 2022 har gennemgået en let renovering, og indretningen kombinerer moderne komfort med klassisk sommerhusstil. ”Hygge” er det helt rigtige ord at bruge, og der er ingen tvivl om, at sommerhusets omgivelser skaber rammerne for en hyggelig ferie langt væk fra den travle hverdag – hvor du kan tilbringe kvalitetstid med den, du har mest kær.

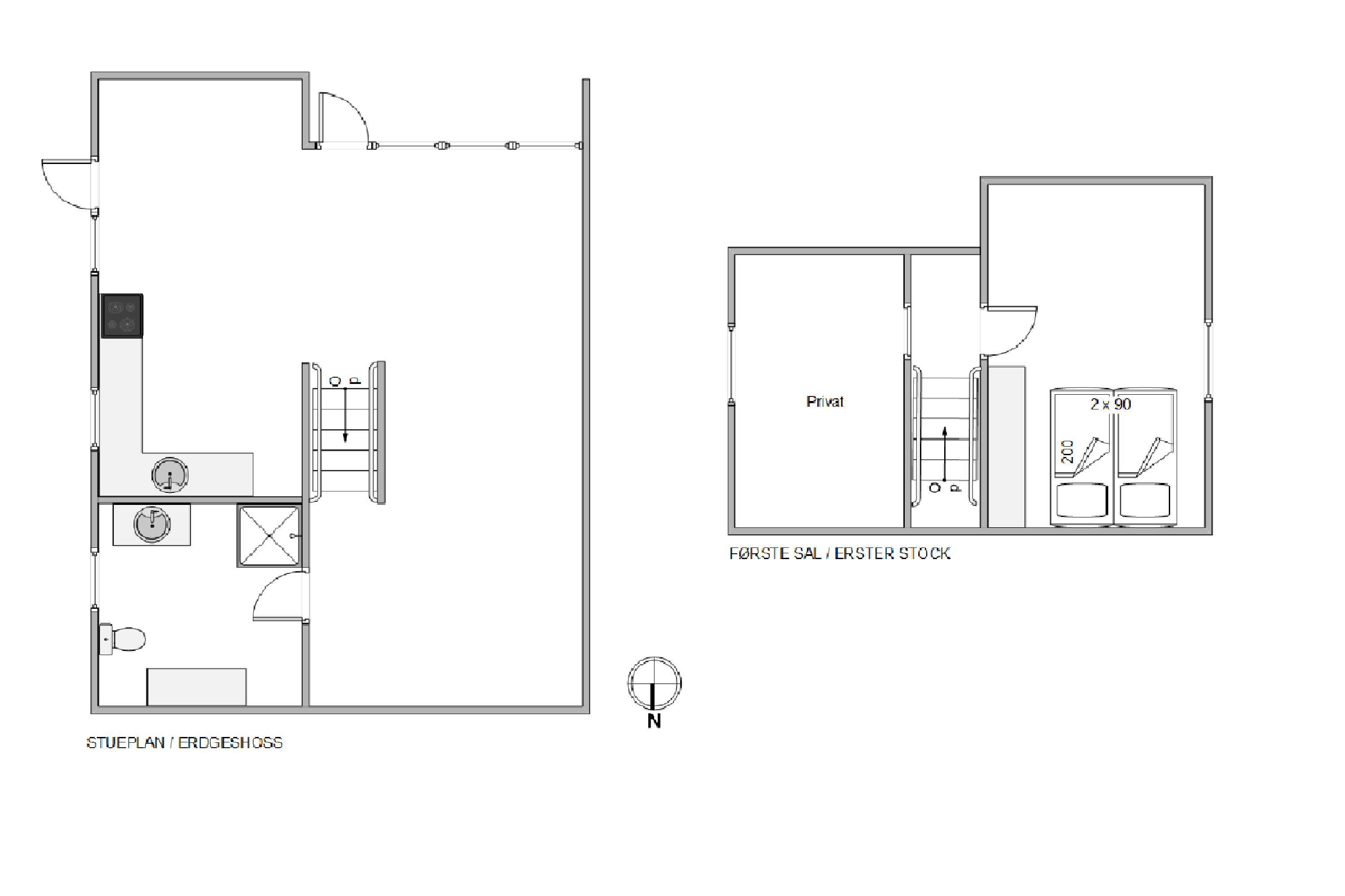
I feriehusets stueplan finder du et badeværelse og et kombineret køkkenalrum og stue. Køkkenet er udstyret med opvaskemaskine, så du ikke skal bruge din kostbare ferietid på at vaske op i hånden. Fra de store vinduespartier i køkken og stue har du en fantastisk udsigt til klitterne, som er din nærmeste nabo. På førstesalen finder du feriehusets soveværelse.

Havemøbler/grill befinder sig i skuret ved siden af huset.

Gå på opdagelse i Vejers Strand

Den nærmeste indkøbsmulighed ligger i den nærliggende ferieby Vejers Strand, mindre end 10 minutters kørsel fra sommerhuset. Her finder du ikke kun et supermarked, men også flere hyggelige restauranter og små butikker, du kan gå på opdagelse i. Måske kan der købes en feriesouvenir med hjem, og på en lun sommerdag er der flere steder, hvor du kan købe en lækker softice.

Vil du gerne til en lidt større by, er den populære ferieby Blåvand bestemt et besøg værd. Det er også her, en af Vestkystens seværdigheder, bunkermuseet Tirpitz, ligger, hvis du gerne vil krydre ferien med en kulturel oplevelse.

Afstande fra ferieboligen og placering på kort

  • Afstand i meter: Hav 200 m
  • Afstand i meter: Indkøb 10 km
Der tages forbehold for evt. fejlplacering. Husadressen fremgår af lejebeviset.

Priser og kalender

Kalender

Ankomst
Forrige Næste
  • juli 2026
    mationtofr
    2712345
    286789101112
    2913141516171819
    3020212223242526
    312728293031
    32
  • august 2026
    mationtofr
    3112
    323456789
    3310111213141516
    3417181920212223
    3524252627282930
    3631
   Se om emnet er ledigt på den valgte dato
Ledig
Optaget
   Ankomst mulig
Varighed

Pris

Periode
Ankomst
Afrejse
Varighed
1 uge
Personer
Op til 2 personer

Bemærk

Ankomst er ikke valgt.
Aftale- og lejebetingelser