Moderne sommerhus med havudsigt ved Grønhøj
Kettrup Bjerge Vej - Grønhøj - 9480 - Løkken
6 personer
Nyd et moderne sommerhus med havudsigt tæt på Grønhøjs sandstrand og Vesterhavet.
Fakta om boligen
- 6 personer
- Ingen husdyr
- Rygning ikke tilladt
- 3 soveværelser
- 1 badeværelse
- Vand 350
- Indkøb 2000
Faciliteter
Adgang til ferieboligen
-
Nøgleboks med kode
Bemærk
-
Ingen håndværkere efter anmodning
-
Ingen ungdomsgrupper efter anmodning
-
Rygning er forbudt
Indretning
-
Antal voksne inkl. 4-11 år6
-
Bebygget areal85 m²
-
Brændeovn1
-
Byggeår2003
-
Feriebolig
-
Frysekapacitet (antal liter)30
-
Vaskemaskine1
Køkken
-
Antal keramiske kogeplader4
-
Køleskab1
-
Opvaskemaskine1
-
Varmluftovn1
Multimedier
-
> 3 danske kanaler
-
0-3 tyske kanaler
-
Antal tv'er1
-
Download100
-
Radio
-
Trådløst internet
-
Upload100
Soveforhold
-
Antal soveværelser3
-
Dobbeltseng (antal sovepladser)2
-
Enkeltseng (antal sovepladser)2
-
Sovesofa, dobbelt (antal sovepladser)2
Toilet og bad
-
Antal badeværelser1
-
Antal toiletter1
-
Brusekabine
-
Gulvvarme1
Udenfor
-
Butik2 km
-
Elbil hjemmeoplader
-
Hav350 m
-
Natursted
-
Overdækket terrasse20 m²
-
Parkeringsplads ved huset
-
Størrelse af grunden3488 m²
-
Terrasse30 m²
Udsigt
-
Havudsigt fra feriehuset
-
Havudsigt fra pladsen
Beskrivelse
Ikke langt fra den dejlige sandstrand ved Grønhøj finder I dette pæne sommerhus med udsigt til Vesterhavet - fra både hus og grund.
Indretning
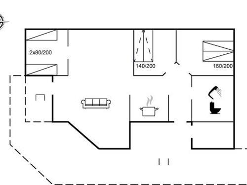
Sommerhuset egner sig til 6 personer. Ferieboligen er på 85 m² og er bygget i 2003. Det er ikke tilladt at medbringe husdyr. Ferieboligen har vaskemaskine. Frysekapacitet på 30 liter. Der er desuden brændeovn.
Udenfor
Ferieboligen er beliggende på en 3488 m² stor naturgrund. Der er 350 m til havet. Nærmeste forretning er beliggende i en afstand af 2000 m. Til ferieboligen hører 30 m² terrasseareal. Desuden er der 20 m² overdækket terrasse. Der er installeret stik til opladning af elbil. Parkering ved ferieboligen.
Soveforhold
Der er i alt 3 soveværelser. Sovepladserne fordeler sig på: 2 sovepladser i dobbeltseng. 2 sovepladser i enkeltsenge. 2 sovepladser i sovesofa (dobbelt).
Køkken
Køkkenet er udstyret med 1 køleskab. Der er 4 keramiske kogeplader, varmluftovn samt opvaskemaskine.
Toilet og bad
Der er 1 badeværelse med bruseniche og 1 toilet.. Der er gulvvarme på 1 badeværelse.
Multimedier
I ferieboligen er der 1 TV. Radio. Der er mindst 4 danske kanaler. 1-3 tyske kanaler. Der er trådløst internet til rådighed.
Værd at vide
Ingen udlejning til ungdomsgrupper, hvor alle er 15-25 år. Rygning ikke tilladt. Ved overtrædelse af forbuddet opkræves et gebyr på minimum DKK 3.000,-.
Indretning
Sommerhuset egner sig til 6 personer. Ferieboligen er på 85 m² og er bygget i 2003. Det er ikke tilladt at medbringe husdyr. Ferieboligen har vaskemaskine. Frysekapacitet på 30 liter. Der er desuden brændeovn.
Udenfor
Ferieboligen er beliggende på en 3488 m² stor naturgrund. Der er 350 m til havet. Nærmeste forretning er beliggende i en afstand af 2000 m. Til ferieboligen hører 30 m² terrasseareal. Desuden er der 20 m² overdækket terrasse. Der er installeret stik til opladning af elbil. Parkering ved ferieboligen.
Soveforhold
Der er i alt 3 soveværelser. Sovepladserne fordeler sig på: 2 sovepladser i dobbeltseng. 2 sovepladser i enkeltsenge. 2 sovepladser i sovesofa (dobbelt).
Køkken
Køkkenet er udstyret med 1 køleskab. Der er 4 keramiske kogeplader, varmluftovn samt opvaskemaskine.
Toilet og bad
Der er 1 badeværelse med bruseniche og 1 toilet.. Der er gulvvarme på 1 badeværelse.
Multimedier
I ferieboligen er der 1 TV. Radio. Der er mindst 4 danske kanaler. 1-3 tyske kanaler. Der er trådløst internet til rådighed.
Værd at vide
Ingen udlejning til ungdomsgrupper, hvor alle er 15-25 år. Rygning ikke tilladt. Ved overtrædelse af forbuddet opkræves et gebyr på minimum DKK 3.000,-.
Afstande fra ferieboligen og placering på kort
- Butik 2 km
- Hav 350 m
Nærtliggende sommerhuse
Er I flere familier, der gerne vil bo tæt på hinanden kan I søge efter nærtliggende sommerhuseSe nabohuse
Priser og kalender
Kalender
Varighed
Pris
Periode
- Ankomst
- Afrejse
- Varighed
- 1 uge
Personer
Op til 6 personer
Bemærk
Ankomst er ikke valgt.