Moderne feriehus med sauna og stor terrasse

Porsevej - 6854 - Henne Strand

6 personer
7 overnatninger
Fra DKK 5.081,-
Moderne kvalitetsferiehus nær strand og by med sauna, spabad og stor overdækket terrasse for afslapning og komfort.

Fakta om boligen

  • 6 personer
  • Ingen husdyr
  • Rygning ikke tilladt
  • 3 soveværelser
  • 0 badeværelser
  • Vand 400
  • Indkøb 200

Faciliteter

Opholdsrum

  • TV
    1
  • DVD-afspiller
    1
  • Gulvvarme
  • Klinkegulv - opholdsrum

Soverum

  • Trægulv
  • Sovepladser
    6
  • Soverum
    3
  • Dobbeltseng
    3

Køkken

  • Klinkegulv
  • Gulvvarme
  • Kogeplader: El keramisk
  • Indbygningsovn
  • Mikroovn
  • Emhætte
  • Køleskab med lille fryseboks
  • Opvaskemaskine

Baderum

  • Gulvvarme
  • Toilet
  • Bruseniche
  • Ekstra: Toilet
    1
  • Sauna

Objektinfo

  • TV-programmer: Danske
  • TV-programmer: Tyske
  • Internetadgang: WiFi
  • Internetadgang
  • Husareal
    114
  • Byggeår
    2005
  • Varme: Brændeovn
  • Varme: Varmepumpe
    1
  • Vaskemaskine
  • Tørretumbler
  • Ikke ryger hus

Objektinfo - ude

  • Afstand hav
    400 m
  • Afstand indkøb
    200 m
  • Grundareal
    1300
  • Havemøbler
  • Liggestole
  • Overdækket terrasse

Beskrivelse

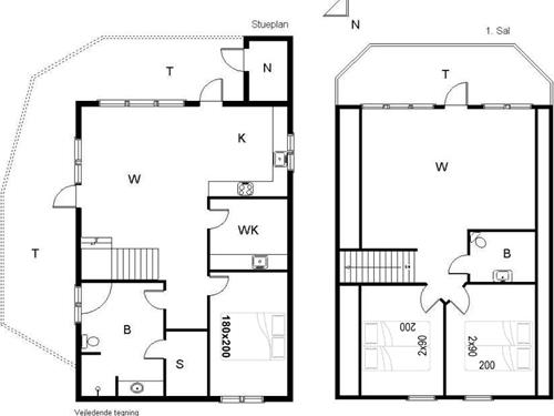
Dette pragtfulde og smagfuldt indrettede kvalitetsferiehus i 2 plan er det oplagte valg for dig, der ønsker en ferie i moderne omgivelser med fokus på komfort og velvære. Porsevej 3 Henne Strand er med sin rummelige planløsning og fantastiske beliggenhed er huset skræddersyet til en afslappende ferie for hele familien. Huset ligger i gå afstand til både stranden og byen.

Lyst køkken og hyggelige opholdsrum


Husets køkken er lyst og funktionelt med alt, hvad du behøver til moderne madlavning. Det åbne køkken danner rammen om hyggelige stunder, hvor der kan kokkereres og nydes måltider i afslappede omgivelser.

På 1. sal finder du en ekstra TV-stue med udgang til en overdækket balkon, hvor du kan trække dig tilbage og nyde udsigten eller en rolig aftenstund.

Wellness og afslapning
Efter en dag i den friske natur kan du forkæle dig selv med lidt wellness. Det lyse badeværelse i stueetagen byder på både sauna og spabad – ideelt til at løsne op for spændinger og genoplade energien.

Huset råder over tre rummelige soveværelser.

Derudover er der et separat toilet på 1. sal, samt en praktisk baggang med vask, vaskemaskine og tørretumbler – perfekt til længere ophold og børnefamilier.

Stor terrasse og gode udendørsarealer


Udendørs finder du en stor, delvis overdækket terrasse foran huset, der indbyder til afslapning og hyggelige grillmiddage under åben himmel. Rundt om huset løber en bred, flisebelagt sti, der giver nem adgang til alle områder. Den brede opkørsel giver rig mulighed for parkering af flere biler.


Dette kvalitetsferiehus er det ideelle valg for dig, der ønsker en ferie med både wellness, stil og funktionalitet. Her kan du kombinere afslapning i huset med skønne naturoplevelser og nærhed til områdets mange aktiviteter.

Book din ferie nu, og glæd dig til en uforglemmelig oplevelse i dette smagfulde feriehus!

Sengestørrelse: 2 dobbeltsenge med 2 madrasser 90 x 200 cm + 1 dobbeltseng 180 x 200 cm

Afstande fra ferieboligen og placering på kort

  • Afstand hav 400 m
  • Afstand indkøb 200 m
Der tages forbehold for evt. fejlplacering. Husadressen fremgår af lejebeviset.

Priser og kalender

Kalender

Ankomst
Næste
  • februar 2026
    mationtofr
    51
    62345678
    79101112131415
    816171819202122
    9232425262728
    10
  • marts 2026
    mationtofr
    91
    102345678
    119101112131415
    1216171819202122
    1323242526272829
    143031
   Se om emnet er ledigt på den valgte dato
Ledig
Optaget
   Ankomst mulig
Varighed

Pris

Periode
Ankomst
Afrejse
Varighed
1 uge
Personer
Op til 6 personer

Bemærk

Ankomst er ikke valgt.
Aftale- og lejebetingelser