Hyggeligt stråtækt sommerhus i Henne Strand

Ranunkelvej - 6854 - Henne Strand

3 personer
Kan ikke beregne prisen med den valgte periode.
Hyggeligt stråtækt sommerhus i Henne Strand med brændeovn, tæt på strand og by, perfekt til en afslappende ferie.

Fakta om boligen

  • 3 personer
  • Ingen husdyr
  • Rygning ikke tilladt
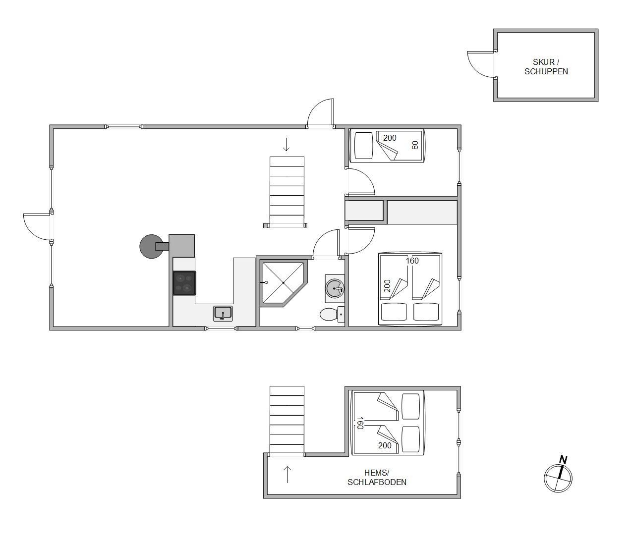
  • 2 soveværelser
  • 1 badeværelse
  • Vand 600
  • Indkøb 500

Faciliteter

Opholdsrum

  • Gulv: Træ
  • Radio
  • Brændeovn
  • Fladskærms-TV
    1

Soverum

  • Ekstra sovepl. Hems
    2
  • Gulv: Træ
  • Dobbeltsenge
    1
  • Enkeltsenge
    1
  • Sovepladser
    3
  • Soverum
    2
  • 1. soverum/sengestørrelser
    160x200
  • 2. soverum/sengestørrelser
    80x200
  • 3. soverum/sengestørrelser
    160x200

Køkken

  • Komfur: El m. ovn
  • Køleskab m. frostboks

Baderum

  • Gulvvarme bad
  • Antal badeværelser
    1

Objektinfo - Inde

  • Areal: Hus m²
    59
  • Byggeår
    1979
  • Ikke ryger hus
  • Personantal
    3
  • Renoveret
    2012
  • Tyske tv-programmer
  • Varme: Elvarme
  • Gratis fiber Internet
  • Chromecast
  • Jubilæumsmønt er udleveret

Objektinfo - ude

  • Afstand hav
    600 m
  • Afstand indkøb
    500 m
  • Areal: Grund m²
    1430
  • Havemøbler
  • Parasol
  • Terrasse: åben
  • Terrasse: Afskærmet
  • Redskabsrum
  • Naturgrund
  • Klitgrund
  • Affald hentes:
    Torsdag
  • Affald: Helårstømning
  • Affald: Liter
    140
  • Gasgrill

Koncepter

  • Skiftedag: Lørdag

Miniferie

  • Ja, tak - tillad miniferie

Beskrivelse

Kunne I tænke jer at holde ferie i et idyllisk sommerhus tæt på Vesterhavet? Så er dette sommerhus på Ranunkelvej 6 i Henne Strand måske lige netop det, I leder efter. I dette skønne stråtækte sommerhus er der plads op til 3 personer, og dermed især egnet til den lille familie eller et par, som gerne vil tilbringe en dejlig ferie i Henne Strand.

Lys og hyggelig indretning - med brændeovn

Dette dejlige sommerhus på 59m2 er indrettet yderst praktisk, lyst og med de mange detaljer, kan det ikke undgås, at I under hele jeres ophold vil blive mindet om, at I bor tæt på Vesterhavet. De store vinduer i stuen giver det skønneste lysindfald, også til spisestuen og det veludstyrede køkken. De 3 sovepladser, som dette sommerhus rummer, er fordelt over en dobbeltseng i det ene soveværelse og en enkelseng i det andet soveværelse. Begge soveværelser indeholder et rummeligt højskab til den medbragte garderobe. En trappe i stueetagen fører jer op på hemsen.

Sommerhuset er udstyret med elvarme og den hyggelige brændeovn sørger for en behagelig temperatur i sommerhusets rum. Og badeværelsets smukke strandstens gulv har indlagt gulvvarme, så I ikke kommer til at fryse fødderne hellere her.

Klitgrund – afslapning i naturen

Sommerhuset er beliggende på en stor klitgrund, og med naturen lige udenfor terrasserne er det blot at læne sig tilbage i de skønne havemøbler. Der er terrasser på flere sider af dette sommerhus, og I kan uden tvivl finde en dejlig plet i enten sol eller skygge. Især terrassen med de flotte loungemøbler lægger op til at I får nydt den friske havluft. Og om aftenen kan I benytte sommerhusets gasgrill til at tilberede jeres aftensmad med.

Hverken langt til strand eller by

Dette sommerhus har en central beliggenhed i Henne Strand. Fra Ranunkelvej 6 er der hverken langt til Vesterhavet og dens skønne sandstrand eller til den nærmeste indkøb. Til stranden, hvor I kan gå ture, bade eller bygge sandslotte, er der blot 600 meter. Bymidten i Henne Strand ligger kun 500 meter fra dette sommerhus, og her kan I finde et supermarked, diverse specialbutikker og forskellige spisesteder, som serverer mad til enhver smag. 

Også de nærliggende omgivelser i Henne byder på masser af naturoplevelser med lynghede og skov. Disse kan opleves på nær hånd ved at vandre, cykle, køre på mountainbike, mm. Og hvad med at betragte den spændende natur fra en hesteryg eller ved at svinge golfkøllen?

Afstande fra ferieboligen og placering på kort

  • Afstand hav 600 m
  • Afstand indkøb 500 m
Der tages forbehold for evt. fejlplacering. Husadressen fremgår af lejebeviset.

Priser og kalender

Kalender

Ankomst
Næste
  • februar 2026
    mationtofr
    51
    62345678
    79101112131415
    816171819202122
    9232425262728
    10
  • marts 2026
    mationtofr
    91
    102345678
    119101112131415
    1216171819202122
    1323242526272829
    143031
   Se om emnet er ledigt på den valgte dato
Ledig
Optaget
   Ankomst mulig
Varighed

Pris

Periode
Ankomst
Afrejse
Varighed
Personer
Op til 3 personer

Bemærk

Ankomst er ikke valgt.
Varighed er ikke valgt.
Aftale- og lejebetingelser