Luksussommerhus med sauna og havudsigt

Fasanvej - 6854 - Henne Strand

6 personer
7 overnatninger
Fra DKK 10.933,-
Inkl. rengøring
Luksussommerhus i Henne Strand med sauna, spabad og havudsigt, kun 250 meter fra stranden.

Fakta om boligen

  • 6 personer
  • 1 husdyr
  • Rygning ikke tilladt
  • 3 soveværelser
  • 2 badeværelser
  • Vand 250
  • Indkøb 300

Faciliteter

Opholdsrum

  • CD afspiller
  • DVD-afspiller
    1
  • Gulv: Klinker
  • Gulvvarme
  • Radio
  • Åben pejs
  • Fladskærms-TV
    2
  • Gas Pejs

Soverum

  • Gulv: Klinker
  • Gulvvarme
  • Dobbeltsenge
    3
  • Sovepladser
    6
  • Soverum
    3
  • 1. soverum/sengestørrelser
    2x90x200
  • 2. soverum/sengestørrelser
    2x90x200
  • 3. soverum/sengestørrelser
    2x90x200

Køkken

  • Komfur: El m. ovn
  • Komfur: Induktion m. ovn
  • Køleskab m. frostboks
  • Opvaskemaskine
  • Mikroovn

Baderum

  • Sauna
  • Gulvvarme bad
  • Antal badeværelser
    2
  • Tømmespa, antal pers.
    2

Objektinfo - Inde

  • Areal: Hus m²
    160
  • Byggeår
    2012
  • Barneseng
    1
  • Højstol
    1
  • Husdyr tilladt
  • Husdyr antal, max
    1
  • Ikke ryger hus
  • Gratis Internet
  • Personantal
    6
  • Danske TV-kanaler (Betalingskanaler)
  • Tyske tv-programmer
  • Tørretumbler
  • Varme: Elvarme
  • Varme: Jordvarme
  • Varme: Solvarme anlæg
  • Vaskemaskine

Objektinfo - ude

  • Afstand hav
    250 m
  • Afstand indkøb
    300 m
  • Areal: Grund m²
    1093
  • Grill
  • Havemøbler
  • Solvogne
  • Parkering: Carport
  • Terrasse: åben
  • Naturgrund
  • Panoramaudsigt
  • Affald hentes:
    Fredag
  • Affald: Helårstømning
  • Affald: Liter
    240

Koncepter

  • Skiftedag: Lørdag
  • Varme: 24 timer f. ankomst

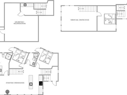
Beskrivelse

På Fasanvej 10 i Henne Strand står dette fantastiske to-etagers luksussommerhus og venter på jer. Her får I hele den luksuriøse feriepakke: Lækker og moderne indretning, sauna og spabad, 250 meter til stranden og havudsigt fra terrassen. Bedre bliver det ikke!

Luksussommerhus med egen wellnessoase - sauna og spa

To etager og 160 m² ægte luksus, det er hvad, der venter jer her. Det moderne feriehus er spækket med lækre highlights, og den stilfulde og gennemførte indretning karakteriserer huset fra ende til anden. Her er kvalitet og stil absolutte nøgleord.

De lyse vægge, gulve og lofter og store vinduespartier sørger for en god og afslappende ferieatmosfære, og gaspejsen i den store spisestue spreder masser af hyggelig stemning på de kolde feriedage.

På første sal finder I en hyggelig stue med biopejs, og på den store sofa er der plads til alle - og gennem vinduesfronterne kan I se helt til havet. På det ene af to badeværelser har I også jeres helt egen wellnessoase med sauna og spabad. Hvad mere har man brug for?

Havudsigt, lækker terrasse og fantastisk beliggenhed

Fra første sal har I udgang til en hyggelig møbleret balkon, hvorfra I kan nyde havudsigten sammen med en friskbrygget kop kaffe eller en kold drink på en varm sommerdag. Fra nederste etage kommer I ud på den store terrasse, der næsten omgiver huset. Her er der lagt op til masser af hyggelige grillaftener og afslappende dage i liggestolene.

Beliggenheden er i særklasse, og ligesom I kan se havet fra huset, kan I høre de brusende bølger kalde fra terrassen. Med kun 250 meter til stranden bliver der helt sikkert tid til en strandudflugt eller to i løbet af ferien.

Henne Strand er kendetegnet ved sin summende ferieatmosfære og sine hyggelige forretninger og caféer, og fra feriehjemmet til byen er der kun små 300 meter, en lille sti fører over husets grund over til Musvågevej. Her kan der shoppes, spises lækker frokost og købes massevis af softice.

 

Afstande fra ferieboligen og placering på kort

  • Afstand hav 250 m
  • Afstand indkøb 300 m
Der tages forbehold for evt. fejlplacering. Husadressen fremgår af lejebeviset.

Vores gæstevurderinger Eksterne vurderinger

3,5
Baseret på 2 vurderinger
Sidste vurdering fra d. 18-07-2021
5
(0)
4
(1)
3
(1)
2
(0)
1
(0)
Kommentarer
1 vurdering har kommentar på dansk.
4,0
2 voksne 0 børn 0 husdyr 7 overnatninger 2021 juli
Great location and well kept house

Priser og kalender

Kalender

Ankomst
Næste
  • februar 2026
    mationtofr
    51
    62345678
    79101112131415
    816171819202122
    9232425262728
    10
  • marts 2026
    mationtofr
    91
    102345678
    119101112131415
    1216171819202122
    1323242526272829
    143031
   Se om emnet er ledigt på den valgte dato
Ledig
Optaget
   Ankomst mulig
Varighed

Pris

Periode
Ankomst
Afrejse
Varighed
1 uge
Personer
Op til 6 personer

Bemærk

Ankomst er ikke valgt.
Aftale- og lejebetingelser