Sommerhus med havudsigt i første række ved Løkken
Gåsestien - 9480 - Løkken
6 personer
Charmerende sommerhus i første række til Vesterhavet med havudsigt og roligt naturområde nær Løkken.
Fakta om boligen
- 6 personer
- Ingen husdyr
- Rygning ikke tilladt
- 3 soveværelser
- 1 badeværelse
- Vand 150
- Indkøb 2000
Faciliteter
Adgang til ferieboligen
-
Nøgleboks med kode
Bemærk
-
Ingen håndværkere efter anmodning
-
Ingen ungdomsgrupper efter anmodning
-
Rygning er forbudt
Indretning
-
Antal voksne inkl. 4-11 år6
-
Bebygget areal81 m²
-
Brændeovn1
-
Byggeår1986
-
Feriebolig
-
Frysekapacitet (antal liter)30
-
Højstol1
-
Renoveringsår2000
-
Tørretumbler1
-
Varmepumpe
-
Vaskemaskine1
Køkken
-
Antal keramiske kogeplader4
-
Køleskab1
-
Mikrobølgeovn1
-
Opvaskemaskine1
-
Varmluftovn1
Multimedier
-
> 3 danske kanaler
-
> 3 tyske kanaler
-
Antal tv'er1
-
Radio
-
Trådløst internet
Soveforhold
-
Antal soveværelser3
-
Dobbeltseng (antal sovepladser)2
-
Enkeltseng (antal sovepladser)2
-
Køjeseng (antal sovepladser)2
Toilet og bad
-
Antal badeværelser1
-
Antal toiletter1
-
Brusekabine
-
Sauna
Udenfor
-
Butik2 km
-
Hav150 m
-
Natursted
-
Parkeringsplads ved huset
-
Størrelse af grunden1000 m²
-
Terrasse30 m²
Udsigt
-
Havudsigt fra pladsen
Beskrivelse
Velbeliggende sommerhus i første række til stranden og Vesterhavet med havudsigt fra grunden. Området er roligt og naturskønt og dog ligger Løkken bymidte med en kort køretur fra huset.
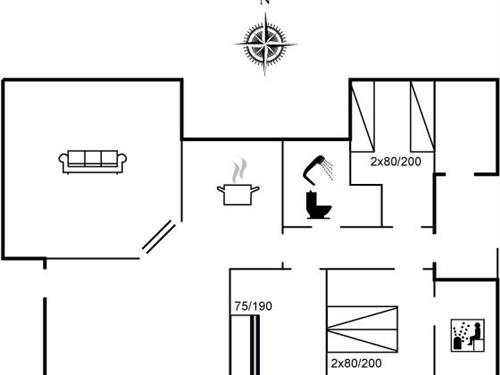
Indretning
Sommerhuset egner sig til 6 personer. Ferieboligen er på 81 m² og er bygget i 1986. I 2000 gennemgik ferieboligen en delvis renovering. Det er ikke tilladt at medbringe husdyr. Der findes 5 fluenet. Ferieboligen er udstyret med energibesparende varmepumpe. Ferieboligen har vaskemaskine. Tørretumbler. Frysekapacitet på 30 liter. Der er desuden brændeovn. Til de små er der 1 stk. barnestol.
Udenfor
Ferieboligen er beliggende på en 1000 m² stor naturgrund. Der er 150 m til havet. Nærmeste forretning er beliggende i en afstand af 2000 m. Til ferieboligen hører 30 m² terrasseareal. Parkering ved ferieboligen.
Soveforhold
Der er i alt 3 soveværelser. Sovepladserne fordeler sig på: 2 sovepladser i dobbeltseng. 2 sovepladser i enkeltsenge. 2 sovepladser i køjeseng.
Køkken
Køkkenet er udstyret med 1 køleskab. Der er 4 keramiske kogeplader, varmluftovn, mikrobølgeovn samt opvaskemaskine.
Toilet og bad
Der er 1 badeværelse med bruseniche og 1 toilet. I saunaen er der mulighed for afslapning.
Multimedier
I ferieboligen er der 1 TV. Radio. Der er mindst 4 danske kanaler. Mindst 4 tyske kanaler. Der er trådløst internet til rådighed.
Værd at vide
Ingen udlejning til ungdomsgrupper, hvor alle er 15-25 år. Rygning ikke tilladt. Ved overtrædelse af forbuddet opkræves et gebyr på minimum DKK 3.000,-.
Indretning
Sommerhuset egner sig til 6 personer. Ferieboligen er på 81 m² og er bygget i 1986. I 2000 gennemgik ferieboligen en delvis renovering. Det er ikke tilladt at medbringe husdyr. Der findes 5 fluenet. Ferieboligen er udstyret med energibesparende varmepumpe. Ferieboligen har vaskemaskine. Tørretumbler. Frysekapacitet på 30 liter. Der er desuden brændeovn. Til de små er der 1 stk. barnestol.
Udenfor
Ferieboligen er beliggende på en 1000 m² stor naturgrund. Der er 150 m til havet. Nærmeste forretning er beliggende i en afstand af 2000 m. Til ferieboligen hører 30 m² terrasseareal. Parkering ved ferieboligen.
Soveforhold
Der er i alt 3 soveværelser. Sovepladserne fordeler sig på: 2 sovepladser i dobbeltseng. 2 sovepladser i enkeltsenge. 2 sovepladser i køjeseng.
Køkken
Køkkenet er udstyret med 1 køleskab. Der er 4 keramiske kogeplader, varmluftovn, mikrobølgeovn samt opvaskemaskine.
Toilet og bad
Der er 1 badeværelse med bruseniche og 1 toilet. I saunaen er der mulighed for afslapning.
Multimedier
I ferieboligen er der 1 TV. Radio. Der er mindst 4 danske kanaler. Mindst 4 tyske kanaler. Der er trådløst internet til rådighed.
Værd at vide
Ingen udlejning til ungdomsgrupper, hvor alle er 15-25 år. Rygning ikke tilladt. Ved overtrædelse af forbuddet opkræves et gebyr på minimum DKK 3.000,-.
Afstande fra ferieboligen og placering på kort
- Butik 2 km
- Hav 150 m
Nærtliggende sommerhuse
Er I flere familier, der gerne vil bo tæt på hinanden kan I søge efter nærtliggende sommerhuseSe nabohuse
Vores gæstevurderinger Eksterne vurderinger
Priser og kalender
Kalender
Ankomst
-
september 2026
ma ti on to fr lø sø 36 1 2 3 4 5 6 37 7 8 9 10 11 12 13 38 14 15 16 17 18 19 20 39 21 22 23 24 25 26 27 40 28 29 30 41 -
oktober 2026
ma ti on to fr lø sø 40 1 2 3 4 41 5 6 7 8 9 10 11 42 12 13 14 15 16 17 18 43 19 20 21 22 23 24 25 44 26 27 28 29 30 31 45
Se om emnet er ledigt på den valgte dato
Ledig
Optaget
Ankomst mulig
Varighed
Pris
Periode
- Ankomst
- Afrejse
- Varighed
- 1 uge
Personer
Op til 6 personer
Bemærk
Ankomst er ikke valgt.