Moderne sommerhus med sauna og udespa nær strand
Redningsvejen Syd - 9480 - Løkken
14 personer
Moderne sommerhus tæt på stranden i Løkken med sauna, aktivitetsrum og udespa, klar primo 2026.
Fakta om boligen
- 14 personer
- Ingen husdyr
- Rygning ikke tilladt
- 5 soveværelser
- 3 badeværelser
- Vand 375
- Indkøb 1000
Faciliteter
Afstande
-
Afstand strand375 m
-
Afstand indkøb1 km
-
Afstand restaurant5 km
Multimedier
-
Antal TV2
-
Chromecast / Apple tv
-
WiFi
-
Playstation
-
Radio
Aktivitetsrum
-
Pool/billard
-
Bordtennis
Hvidevarer
-
Opvaskemaskine
-
Mikrobølgeovn
-
Køleskab liter240
-
Fryser (liter)65
-
Køle-/fryseskab
-
Kaffemaskine
-
Vaskemaskine
-
Tørretumbler
-
Komfur med ovn og blus
-
Elkedel
Bad / Toilet
-
Toiletter3
-
Badeværelser3
-
Sauna
Soverum
-
Antal soverum5
-
Dobbeltsenge4
-
Køjeseng1
-
Hems (antal pladser)2
-
Ekstra senge6
Opvarmning
-
Gulvvarme på badeværelse
Huset inde
-
Byggeår2025
-
Grundareal m²2950
-
Husareal188
-
Rygning ikke tilladt
-
Børnevenligt
-
Husdyr ikke tilladt
-
Max antal personer14
Huset ude
-
Udespa
-
Havemøbler
-
Grill
-
Liggestole2
-
Aflåseligt skur
-
Ladestander til elbil
Faciliteter
-
Alkove1
Beskrivelse
Detaljer om huset:
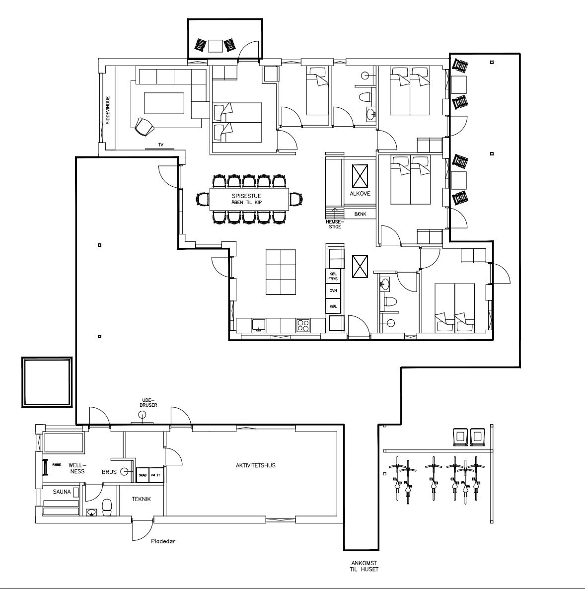
Det fantastiske sommerhus er indrettet til 12+2 personer og byder på god plads til samvær og afslapning. Huset rummer fem soverum, hems og alkove, hvilket giver fleksible sovemuligheder for både børn og voksne.
Sengefordeling: 3 værelser med 2 enkeltsenge (90x200 cm), 1 køjeværelse med 2 madrasser (90x200 cm), 1 værelse med dobbeltseng (160x200 cm), Hems med 2 madrasser (80x200 cm), Alkove med madras (160x200 cm).
Der er tre badeværelser, hvilket gør det velegnet til større familier eller flere generationer på ferie sammen. Efter en dag ved stranden kan du slappe af i saunaen eller nyde inde-eller udespaen. Til de aktive dage og hyggelige aftener findes der i annekset både poolbord, bordtennis og en spillemaskine, så der er underholdning uanset vejret.
Huset er smukt og stilfuldt med moderne materialer og fokus på komfort og gennemtænkte løsninger, mens de rummelige opholdsarealer skaber en indbydende ramme for lange middage, hyggelige stunder og samvær på tværs af generationer, vennegrupper og familier.
Huset er røgfrit og ungdomsgrupper er ikke tilladt.
Udendørsområde:
Sommerhuset er omgivet af store terrasser, hvor du kan finde både sol og læ afhængigt af tidspunkt på dagen. Her er god plads til udeliv, grill og afslapning i den friske luft. Den korte afstand på kun 375 meter til stranden gør det nemt at tage en tur til vandet flere gange om dagen.
Til huset hører også et aflåseligt skur samt ladestander til elbil. Området omkring huset er præget af storslået natur med gode muligheder for gåture, cykling og strandoplevelser for hele familien.
Det fantastiske sommerhus er indrettet til 12+2 personer og byder på god plads til samvær og afslapning. Huset rummer fem soverum, hems og alkove, hvilket giver fleksible sovemuligheder for både børn og voksne.
Sengefordeling: 3 værelser med 2 enkeltsenge (90x200 cm), 1 køjeværelse med 2 madrasser (90x200 cm), 1 værelse med dobbeltseng (160x200 cm), Hems med 2 madrasser (80x200 cm), Alkove med madras (160x200 cm).
Der er tre badeværelser, hvilket gør det velegnet til større familier eller flere generationer på ferie sammen. Efter en dag ved stranden kan du slappe af i saunaen eller nyde inde-eller udespaen. Til de aktive dage og hyggelige aftener findes der i annekset både poolbord, bordtennis og en spillemaskine, så der er underholdning uanset vejret.
Huset er smukt og stilfuldt med moderne materialer og fokus på komfort og gennemtænkte løsninger, mens de rummelige opholdsarealer skaber en indbydende ramme for lange middage, hyggelige stunder og samvær på tværs af generationer, vennegrupper og familier.
Huset er røgfrit og ungdomsgrupper er ikke tilladt.
Udendørsområde:
Sommerhuset er omgivet af store terrasser, hvor du kan finde både sol og læ afhængigt af tidspunkt på dagen. Her er god plads til udeliv, grill og afslapning i den friske luft. Den korte afstand på kun 375 meter til stranden gør det nemt at tage en tur til vandet flere gange om dagen.
Til huset hører også et aflåseligt skur samt ladestander til elbil. Området omkring huset er præget af storslået natur med gode muligheder for gåture, cykling og strandoplevelser for hele familien.
Afstande fra ferieboligen og placering på kort
- Afstand strand 375 m
- Afstand indkøb 1 km
- Afstand restaurant 5 km
Nærtliggende sommerhuse
Er I flere familier, der gerne vil bo tæt på hinanden kan I søge efter nærtliggende sommerhuseSe nabohuse
Priser og kalender
Kalender
Varighed
Pris
Periode
- Ankomst
- Afrejse
- Varighed
- 1 uge
Personer
Op til 14 personer
Bemærk
Ankomst er ikke valgt.