Hyggeligt sommerhus med sauna nær Vesterhavet

Østersøvej - Lønstrup - 9800 - Hjørring

6 personer
Kan ikke beregne prisen med den valgte periode.
Hyggeligt sommerhus i Lønstrup med sauna, naturgrund og tæt på Vesterhavet.

Fakta om boligen

  • 6 personer
  • Ingen husdyr
  • Rygning ikke tilladt
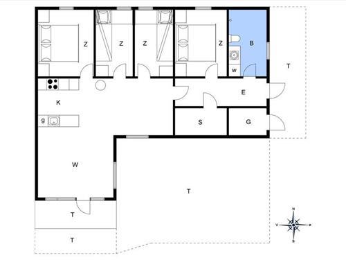
  • 4 soveværelser
  • 1 badeværelse
  • Vand 830
  • Indkøb 950

Faciliteter

Hus Info

  • Antal voksne
    6
  • Bruser
  • Byggeår
    1986
  • Grundareal / Naturgrund
    1759 m²
  • Husareal
    82 m²
  • Sauna
  • WC

Afstande

  • Afstand golfbane
    3,3 km
  • Afstand indkøb / Helårsbutik
    950 m
  • Afstand restaurant
    1,5 km
  • Afstand strand / Sand-/stenstrand
    830 m

Energi / Opvarmning

  • Elvarme

Hårde hvidevarer

  • Elkedel
  • Emhætte
  • Kaffemaskine
  • Kogeplader
  • Køleskab med frys
  • Opvaskemaskine
  • Ovn
  • Vaskemaskine

Multimedier

  • Dansk tv
  • Gratis Wi-Fi - Over 100 Mbit
  • Kabel-TV
  • Norsk TV
  • Svensk TV
  • TV
  • Tysk TV

Ekstra

  • Golfferie

Udenfor

  • Grill
    Trækulgrill
  • Havemøbler
  • Parkering på grunden
  • Terrasse

Diverse

  • 2 x Dobbeltseng 1x160x200
  • 4 x Enkeltseng 1x70x180

Regler

  • Opladning af elbil ikke tilladt
  • Rygning ikke tilladt

Pris inklusiv

  • Slutrengøring inkl.
  • Vand inkl.

Beskrivelse

Hyggeligt sommerhus med sauna og skøn beliggenhed i Lønstrup
Midt i det fredelige ferieområde tæt på Lønstrups hyggelige byliv og det brusende Vesterhav ligger dette hyggelige sommerhus på Østersøvej 38. Her får du naturskønne omgivelser, rigeligt med plads og en indbydende atmosfære – alt sammen ideelt til dig, der drømmer om en afslappende ferie med masser af nærvær, komfort og ro.

Velkommen indenfor
Så snart du træder indenfor i sommerhuset, bliver du mødt af en varm og imødekommende stemning, der indbyder til afslapning og kvalitetstid. Det lyse opholdsrum med loft til kip og synlige bjælker skaber en behagelig rumfornemmelse, hvor lyset strømmer ind og giver energi til dagen. Her er stue og køkken smukt forenet i et åbent og indbydende miljø, der gør det let at være sammen – uanset om du står ved gryderne eller har slået dig ned i sofaen. Brændeovnen i stuen tilfører både varme og en autentisk feriestemning, og når flammerne knitrer stille, er det næsten umuligt ikke at falde helt ned i gear. De komfortable møbler indbyder til lange, langsomme aftener med spil, samtaler eller måske en god film. Sommerhuset rummer fire indbydende soveværelser med bløde senge og rolig stemning, og efter en lang dag i frisk luft kan du forkæle dig selv med en tur i husets sauna, der ligger lige ved badeværelset – et oplagt sted at lade skuldrene falde og sanserne finde ro.

Nyd livet udenfor
Udenfor venter en skøn naturgrund med masser af luft og plads – perfekt til både leg, afslapning og små gåture i det grønne. Haven omkranser huset som en lille fredelig oase, hvor fuglefløjt og vinden i træerne sætter scenen for uforstyrret feriestemning. Her er der rig mulighed for at finde sin yndlingsplads, uanset om du er til sol eller skygge. På de gode terrassearealer kan du nyde dagens måltider under åben himmel, læne dig tilbage i en liggestol med en bog eller lade børnene lege på græsset, mens du har udsigt til det hele. Når solen varmer, og himlen er blå, er der ikke meget, der slår et køligt glas og bare tæer i græsset. Og selv når aftenen falder på, kan du tænde op i grillen, finde tæppet frem og fortsætte hyggen i det fri – måske under et tæppe af stjerner.

Kom tæt på de lokale oplevelser
Beliggenheden i Lønstrup gør det nemt at kombinere ferieafslapning med lokale oplevelser og autentisk vestkyststemning. Fra sommerhuset er der ikke langt til byens hyggelige centrum, hvor du finder små specialbutikker, kunsthåndværkere, gallerier og ikke mindst lækre spisesteder – heriblandt den anmelderroste Villa Vest, som ligger med en fabelagtig udsigt over havet. Du er også tæt på stranden, hvor du kan lade sandet glide mellem tæerne, tage en dukkert i det friske hav eller nyde lange gåture i det bløde klitsand. Lønstrup Klint og Rubjerg Knude Fyr er oplagte udflugtsmål, og vil du have lidt ekstra forkælelse, ligger Romulus i Skallerup Seaside Resort blot en kort køretur væk. Uanset årstid byder området på oplevelser i pagt med naturen – og altid med Vesterhavet som bagtæppe.

Husk, at du altid kan låne trækvogne, barnestole og barnesenge hos os i Lønstrup. Du kan hente dem direkte på bureauet og returnere dem til os igen, når din ferie er vel overstået.


Afstande fra ferieboligen og placering på kort

  • Afstand golfbane 3,3 km
  • Afstand indkøb / Helårsbutik 950 m
  • Afstand restaurant 1,5 km
  • Afstand strand / Sand-/stenstrand 830 m
Der tages forbehold for evt. fejlplacering. Husadressen fremgår af lejebeviset.

Priser og kalender

Kalender

Ankomst
Næste
  • februar 2026
    mationtofr
    51
    62345678
    79101112131415
    816171819202122
    9232425262728
    10
  • marts 2026
    mationtofr
    91
    102345678
    119101112131415
    1216171819202122
    1323242526272829
    143031
   Se om emnet er ledigt på den valgte dato
Ledig
Optaget
   Ankomst mulig
Varighed
Personer

Pris

Periode
Ankomst
Afrejse
Varighed
Personer
Ingen personer er valgt

Bemærk

Ankomst er ikke valgt.
Varighed er ikke valgt.
Der er ikke valgt personer.
Aftale- og lejebetingelser