Sommerhus med havudsigt og spa i Nørlev
Klitmarken - Nørlev - 9800 - Hjørring
9 personer
Skønt sommerhus med havudsigt, tæt på strand og naturgrund i Nørlev, perfekt til afslapning og familieferie.
Fakta om boligen
- 9 personer
- 2 husdyr
- Rygning ikke tilladt
- 4 soveværelser
- 2 badeværelser
- Vand 200
- Indkøb 1900
Faciliteter
Adgang til ferieboligen
-
Nøgleboks med kode
Bemærk
-
Ingen håndværkere efter anmodning
-
Ingen ungdomsgrupper efter anmodning
-
Rygning er forbudt
Indretning
-
Antal voksne inkl. 4-11 år9
-
Bebygget areal106 m²
-
Brændeovn1
-
Byggeår1999
-
Feriebolig
-
Frysekapacitet (antal liter)50
-
Gulvvarme i alle klinkegulve
-
Husdyr2
-
Højstol1
-
Renoveringsår2009
-
Varmepumpe
-
Vaskemaskine1
Køkken
-
Antal elektriske kogeplader4
-
Bageovn1
-
Køleskab1
-
Mikrobølgeovn1
-
Opvaskemaskine1
Multimedier
-
> 3 danske kanaler
-
> 3 engelske kanaler
-
> 3 norske kanaler
-
> 3 svenske kanaler
-
> 3 tyske kanaler
-
Antal tv'er1
-
CD afspiller
-
Download60
-
DVD1
-
Stereo sæt
-
Trådløst internet
-
Upload20
Soveforhold
-
Antal soveværelser4
-
Dobbeltseng (antal sovepladser)4
-
Enkeltseng (antal sovepladser)3
-
Køjeseng (antal sovepladser)2
Spa
-
Indendørs spabad (antal personer)2
Toilet og bad
-
Antal badeværelser2
-
Antal toiletter2
-
Brusekabine
-
Gulvvarme2
-
Sauna
Udenfor
-
Butik1,9 km
-
Hav200 m
-
Natursted
-
Overdækket terrasse15 m²
-
Parkeringsplads ved huset
-
Redskabsskur
-
Sandkasse
-
Størrelse af grunden1500 m²
-
Swing
-
Terrasse90 m²
Udsigt
-
Havudsigt fra feriehuset
-
Havudsigt fra pladsen
Beskrivelse
Skønt sommerhus beliggende tæt på havet og dejlig badestrand med havudsigt fra såvel hus som grund. Til huset hører dejlige terrassearealer på flere sider af huset.
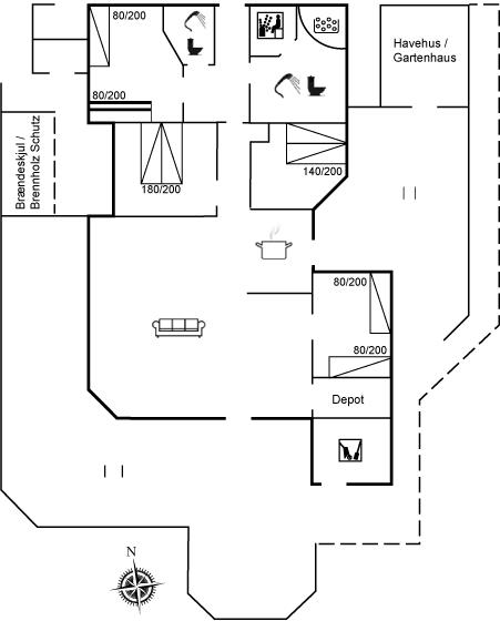
Indretning
Sommerhuset egner sig til 9 personer. Ferieboligen er på 106 m² og er bygget i 1999. I 2009 gennemgik ferieboligen en delvis renovering. Det er tilladt at medbringe 2 husdyr. Ferieboligen er udstyret med energibesparende varmepumpe. Der er gulvvarme i alle klinkegulve. Ferieboligen har vaskemaskine. Frysekapacitet på 50 liter. Der er desuden brændeovn. Til de små er der 1 stk. barnestol.
Udenfor
Ferieboligen er beliggende på en 1500 m² stor naturgrund. Der er 200 m til havet. Nærmeste forretning er beliggende i en afstand af 1900 m. Til ferieboligen hører 90 m² terrasseareal. Desuden er der 15 m² overdækket terrasse. Der er redskabsrum. Gynge. Sandkasse. Parkering ved ferieboligen.
Soveforhold
Der er i alt 4 soveværelser. Sovepladserne fordeler sig på: 4 sovepladser i dobbeltsenge. 3 sovepladser i enkeltsenge. 2 sovepladser i køjeseng.
Køkken
Køkkenet er udstyret med 1 køleskab. Der er 4 elkogeplader, bageovn, mikrobølgeovn samt opvaskemaskine.
Toilet og bad
Der er 2 badeværelser med bruseniche og 2 toiletter. Der er gulvvarme på 2 badeværelser. I saunaen er der mulighed for afslapning.
Spa
Der er mulighed for afslapning i indendørs spa til 2 personer.
Multimedier
I ferieboligen er der 1 TV. DVD-afspiller. Stereoanlæg. CD-afspiller. Der er mindst 4 danske kanaler. Mindst 4 svenske kanaler. Mindst 4 norske kanaler. Mindst 4 tyske kanaler. Mindst 4 engelske kanaler. Der er trådløst internet til rådighed.
Værd at vide
Ingen udlejning til ungdomsgrupper, hvor alle er 15-25 år. Rygning er ikke tilladt. Ved overtrædelse af forbuddet opkræves et gebyr på minimum DKK 3.000,-.
Indretning
Sommerhuset egner sig til 9 personer. Ferieboligen er på 106 m² og er bygget i 1999. I 2009 gennemgik ferieboligen en delvis renovering. Det er tilladt at medbringe 2 husdyr. Ferieboligen er udstyret med energibesparende varmepumpe. Der er gulvvarme i alle klinkegulve. Ferieboligen har vaskemaskine. Frysekapacitet på 50 liter. Der er desuden brændeovn. Til de små er der 1 stk. barnestol.
Udenfor
Ferieboligen er beliggende på en 1500 m² stor naturgrund. Der er 200 m til havet. Nærmeste forretning er beliggende i en afstand af 1900 m. Til ferieboligen hører 90 m² terrasseareal. Desuden er der 15 m² overdækket terrasse. Der er redskabsrum. Gynge. Sandkasse. Parkering ved ferieboligen.
Soveforhold
Der er i alt 4 soveværelser. Sovepladserne fordeler sig på: 4 sovepladser i dobbeltsenge. 3 sovepladser i enkeltsenge. 2 sovepladser i køjeseng.
Køkken
Køkkenet er udstyret med 1 køleskab. Der er 4 elkogeplader, bageovn, mikrobølgeovn samt opvaskemaskine.
Toilet og bad
Der er 2 badeværelser med bruseniche og 2 toiletter. Der er gulvvarme på 2 badeværelser. I saunaen er der mulighed for afslapning.
Spa
Der er mulighed for afslapning i indendørs spa til 2 personer.
Multimedier
I ferieboligen er der 1 TV. DVD-afspiller. Stereoanlæg. CD-afspiller. Der er mindst 4 danske kanaler. Mindst 4 svenske kanaler. Mindst 4 norske kanaler. Mindst 4 tyske kanaler. Mindst 4 engelske kanaler. Der er trådløst internet til rådighed.
Værd at vide
Ingen udlejning til ungdomsgrupper, hvor alle er 15-25 år. Rygning er ikke tilladt. Ved overtrædelse af forbuddet opkræves et gebyr på minimum DKK 3.000,-.
Afstande fra ferieboligen og placering på kort
- Butik 1,9 km
- Hav 200 m
Nærtliggende sommerhuse
Er I flere familier, der gerne vil bo tæt på hinanden kan I søge efter nærtliggende sommerhuseSe nabohuse
Vores gæstevurderinger Eksterne vurderinger
Priser og kalender
Kalender
Varighed
Pris
Periode
- Ankomst
- Afrejse
- Varighed
- 1 uge
Personer
Op til 9 personer
Bemærk
Ankomst er ikke valgt.