Feriehus med havudsigt og aktivitetsrum i Årsdale
Indenmarken - Nexø - 3740 - Svaneke
8 personer
Charmerende feriehus i Årsdale med havudsigt, aktivitetsrum og stor have tæt på kysten.
Fakta om boligen
- 8 personer
- Ingen husdyr
- Rygning ikke tilladt
- 4 soveværelser
- 1 badeværelse
- Vand 170
- Indkøb 3600
Faciliteter
Adgang til ferieboligen
-
Nøgleboks med kode
Aktivitetsrum
-
Mini billard bord
-
Mini bordfodbold
-
Mini bordtennis
Bemærk
-
Ingen ungdomsgrupper efter anmodning
-
Rygning er forbudt
Indretning
-
2 niveauer
-
Antal børn (0-3 år)1
-
Antal voksne inkl. 4-11 år8
-
Bebygget areal146 m²
-
Brændeovn1
-
Byggeår1935
-
Feriebolig
-
Fjernvarme
-
Frysekapacitet (antal liter)290
-
Højstol1
-
Renovering1994
-
Renoveringsår2020
-
Vaskemaskine1
Køkken
-
Antal induktionskogeplader4
-
Køleskab1
-
Mikrobølgeovn1
-
Opvaskemaskine1
-
Varmluftovn1
Multimedier
-
Antal tv'er1
-
Bluetooth -højttaler1
-
Ingen tv-kanaler - kun streaming
-
Radio
-
Smart-Tv1
-
Trådløst internet
Soveforhold
-
Antal soveværelser4
-
Barneseng1
-
Dobbeltseng (antal sovepladser)4
-
Enkeltseng (antal sovepladser)2
-
Justerbar seng (antal sovepladser)2
Toilet og bad
-
Antal badeværelser1
-
Antal gæstebadeværelser1
-
Antal toiletter2
-
Brusekabine
-
Gulvvarme1
Udenfor
-
Anlagt have
-
Butik3,6 km
-
Bålplads
-
Grill1
-
Hav170 m
-
Parkeringsplads ved huset
-
Størrelse af grunden978 m²
-
Terrasse
-
Udestue
Udsigt
-
Havudsigt fra feriehuset
-
Havudsigt fra pladsen
Beskrivelse
Årsdale er et lille fiskerleje, der ligger på skråningerne ned mod den klippefyldte kyst. Igennem de senere år har fiskerlejet ændret sig til et lille ferieparadis med borgerdrevet købmandsforretning. Mikkeller Burger er flyttet til byen sammen med andre spisesteder, og det gamle røgeri står i dag med en moderne stemningsfyldt restaurant.
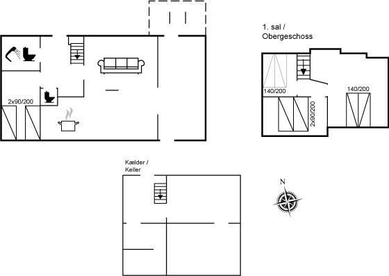
Det store feriehus ligger midt i byen - trukket lidt tilbage, så man kan finde fred og ro, når der er brug for det. I stueplan er der foruden stue og udestue også en fin køkkenafdeling, badeværelse samt gæstetoilet. Et soveværelse med elevationssenge finder man også i stueetagen. Øvrige soveværelser er på 1. sal. I det store soveværelse med den fine udsigt igennem de store vinduer i kvisten er indrettet et lille hyggehjørne - hvor man kan læse en bog eller strikke eller bare kigge ud. Vaskemaskinen er i kælderen. En trappe fører op til indgangspartiet.
For enden af udestuen finder man en hævet træterrasse, der virkelig indbyder til frokost eller eftermiddagskaffen - derfra kan man have et øje på børnene, der leger i den fredelige have.
Huset er helårsisoleret og opvarmes med fjernvarme.
Indretning
Sommerhuset egner sig til 8 personer samt 1 barn op til 3 år. Ferieboligen er på 146 m², er i 2 plan, og er bygget i 1935. I 1994 gennemgik ferieboligen en renovering. I 2020 gennemgik ferieboligen en delvis renovering. Det er ikke tilladt at medbringe husdyr. Der er fjernvarme. Ferieboligen har vaskemaskine. Frysekapacitet på 290 liter. Der er desuden brændeovn. Til de små er der 1 stk. barnestol.
Udenfor
Ferieboligen er beliggende på en 978 m² stor havegrund. Der er 170 m til havet. Nærmeste forretning er beliggende i en afstand af 3600 m. Til ferieboligen hører åbent terrasseareal. Ligeledes er der adgang til udestue. Bålsted. Grill til rådighed. Parkering ved ferieboligen.
Aktivitetsrum
Mini billardbord. Mini bordfodbold. Mini bordtennis.
Soveforhold
Der er i alt 4 soveværelser. Sovepladserne fordeler sig på: 4 sovepladser i dobbeltsenge. 2 sovepladser i enkeltsenge.2 sovepladser i elevationssenge. Derudover er der 1 stk. barneseng.
Køkken
Køkkenet er udstyret med 1 køleskab. Der er 4 induktionskogeplader, varmluftovn, mikrobølgeovn samt opvaskemaskine.
Toilet og bad
Der er 1 badeværelse med bruseniche og 2 toiletter, heraf 1 gæstetoilet. Der er gulvvarme på 1 badeværelse.
Multimedier
I ferieboligen findes 1 Smart-TV. Radio.1 Bluetooth-højtaler. Ingen TV-kanaler - kun streaming. Der er trådløst internet til rådighed.
Værd at vide
Ingen udlejning til ungdomsgrupper, hvor alle er 15-25 år. Rygning ikke tilladt. Ved overtrædelse af forbuddet opkræves et gebyr på minimum DKK 3.000,-.
Indretning
Sommerhuset egner sig til 8 personer samt 1 barn op til 3 år. Ferieboligen er på 146 m², er i 2 plan, og er bygget i 1935. I 1994 gennemgik ferieboligen en renovering. I 2020 gennemgik ferieboligen en delvis renovering. Det er ikke tilladt at medbringe husdyr. Der er fjernvarme. Ferieboligen har vaskemaskine. Frysekapacitet på 290 liter. Der er desuden brændeovn. Til de små er der 1 stk. barnestol.
Udenfor
Ferieboligen er beliggende på en 978 m² stor havegrund. Der er 170 m til havet. Nærmeste forretning er beliggende i en afstand af 3600 m. Til ferieboligen hører åbent terrasseareal. Ligeledes er der adgang til udestue. Bålsted. Grill til rådighed. Parkering ved ferieboligen.
Aktivitetsrum
Mini billardbord. Mini bordfodbold. Mini bordtennis.
Soveforhold
Der er i alt 4 soveværelser. Sovepladserne fordeler sig på: 4 sovepladser i dobbeltsenge. 2 sovepladser i enkeltsenge.2 sovepladser i elevationssenge. Derudover er der 1 stk. barneseng.
Køkken
Køkkenet er udstyret med 1 køleskab. Der er 4 induktionskogeplader, varmluftovn, mikrobølgeovn samt opvaskemaskine.
Toilet og bad
Der er 1 badeværelse med bruseniche og 2 toiletter, heraf 1 gæstetoilet. Der er gulvvarme på 1 badeværelse.
Multimedier
I ferieboligen findes 1 Smart-TV. Radio.1 Bluetooth-højtaler. Ingen TV-kanaler - kun streaming. Der er trådløst internet til rådighed.
Værd at vide
Ingen udlejning til ungdomsgrupper, hvor alle er 15-25 år. Rygning ikke tilladt. Ved overtrædelse af forbuddet opkræves et gebyr på minimum DKK 3.000,-.
Afstande fra ferieboligen og placering på kort
- Butik 3,6 km
- Hav 170 m
Nærtliggende sommerhuse
Er I flere familier, der gerne vil bo tæt på hinanden kan I søge efter nærtliggende sommerhuseSe nabohuse
Vores gæstevurderinger Eksterne vurderinger
Priser og kalender
Kalender
Varighed
Pris
Periode
- Ankomst
- Afrejse
- Varighed
- 1 uge
Personer
Op til 8 personer
Bemærk
Ankomst er ikke valgt.