Hyggeligt landsted nær Svaneke med privat fiskesø
Paradisbakkevejen - Nexø - 3740 - Svaneke
6 personer
Hyggeligt landsted i Svaneke med privat fiskesø og naturskønne omgivelser, perfekt til afslapning og fisketure.
Fakta om boligen
- 6 personer
- Ingen husdyr
- Rygning ikke tilladt
- 3 soveværelser
- 1 badeværelse
- Vand 4100
- Indkøb 5500
Faciliteter
Bad
-
WC. Varmt og koldt vand
Diverse
-
Antal gratis børn (< 4 år)1
-
Byggeår1940
-
Delvis isoleret
-
ECO, Vandkilde: Privat/naturlig
-
EL ekskl.
-
Feriehus108 m²
-
Gratis brænde
-
Helårshus
-
Kæledyr Nej
-
Opvarmning, Elvarme
-
Parabol, tyske kanaler
-
Renoveret2018
-
Selvbetjent check-in
-
Vand inkl.
-
Vaskemaskine
El artikler
-
1 TV
-
CD afspiller
-
DK-DR1/TV2
-
Internet (trådløst)
I nærheden
-
Afs. til nærmeste vand/badning6,6 km
-
Afstand til alt. vand/badning4,1 km
-
Afstand til indkøb5,5 km
-
Golfbane18,8 km
-
Nærmeste by5,5 km
Indendørs
-
Brændeovn
-
Gulvvarme på badeværelset
Koncepter
-
Husdyrfrit
-
Røgfrit hus
Køkken
-
El-plader
-
Emhætte
-
Fryser57 l
-
Køkkenet har v/k vand
-
Køleskab
-
Mikroovn
-
Opvaskemaskine
Udendørs
-
Grill
-
Havemøbler
Beskrivelse
Dejligt landsted, som ligger på en meget stor og fuldstændig ugeneret naturgrund med en privat fiskesø 300 meter fra huset.
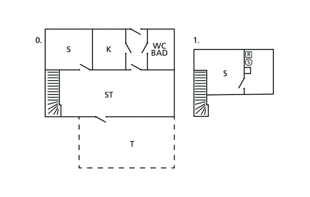
Feriehuset i to plan er istandsat og godt indrettet. Husets hjerte er den kombinerede opholds- og spisestue i stueetagen, hvor I kan se film, høre radio eller musik og om vinteren lytte til flammernes knitren i brændeovnen (brænde er inkl.). Her finder I også en dobbelt sovesofa (135 cm). Herudover er der i stueetagen et soveværelse, et veludstyret køkken og et badeværelse med vaskemaskine og gulvvarme. På 1. sal er der yderligere et soveværelse (uden dør). Til huset hører et rigtig flot anneks (30 m2 af de totale 108 m2) med et soveværelse med dobbeltseng og en rigtig hyggelig hems med med åbent til kip, to madrasser og toilet.
Huset har en dejlig terrasse, som er udstyret med havemøbler og en grill til hyggelige grillaftener. Her kan I sidde og sole jer, mens I nyder udsigten over de fredfyldte, grønne omgivelser.
I bor i Ibsker lidt uden for hyggelige Svaneke, i et område der byder på mange unikke naturoplevelser og ikke mindt masser af ro. Men samtidig er I kun 10 minutters kørsel fra Svaneke og en sandstrand. Hvis I kan lide at fiske, er det bare med at lægge fiskestangen over skulderen og gå et par minutter til den nærliggende private fiskesø. I bor desuden tæt på to af øens store attraktioner: Rokkestenen og Østerlars Rundkirke.
I kan godt se frem til en afslappende ferie med base i dette dejlige feriehus i naturskønne omgivelser.
Feriebolig
Soveværelse (nr. 1) - 2 Sovepladser. (Dobbeltseng(e)).
Soveværelse (nr. 2) - 2 Sovepladser. (Dobbeltseng(e)).
Opholdsstue - 2 Sovepladser. (Sofa, madras eller lignende).
Køkken
Badeværelse (nr. 1) - WC. Varmt og koldt vand. Bruser
Terrasse el. lignende - Åben terrasse
Anneks 1
Soveværelse 30m2 (nr. 1) - 2 Sovepladser. (Dobbeltseng(e)).
Hems 30m2 - 2 Sovepladser. (Madras).
Feriehuset i to plan er istandsat og godt indrettet. Husets hjerte er den kombinerede opholds- og spisestue i stueetagen, hvor I kan se film, høre radio eller musik og om vinteren lytte til flammernes knitren i brændeovnen (brænde er inkl.). Her finder I også en dobbelt sovesofa (135 cm). Herudover er der i stueetagen et soveværelse, et veludstyret køkken og et badeværelse med vaskemaskine og gulvvarme. På 1. sal er der yderligere et soveværelse (uden dør). Til huset hører et rigtig flot anneks (30 m2 af de totale 108 m2) med et soveværelse med dobbeltseng og en rigtig hyggelig hems med med åbent til kip, to madrasser og toilet.
Huset har en dejlig terrasse, som er udstyret med havemøbler og en grill til hyggelige grillaftener. Her kan I sidde og sole jer, mens I nyder udsigten over de fredfyldte, grønne omgivelser.
I bor i Ibsker lidt uden for hyggelige Svaneke, i et område der byder på mange unikke naturoplevelser og ikke mindt masser af ro. Men samtidig er I kun 10 minutters kørsel fra Svaneke og en sandstrand. Hvis I kan lide at fiske, er det bare med at lægge fiskestangen over skulderen og gå et par minutter til den nærliggende private fiskesø. I bor desuden tæt på to af øens store attraktioner: Rokkestenen og Østerlars Rundkirke.
I kan godt se frem til en afslappende ferie med base i dette dejlige feriehus i naturskønne omgivelser.
Feriebolig
Soveværelse (nr. 1) - 2 Sovepladser. (Dobbeltseng(e)).
Soveværelse (nr. 2) - 2 Sovepladser. (Dobbeltseng(e)).
Opholdsstue - 2 Sovepladser. (Sofa, madras eller lignende).
Køkken
Badeværelse (nr. 1) - WC. Varmt og koldt vand. Bruser
Terrasse el. lignende - Åben terrasse
Anneks 1
Soveværelse 30m2 (nr. 1) - 2 Sovepladser. (Dobbeltseng(e)).
Hems 30m2 - 2 Sovepladser. (Madras).
Afstande fra ferieboligen og placering på kort
- Afs. til nærmeste vand/badning 6,6 km
- Afstand til alt. vand/badning 4,1 km
- Afstand til indkøb 5,5 km
- Golfbane 18,8 km
- Nærmeste by 5,5 km
Nærtliggende sommerhuse
Er I flere familier, der gerne vil bo tæt på hinanden kan I søge efter nærtliggende sommerhuseSe nabohuse
Vores gæstevurderinger Eksterne vurderinger
Priser og kalender
Kalender
Ankomst
-
december 2026
ma ti on to fr lø sø 49 1 2 3 4 5 6 50 7 8 9 10 11 12 13 51 14 15 16 17 18 19 20 52 21 22 23 24 25 26 27 53 28 29 30 31 1 -
januar 2027
ma ti on to fr lø sø 53 1 2 3 1 4 5 6 7 8 9 10 2 11 12 13 14 15 16 17 3 18 19 20 21 22 23 24 4 25 26 27 28 29 30 31 5
Se om emnet er ledigt på den valgte dato
Ledig
Optaget
Ankomst mulig
Varighed
Pris
Periode
- Ankomst
- Afrejse
- Varighed
- 2 overnatninger
Personer
Op til 6 personer
Bemærk
Ankomst er ikke valgt.