Sommerhus med pool og spa nær strand
Bregnevej - Ordrup/Veddinge - 4540 - Fårevejle
12 personer
Rummeligt sommerhus med pool, spa, sauna og tæt på strand i Ordrup.
Fakta om boligen
- 12 personer
- 2 husdyr
- Rygning ikke tilladt
- 6 soveværelser
- 2 badeværelser
- Vand 500
- Indkøb 3850
Faciliteter
Adgang til ferieboligen
-
Nøgleboks med kode
Bemærk
-
Ingen ungdomsgrupper efter anmodning
-
Rygning er forbudt
Indretning
-
Antal børn (0-3 år)1
-
Antal børn 4-11 år2
-
Antal voksne inkl. 4-11 år12
-
Bebygget areal192 m²
-
Brændeovn1
-
Byggeår1962
-
Feriebolig
-
Frysekapacitet (antal liter)85
-
Gulvvarme
-
Husdyr2
-
Højstol1
-
Renovering2003
-
Tørretumbler1
-
Varmepumpe
-
Varmepumpe luft til vand
-
Vaskemaskine1
Køkken
-
Antal induktionskogeplader4
-
Køleskab2
-
Mikrobølgeovn1
-
Opvaskemaskine1
-
Varmluftovn1
Multimedier
-
> 3 danske kanaler
-
> 3 tyske kanaler
-
0-3 norske kanaler
-
0-3 svenske kanaler
-
Antal tv'er1
-
Radio
-
Trådløst internet
Soveforhold
-
Antal soveværelser6
-
Barneseng1
-
Dobbeltseng (antal sovepladser)4
-
Enkeltseng (antal sovepladser)8
Spa
-
Indendørs spabad (antal personer)2
Swimmingpool
-
Indendørs swimmingpool
-
Svømmebassinets bredde3,5
-
Svømmebassinets dybde1,3
-
Svømmebassinets længde6
Toilet og bad
-
Antal badeværelser2
-
Antal toiletter2
-
Brusekabine
-
Gulvvarme2
-
Sauna
Udenfor
-
Anlagt have
-
Butik3,9 km
-
Golfbane3,7 km
-
Grill1
-
Hav500 m
-
Legeplads400
-
Overdækket terrasse19 m²
-
Parkeringsplads ved huset
-
Størrelse af grunden1647 m²
-
Terrasse21 m²
Beskrivelse
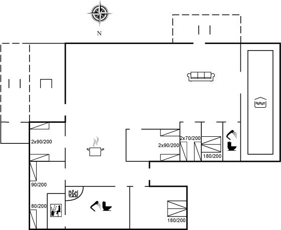
Dette rummelige sommerhus med indendørs swimmingpool, spa og sauna er beliggende i Ordrup med kun 500 meter til den populære Ordrup Strand og med under 50 meter til Kårup Skov.
Huset er simpelt indrettet og med lidt slid hist og her. For de rette gæster kompenseres dette til fulde af den megen plads, hvor flere familier og generationer kan slappe af og hygge sig med leg i poolen og opleve de naturskønne omgivelser i området.
Huset indeholder et stort køkkenalrum i åben forbindelse med stuen og mellem dette område og swimmingpoolområdet er desuden et klinkebelagt område med yderligere plads til hygge og samvær.
Der er i alt 6 soveværelser med hver 2 sovepladser. Der er 2 badeværelser med bruseniche og gulvvarme. I det ene er der desuden spa og sauna. Der vaskemaskine og tørretumbler.
Swimmingpoolen opvarmes energivenligt via luft-til-vand varmepumpe og vandet fra swimmingpoolen cirkulerer rundt og sørger for vandbåren gulvvarme i huset. På solskinsdage bidrager solpanelerne på taget også til opvarmningen. I badeværelset med spa er gulvvarmen dog elektrisk. Der er desuden brændeovn.
På den store grund er der rig mulighed for leg med børnene og på terrasserne kan solen og det gode vejr nydes. En del af terrasseområdet er overdækket.
Indretning
Sommerhuset egner sig til 12 personer samt 1 barn op til 3 år. 2 af sovepladserne er kun egnet til større børn (4-11 år). Ferieboligen er på 192 m² og er bygget i 1962. I 2003 gennemgik ferieboligen en renovering. Det er tilladt at medbringe 2 husdyr. Ferieboligen er udstyret med energibesparende luft til vand varmepumpe. Hele ferieboligen har gulvvarme. Ferieboligen har vaskemaskine. Tørretumbler. Frysekapacitet på 85 liter. Der er desuden brændeovn. Til de små er der 1 stk. barnestol.
Udenfor
Ferieboligen er beliggende på en 1647 m² stor havegrund. Der er 500 m til havet. Nærmeste forretning er beliggende i en afstand af 3850 m. Der er en golfbane i en afstand af 3650 m. Til ferieboligen hører 21 m² terrasseareal. Desuden er der 19 m² overdækket terrasse. Der ligger en legeplads i en afstand af 400 m. Grill til rådighed. Parkering ved ferieboligen.
Swimmingpool
I den indendørs swimmingpool er der mulighed for leg og hyggeligt samvær. Swimmingpoolen måler op til 3,5 m i bredden, 6 m i længden og den er op til 1,3 m dyb. Vandet er mellem 24 og 28° C varmt.
Soveforhold
Der er i alt 6 soveværelser. Sovepladserne fordeler sig på: 4 sovepladser i dobbeltsenge. 8 sovepladser i enkeltsenge. Derudover er der 1 stk. barneseng.
Køkken
Køkkenet er udstyret med 2 køleskabe. Der er 4 induktionskogeplader, varmluftovn, mikrobølgeovn samt opvaskemaskine.
Toilet og bad
Der er 2 badeværelser med bruseniche og 2 toiletter. Der er gulvvarme på 2 badeværelser. I saunaen er der mulighed for afslapning.
Spa
Der er mulighed for afslapning i indendørs spa til 2 personer.
Multimedier
I ferieboligen er der 1 TV. Radio. Der er mindst 4 danske kanaler. 1-3 svenske kanaler. 1-3 norske kanaler. Mindst 4 tyske kanaler. Der er trådløst internet til rådighed.
Værd at vide
Ingen udlejning til ungdomsgrupper, hvor alle er 15-25 år. Rygning ikke tilladt. Ved overtrædelse af forbuddet opkræves et gebyr på minimum DKK 3.000,-.
Indretning
Sommerhuset egner sig til 12 personer samt 1 barn op til 3 år. 2 af sovepladserne er kun egnet til større børn (4-11 år). Ferieboligen er på 192 m² og er bygget i 1962. I 2003 gennemgik ferieboligen en renovering. Det er tilladt at medbringe 2 husdyr. Ferieboligen er udstyret med energibesparende luft til vand varmepumpe. Hele ferieboligen har gulvvarme. Ferieboligen har vaskemaskine. Tørretumbler. Frysekapacitet på 85 liter. Der er desuden brændeovn. Til de små er der 1 stk. barnestol.
Udenfor
Ferieboligen er beliggende på en 1647 m² stor havegrund. Der er 500 m til havet. Nærmeste forretning er beliggende i en afstand af 3850 m. Der er en golfbane i en afstand af 3650 m. Til ferieboligen hører 21 m² terrasseareal. Desuden er der 19 m² overdækket terrasse. Der ligger en legeplads i en afstand af 400 m. Grill til rådighed. Parkering ved ferieboligen.
Swimmingpool
I den indendørs swimmingpool er der mulighed for leg og hyggeligt samvær. Swimmingpoolen måler op til 3,5 m i bredden, 6 m i længden og den er op til 1,3 m dyb. Vandet er mellem 24 og 28° C varmt.
Soveforhold
Der er i alt 6 soveværelser. Sovepladserne fordeler sig på: 4 sovepladser i dobbeltsenge. 8 sovepladser i enkeltsenge. Derudover er der 1 stk. barneseng.
Køkken
Køkkenet er udstyret med 2 køleskabe. Der er 4 induktionskogeplader, varmluftovn, mikrobølgeovn samt opvaskemaskine.
Toilet og bad
Der er 2 badeværelser med bruseniche og 2 toiletter. Der er gulvvarme på 2 badeværelser. I saunaen er der mulighed for afslapning.
Spa
Der er mulighed for afslapning i indendørs spa til 2 personer.
Multimedier
I ferieboligen er der 1 TV. Radio. Der er mindst 4 danske kanaler. 1-3 svenske kanaler. 1-3 norske kanaler. Mindst 4 tyske kanaler. Der er trådløst internet til rådighed.
Værd at vide
Ingen udlejning til ungdomsgrupper, hvor alle er 15-25 år. Rygning ikke tilladt. Ved overtrædelse af forbuddet opkræves et gebyr på minimum DKK 3.000,-.
Afstande fra ferieboligen og placering på kort
- Butik 3,9 km
- Golfbane 3,7 km
- Hav 500 m
Nærtliggende sommerhuse
Er I flere familier, der gerne vil bo tæt på hinanden kan I søge efter nærtliggende sommerhuseSe nabohuse
Vores gæstevurderinger Eksterne vurderinger
Priser og kalender
Kalender
Varighed
Pris
Periode
- Ankomst
- Afrejse
- Varighed
- 1 uge
Personer
Op til 12 personer
Bemærk
Ankomst er ikke valgt.