Hyggeligt sommerhus nær skov og strand

Pøt Strandby - Pøt Strandby - 7130 - Juelsminde

6 personer
heraf 2 børn (0-11 år)
7 overnatninger
Fra DKK 3.678,-
Inkl. rengøring og forsikring
4 voksne 2 børn
Hyggeligt sommerhus tæt på skov og strand i Pøt Strandby med stor have og overdækket udestue.

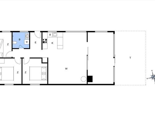
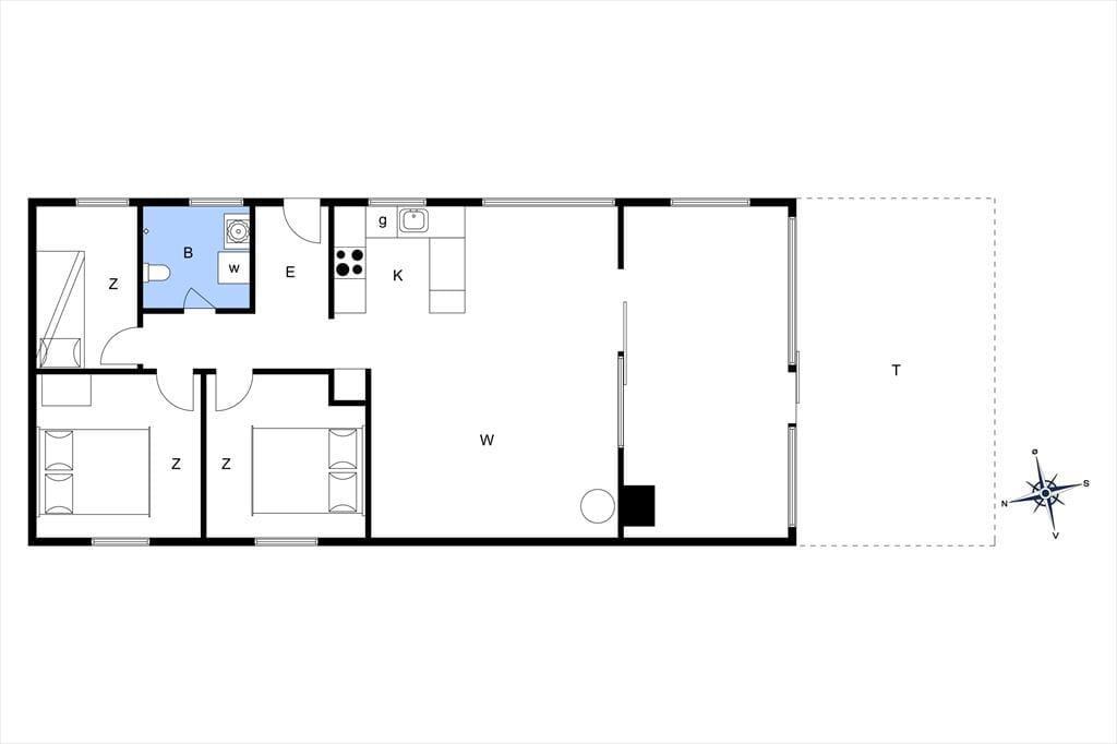
Fakta om boligen

  • 6 personer
  • 1 husdyr
  • Rygning ikke tilladt
  • 3 soveværelser
  • 1 badeværelse
  • Vand 250
  • Indkøb 4000

Faciliteter

Hus Info

  • Antal børn
    2
  • Antal etager i lejemålet
    1
  • Antal husdyr
    1
  • Antal voksne
    4
  • Bruser
  • Byggeår
    1979
  • Delvis renoveret år
    2024
  • Grundareal / Delvis indhegnet grund
    959 m²
  • Husareal
    71 m²
  • WC

Afstande

  • Afstand golfbane
    5 km
  • Afstand hav
    250 m
  • Afstand indkøb / Helårsbutik
    4 km
  • Afstand kyst
    250 m
  • Afstand restaurant
    7 km
  • Afstand strand / Sand-/stenstrand
    250 m
  • Afstand svømmehal
    12 km

Energi / Opvarmning

  • 4 x Elvarme
  • Brændeovn
  • Varmepumpe / Med køl

Hårde hvidevarer

  • Elkedel
  • Emhætte
  • Kaffemaskine
  • Komfur
  • Køleskab med frys
  • Mikroovn
  • Opvaskemaskine
  • Vaskemaskine

Multimedier

  • Chromecast
    • Det er muligt at se egne TV- og streamingtjenester via den indbyggede TV i husets Chromecast/Ap...
  • Gratis Wi-Fi - Over 100 Mbit
  • TV
    Der er ikke TV-kanaler i huset, men egne TV- og streamingtjenester kan ses via husets Chromecast/...

Ekstra

  • Golfferie

Udenfor

  • Grill
    Trækulgrill
  • Havemøbler
  • Liggestole
    1
  • Parkering på grunden
  • Terrasse

Diverse

  • 2 x Dobbeltseng 140x200
  • 5 x Træ-/parketgulv
  • Flise-/klinkegulv
  • Køjeseng 2x90x200
  • Åbent køkken

Regler

  • Husdyr: Kun hunde tilladt
  • Opladning af elbil ikke tilladt
  • Rygning ikke tilladt

Pris inklusiv

  • Slutrengøring inkl.

Beskrivelse

Dejligt sommerhus i hyggelige og afslappende omgivelser tæt ved skov og strand

Velkommen indenfor:
Mellem den strålende blå himmel og de fortryllende grønne træer ligger Pøt Strandby 100. Dette indbydende, klassiske sommerhus byder på 71 m² ren ferieoplevelse med et charmerende nyt køkken, komfortable værelser, et forfriskende badeværelse og en indbydende stue. De store vinduer i stuen lader det naturlige lys strømme ind og skaber en lys og luftig atmosfære, der indbyder til ro og afslapning. Her kan du fordybe dig foran brændeovnen på kølige aftener, mens varmen omfavner dig, og du nyder en god bog med benene oppe og en skøn kop kaffe i hånden. I den hyggelige overdækkede udestue kan man også nyde sine måltider. Alle rum er designet til at skabe en følelse af hjemlig hygge og ferieafslapning, så du kan sænke skuldrene og lade hverdagens stress forsvinde i det fredfyldte miljø.

Nyd livet udenfor:
Sommerhuset ligger få minutters gang fra stranden, og udenfor venter en stor sydvendt have, klar til at blive udforsket og nydt i fulde drag. Den overdækkede udestue eller terrassen indbyder til lange aftener med grillmad og samtaler under stjernerne. Alt er skabt for at lade dig koble af og finde ro i øjeblikket, mens du nyder alt, hvad sommerhuslivet har at tilbyde.

Kom tæt på de lokale oplevelser:
Sommerhuset er beliggende i den hyggelige og naturskønne feriekoloni Pøt Strandby. Fra sommerhuset er der kort afstand til stranden, som indbyder til lange gåture og afslapning.
Pøt Strandby ligger ca. 8 km fra den hyggelige havneby Juelsminde, som nås på 10 minutters kørsel.
Juelsminde er kendetegnet ved sin hyggelige maritime havn, børnevenlige strande og den charmerende bymidte med spændende forretninger, gode indkøbsmuligheder, spisesteder og attraktioner. Området er dejligt roligt, og her kan man slappe af samtidig med, at der er masser af aktiviteter for familien.

Oplev den nye Naturlegepark tæt på havnen, hvor 8 meter høje legetårne er placeret op ad Odelsbjerget, samt et væld af legeredskaber, faciliteter, baner og udfordringer – inklusive 2 nye padel-tennisbaner. Det varierede udvalg af aktiviteter betyder, at der kan leges og udfordres i timevis.
En halv times kørsel derfra ligger Horsens, hvor du bl.a. kan besøge det spændende Fængselsmuseum og Aqua Forum. I området omkring Pøt Strandby er der mange gode stier i smuk natur. Man kan for eksempel gå en tur gennem skoven til Nørgaard Strand. Vi anbefaler også en tur langs kyststien – enten til Snaptun eller Juelsminde – eller en gåtur i den lokale park ved Palsgaard Gods.

Velkommen til det fine sommerhus i Pøt Strandby, Juelsminde!

Afstande fra ferieboligen og placering på kort

  • Afstand golfbane 5 km
  • Afstand hav 250 m
  • Afstand indkøb / Helårsbutik 4 km
  • Afstand kyst 250 m
  • Afstand restaurant 7 km
  • Afstand strand / Sand-/stenstrand 250 m
  • Afstand svømmehal 12 km
Der tages forbehold for evt. fejlplacering. Husadressen fremgår af lejebeviset.

Vores gæstevurderinger Eksterne vurderinger

4,0
Baseret på 1 vurdering
Vurderet d. 02-05-2025
5
(0)
4
(1)
3
(0)
2
(0)
1
(0)
Kommentarer
1 vurdering har kommentar på dansk.
4,0
2 voksne 1 barn 1 husdyr 10 overnatninger 2025 april
Perfekt sommerhus til en familie på 3 eller 4-5. Men ikke til 2 familier, for det er for lille. Flot udestue, det bliver dejlig varmt når solen skinner. Lille feedback: køkkenet kunne have flere gryder, knive, en køkkenvægt, en stavblender,flere skåle. Det er besværligt når man står og laver mad og mangler fx gryder. Ellers er det hele nyt i køkkenet, Ikea ting som fungerer perfekt. En gitter rundt om brændeovnen vil jo være fint.Vi kunne kun bruge brændeovnen om aftenen efter voressøn på 2,5 år gik i seng.

Priser og kalender

Kalender

Ankomst
Forrige Næste
   Se om emnet er ledigt på den valgte dato
Ledig
Optaget
   Ankomst mulig
Varighed
Personer

Pris

Periode
Ankomst
Afrejse
Varighed
1 uge
Personer
Ingen personer er valgt

Bemærk

Ankomst er ikke valgt.
Der er ikke valgt personer.
Aftale- og lejebetingelser