Lækkert feriehus med sauna og spa nær strand

Jolanthavej - Søndervig - 6950 - Ringkøbing

6 personer
7 overnatninger
Fra DKK 4.923,-
Lækkert feriehus med stråtag, sauna og spa, tæt på stranden i Søndervig.

Fakta om boligen

  • 6 personer
  • 2 husdyr
  • Rygning ikke tilladt
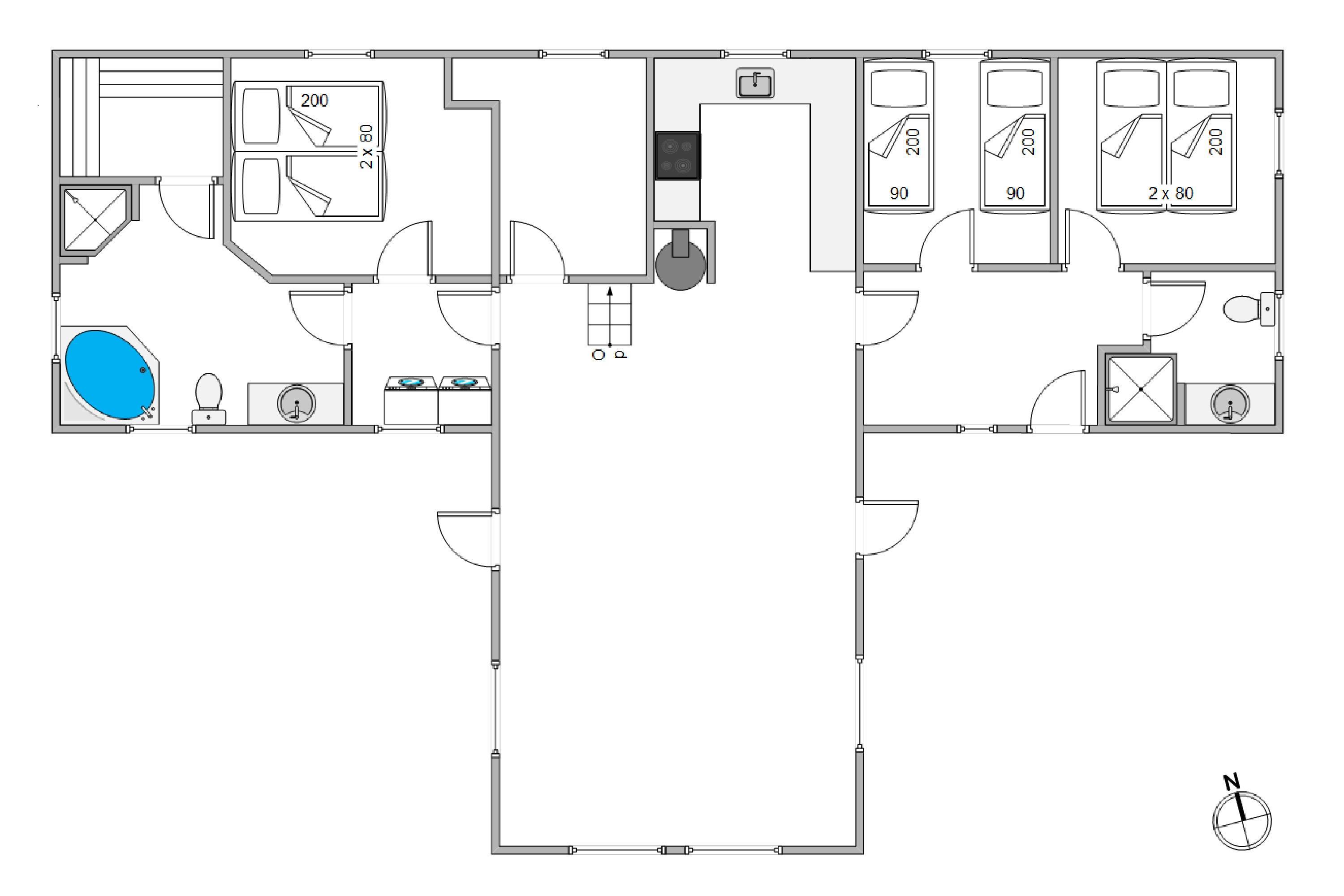
  • 4 soveværelser
  • 2 badeværelser
  • Vand 500
  • Indkøb 2000

Faciliteter

Opholdsrum

  • CD afspiller
  • DVD-afspiller
    1
  • Gulv: Klinker
  • Gulvvarme
  • Radio
  • Brændeovn
  • Fladskærms-TV
    1

Soverum

  • Ekstra sovepl. Hems
    2
  • Gulv: Trælaminat
  • Gulvvarme
  • Dobbeltsenge
    2
  • Enkeltsenge
    1
  • Sovepladser
    6
  • Soverum
    4
  • Ekstra sovepl. sovesofa: Enkelt
    1

Køkken

  • Komfur: Induktion m. ovn
  • Køleskab
  • Opvaskemaskine
  • Mikroovn
  • Separat fryser /L
    90

Baderum

  • Sauna
  • Gulvvarme bad
  • Antal badeværelser
    2
  • Tømmespa, antal pers.
    2

Objektinfo - Inde

  • Areal: Hus m²
    120
  • Byggeår
    2011
  • Husdyr tilladt
  • Husdyr antal, max
    2
  • Ikke ryger hus
  • Personantal
    6
  • Danske TV-kanaler (Betalingskanaler)
  • Tyske tv-programmer
  • Tørretumbler
  • Vaskemaskine
  • Satellit (tyske kanaler samt et par danske)
  • Flere hunde ved forespørgsel
  • Gratis fiber Internet
  • Varmepumpe luft til vand
  • Chromecast
  • Jubilæumsmønt er udleveret

Objektinfo - ude

  • Afstand i meter: Hav
    500 m
  • Afstand i meter: Indkøb
    2 km
  • Grundens areal i m2
    4271
  • Gynge
  • Sandkasse
  • Grill
  • Havemøbler
  • Solvogne
  • Parasol
  • Terrasse: Afskærmet
  • Terrasse: Lukket
  • Redskabsrum
  • Klitgrund
  • Affald hentes:
    Fredag
  • Affald: Helårstømning
  • Skraldespand - Liter
    240

Koncepter

  • Skiftedag: Fredag
  • Varme: 48 timer før ankomst

Miniferie

  • Ja, tak - tillad miniferie

Beskrivelse

Her på Jolanthavej 6 finder I et fantastisk flot og velindrettet feriehus med stråtag for den kvalitetsbevidste lejer. Sommerhuset kan tilbyde et fantastisk indemiljø og to badeværelser og  er utrolig dejligt beliggende på en stor naturgrund tæt på stranden. På den afskærmede terrasse kan du nyde den smukke udsigt over området. Det er tilladt at medbringe to hunde.

Lækkert feriehus med stråtag på Jolanthavej 6 tæt på stranden og Søndervig

Her finder I et lækkert feriehus som er opført i 2011, beliggende lige uden for i Søndervig, som er bygget i mursten og med stråtag. Der er en energibesparende varmpepumpe i huset, rengøringsvenlige klinkegulve i opholdsrummene og trælaminat i værelserne. Huset er særdeles smagfuldt indrettet og fremstår samtidigt lyst og venligt med loft til kip i stuen. De store vinduespartier giver både et skønt lys og giver en følelsen af at være midt i den skønne natur.

Det store opholdsrum giver jer virkelig mulighed for at slappe af og bare nyde hinandens selskab. Her er dejlige møbler hvor I kan slappe af og se noget tv, eller I kan hygge jer med nogle af jeres medbragte brætspil. Uanset hvad I beslutter jer for, så kan I hygge jer her i huset. Huset brændeovn bidrager i høj grad også til den hyggelige stemning, så hvis I ønsker ægte dansk feriehygge, er det især oplagt at tænde op for den.

Naturligvis har dette feriehus to badeværelser, spa og sauna

I et moderne feriehus forventer man to badeværelser med gulvvarme, så der kan bo to familier eller en stor familie i huset. Og det er i dette feriehus naturligt også tilfældet. Derudover er der er 3 soveværelser, et ekstra værelse med en sofa og et fladskærms-TV, hvor man kan tilslutte sin medbragte spilkonsol. Efter en travetur langs Vesterhavet er det altid skønt at komme tilbage til huset, tænde op i brændeovnen og nyde varmen og de fredfyldte flammer.

Et skønt område for familien med børn og hund

Har man børn eller hund med på ferie, er dette hus ideelt året rundt, da det er velegnet til helårsbeboelse, og beliggenheden i det fredfyldte område lige syd for Søndervig er altid smuk. Den lukkede terrasse gør det ligeledes let at have hund og børn med, idet du kan slappe af på solsengen uden at være bekymret for, at to- eller firbenede gavtyve skulle stikke af.

Der er gode stisystemer lige uden for huset, som forbinder hele området mellem Søndervig og Hvide Sande, hvor både motionister og cyklister færdes.

Afstande fra ferieboligen og placering på kort

  • Afstand i meter: Hav 500 m
  • Afstand i meter: Indkøb 2 km
Der tages forbehold for evt. fejlplacering. Husadressen fremgår af lejebeviset.

Priser og kalender

Kalender

Ankomst
Næste
  • februar 2026
    mationtofr
    51
    62345678
    79101112131415
    816171819202122
    9232425262728
    10
  • marts 2026
    mationtofr
    91
    102345678
    119101112131415
    1216171819202122
    1323242526272829
    143031
   Se om emnet er ledigt på den valgte dato
Ledig
Optaget
   Ankomst mulig
Varighed

Pris

Periode
Ankomst
Afrejse
Varighed
1 uge
Personer
Op til 6 personer

Bemærk

Ankomst er ikke valgt.
Aftale- og lejebetingelser