Charmerende sommerhus tæt på Vesterhavet

Wolle Friks Vej - Søndervig - 6950 - Ringkøbing

4 personer
7 overnatninger
Fra DKK 3.453,-
Charmerende sommerhus i Søndervig med stor naturgrund nær Vesterhavet og plads til hund.

Fakta om boligen

  • 4 personer
  • 1 husdyr
  • Rygning ikke tilladt
  • 2 soveværelser
  • 1 badeværelse
  • Vand 700
  • Indkøb 1800

Faciliteter

Opholdsrum

  • Gulv: Trælaminat
  • Radio
  • Brændeovn
  • Fladskærms-TV
    1

Soverum

  • Gulv: Trælaminat
  • Dobbeltsenge
    1
  • Enkeltsenge
    2
  • Sovepladser
    4
  • Soverum
    2
  • 1. soverum/sengestørrelser
    1x180x200
  • 2. soverum/sengestørrelser
    2x90x200

Køkken

  • Komfur: El m. ovn
  • Køleskab
  • Opvaskemaskine
  • Mikroovn
  • Separat fryser /L
    80

Baderum

  • Gulvvarme bad
  • Antal badeværelser
    1

Objektinfo - Inde

  • Areal: Hus m²
    75
  • Byggeår
    1985
  • Barneseng
    1
  • Barnestol
    1
  • Husdyr tilladt
  • Husdyr antal, max
    1
  • Ikke ryger hus
  • Gratis Internet
  • Personantal
    4
  • Renoveret
    2024
  • Danske TV-kanaler (Betalingskanaler)
  • Tyske tv-programmer
  • Tørretumbler
  • Varme: Elvarme
  • Varme: Varmepumpe luft til luft
  • Vaskemaskine
  • Satellit (tyske kanaler samt et par danske)
  • Flere hunde ved forespørgsel
  • Jubilæumsmønt er udleveret

Objektinfo - ude

  • Afstand i meter: Hav
    700 m
  • Afstand i meter: Indkøb
    1,8 km
  • Grundens areal i m2
    2282
  • Gynge
  • Sandkasse
  • Grill
  • Havemøbler
  • Solvogne
  • Parasol
  • Terrasse: åben
  • Terrasse: Afskærmet
  • Terrasse: Lukket
  • Terrasse: Overdækket
  • Redskabsrum
  • Naturgrund
  • Affald hentes:
    Fredag
  • Skraldespand - Liter
    240
  • Gasgrill

Koncepter

  • Skiftedag: Fredag

Miniferie

  • Ja, tak - tillad miniferie

Beskrivelse

I dette charmerende sommerhus i Søndervig kan I holde ferie med op til fire feriegæster, og hunden er også hjerteligt velkommen. Her er der garanti for feriestemning med en lys og venlig indretning i klassisk sommerhusstil. Den store naturgrund ligger kun 700 meter fra Vesterhavet. 

Masser af hygge og gode praktiske faciliteter på Wolle Friks Vej 37

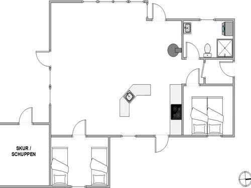
Sommerhuset på Wolle Friks Vej 37 indeholder et stort fællesrum, der forener stue, spiseafdeling og køkken med hinanden. Her kan I alle samles om madlavningen, hyggelige spilaftener og mange andre gode ferieøjeblikke, mens brændeovnen knitrer i baggrunden. Sommerhuset er på i alt 75 kvadratmeter, og er hele tiden løbende blevet renoveret. Derfor fremstår huset som utrolig velholdt og flot. Sommerhuset størrelse er helt ideelt til en lille familie eller en gruppe venner. Moderne bekvemmeligheder som en luft-til-luft varmepumpe sikrer en behagelig temperatur hele året rundt.

De to soveværelser er indrettet med henholdsvis en dobbeltseng og 2 enkeltsenge, perfekt til den lille familie. Badeværelset er udstyret med gulvvarme, så I ikke får kolde fødder, når der skal børstes tænder om morgenen. Derudover er der en vaskemaskine og tørretumbler, så I kan holde jeres tøj friskt under hele opholdet. Med gratis internet har I mulighed for at holde kontakten med omverdenen, eller måske streame en film foran brændeovnen efter en lang dag ved stranden. Her kommer I ikke kommer til at mangle nogen praktiske faciliteter på ferien.

Skøn naturgrund i Søndervig og kort vej til Vesterhavet

Det charmerende sommerhus ligger på en stor naturgrund, hvor børnene og hunden helt sikkert vil elske at gå på opdagelse, mens I holder øje med dem fra terrassen. Den omkringliggende naturgrund på 2282 m2 indbyder til leg og afslapning. For børnene er der både gynge og sandkasse til timevis af sjov. Med både grill, havemøbler og flere terrasser, herunder en overdækket og en afskærmet terrasse, er der rig mulighed for at nyde udendørslivet. En enkelt hund er naturligvis også velkommen. Der er få ting så afslappende som at nyde en stille stund på terrassen med en god bog eller en kop kaffe.

Knap 2 kilometer fra sommerhuset ligger Søndervigs centrum, som byder på indkøbsmuligheder, diverse butikker og spisesteder. Det brusende Vesterhav og den endeløse sandstrand ligger kun 700 meter væk, og lige meget hvornår på året I kommer, er der noget nyt og spændende at opleve her.

Afstande fra ferieboligen og placering på kort

  • Afstand i meter: Hav 700 m
  • Afstand i meter: Indkøb 1,8 km
Der tages forbehold for evt. fejlplacering. Husadressen fremgår af lejebeviset.

Priser og kalender

Kalender

Ankomst
Forrige Næste
  • april 2026
    mationtofr
    1412345
    156789101112
    1613141516171819
    1720212223242526
    1827282930
    19
  • maj 2026
    mationtofr
    18123
    1945678910
    2011121314151617
    2118192021222324
    2225262728293031
    23
   Se om emnet er ledigt på den valgte dato
Ledig
Optaget
   Ankomst mulig
Varighed

Pris

Periode
Ankomst
Afrejse
Varighed
1 uge
Personer
Op til 4 personer

Bemærk

Ankomst er ikke valgt.
Aftale- og lejebetingelser