Charmerende sommerhus nær Vesterhavet i Søndervig

Nordsøvej - Søndervig - 6950 - Ringkøbing

4 personer
7 overnatninger
Fra DKK 4.723,-
Charmerende sommerhus ved Søndervig med moderne faciliteter og dejlig terrasse tæt på Vesterhavet.

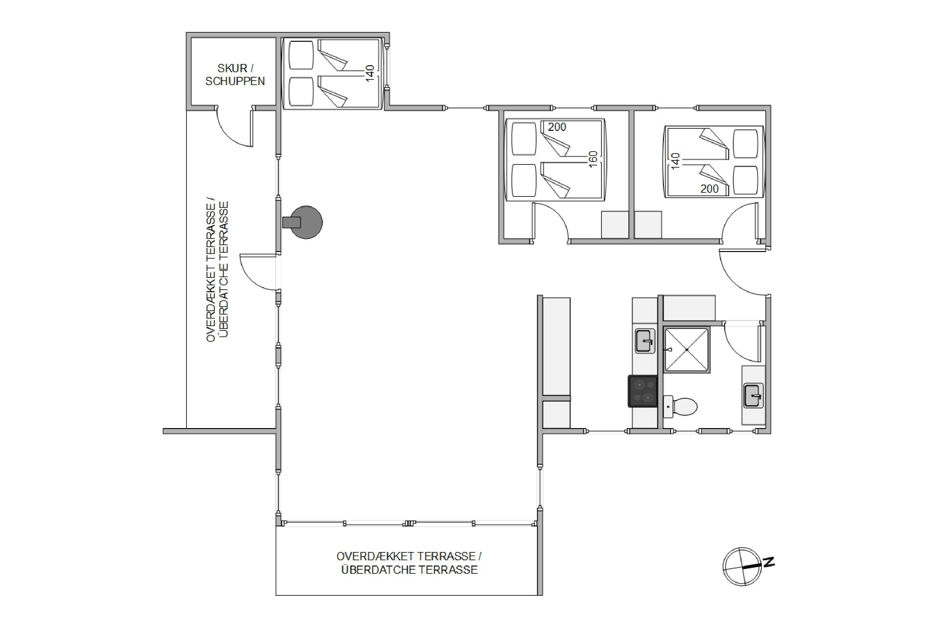
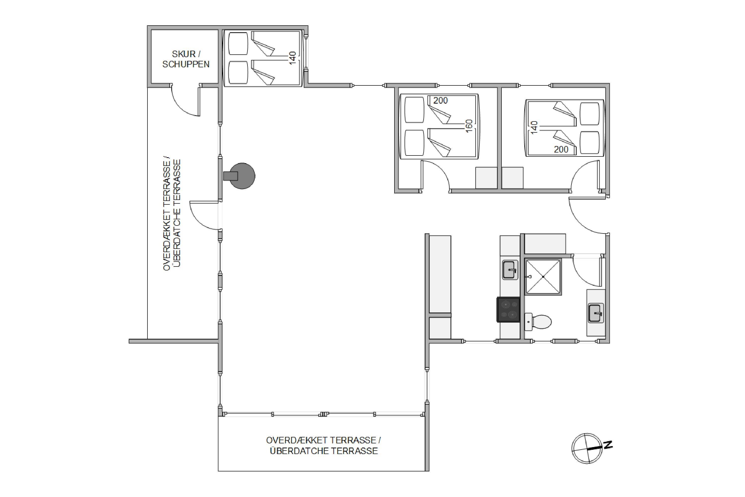
Fakta om boligen

  • 4 personer
  • Ingen husdyr
  • Rygning ikke tilladt
  • 2 soveværelser
  • 1 badeværelse
  • Vand 400
  • Indkøb 800

Faciliteter

Opholdsrum

  • Gulv: Træ
  • Brændeovn
  • Fladskærms-TV
    1

Soverum

  • Ekstra sovepl. alkove
    1
  • Gulv: Træ
  • Dobbeltsenge
    2
  • Sovepladser
    5
  • Soverum
    2
  • Antal personer (loft, anneks osv.)
    1
  • 1. soverum/sengestørrelser
    160x200
  • 2. soverum/sengestørrelser
    140x200

Køkken

  • Komfur: El m. ovn
  • Køleskab
  • Køleskab m. frostboks
  • Opvaskemaskine
  • Mikroovn

Baderum

  • Gulvvarme bad
  • Antal badeværelser
    1

Objektinfo - Inde

  • Areal: Hus m²
    92
  • Byggeår
    1985
  • Ikke ryger hus
  • Gratis Internet
  • Personantal
    4
  • Renoveret
    2020
  • Danske TV-kanaler (Betalingskanaler)
  • Tyske tv-programmer
  • Varme: Varmepumpe luft til luft
  • Satellit (tyske kanaler samt et par danske)
  • Chromecast
  • Jubilæumsmønt er udleveret

Objektinfo - ude

  • Afstand i meter: Hav
    400 m
  • Afstand i meter: Indkøb
    800 m
  • Grundens areal i m2
    1200
  • Grill
  • Havemøbler
  • Solvogne
  • Terrasse: Afskærmet
  • Terrasse: Overdækket
  • Naturgrund
  • Affald hentes:
    Onsdag
  • Skraldespand - Liter
    240

Koncepter

  • Skiftedag: Fredag

Miniferie

  • Ja, tak - tillad miniferie

Beskrivelse

På Nordsøvej 244 ved Søndervig ligger dette dejlige charmerende sommerhus. Huset er indbegrebet af dansk sommerhusferie. Det oser af charme, personlighed og plads til nærvær. Huset gennemgik en renovering i 2020, og fremstår velholdt, lyst og har en skøn indretning. I dette hus til 4 personer finder I Alt skal bruge til en sommerhusferie midt i den Vestjyske natur.

Nordsøvej 244 - Perfekt ferieoase til kvalitetstid med familien

Med sine 92m2 rummer sommerhuset over to hyggelige soverum med plads til maksimalt plads til 4 personer. Her er der højt til loftet og synlige loftsbjælker. Du får dermed en fornemmelsen af at være i et rigtigt sommerhus. Indretningen er hyggelig og personlig, og det skaber varme. Udover en dejlig sofagruppe har stuen en brændeovn, der hjælper med opvarmningen, og en lille hyggelig alkove, som er perfekt til afslapning på langs med en god bog – eller måske en lille hyggekrog til børnene.

Dette sommerhus er udstyret med en række moderne bekvemmeligheder, som vil gøre jeres ophold ekstra komfortabelt. En brændeovn sørger for hygge på kølige aftener, mens gulvvarme i badeværelset sikrer varme fødder om morgenen. En luft til luft varmepumpe bidrager til et behageligt indeklima året rundt. Sommerhuset har også gratis internet og Chromecast, så I kan streame jeres yndlingsprogrammer uden problemer.

Charmerende sommerhus med dejlig terrasse

Særligt husets terrasse er værd at fremhæve. Den flotte træterrasse er omkranset af et flot stakit, som skaber en hyggelig oase i uderummet. En del af terrassen er desuden overvækket. Det betyder, at I kan sidde ude lidt længere om aftenen, når duggen er faldet – og selv på en lun regnvejrsdag er det muligt at nyde frokosten i det fri. Terassen giver jer Der er rig mulighed for at nyde solen eller skyggen takket være både en overdækket terrasse og en afskærmet terrasse. Havemøblerne inviterer til afslapning og sociale stunder i det fri.

Søndervig – dejlig badeby ved Vesterhavet

Sommerhuset på Nordsøvej 244 ligger lidt syd for Søndervig. Nordsøvej er placeret i rolige omgivelser, midt i den flotte vestjyske natur. Med blot 400 meter til det brusende vesterhav, er der også rig mulighed for at I kan udforske den skønne natur med lange gåture til det brusende Vesterhav, der uanset årstiden bestemt er et besøg værd. 

Fra sommerhuset er der også kort afstand til spændende butikker og aktiviteter. For at være præcis har I kun ca. 800 meter til Søndervig centrum, hvor I kan finde et stort og godt supermarked, hvor I nemt kan købe ind til en lækker aftensmad. Hvis I dog ønsker at spise ude, finder I også et væld af gode restauranter midt i Søndervig. 

I Søndervig og omegn finder i også utallige muligheder for aktiviteter. Ved Lalandia i Søndervig kan børnene nyde godt af det store badelang og legeland. Her har I også en mulighed for at dyste i Padeltennis. Hvis I leder efter endnu restauranter og aktivitetsmuligheder, kan I besøge de nærliggende byer, Hvide Sande og Ringkøbing, der begge byder på et væld af Restauranter, aktiviteter og shoppemuligheder.

 

Afstande fra ferieboligen og placering på kort

  • Afstand i meter: Hav 400 m
  • Afstand i meter: Indkøb 800 m
Der tages forbehold for evt. fejlplacering. Husadressen fremgår af lejebeviset.

Vores gæstevurderinger Eksterne vurderinger

5,0
Baseret på 1 vurdering
Vurderet d. 13-09-2025
5
(1)
4
(0)
3
(0)
2
(0)
1
(0)
Kommentarer
Ingen vurderinger har kommentarer.

Priser og kalender

Kalender

Ankomst
Forrige Næste
  • august 2026
    mationtofr
    3112
    323456789
    3310111213141516
    3417181920212223
    3524252627282930
    3631
  • september 2026
    mationtofr
    36123456
    3778910111213
    3814151617181920
    3921222324252627
    40282930
    41
   Se om emnet er ledigt på den valgte dato
Ledig
Optaget
   Ankomst mulig
Varighed

Pris

Periode
Ankomst
Afrejse
Varighed
1 uge
Personer
Op til 4 personer

Bemærk

Ankomst er ikke valgt.
Aftale- og lejebetingelser