Hyggeligt sommerhus i Strøby med havudsigt, terrasse og tæt på strand og natur.
Fakta om boligen
- 7 personer
- Ingen husdyr
- Rygning ikke tilladt
- 3 soveværelser
- 1 badeværelse
- Vand 0
- Indkøb 0
Faciliteter
Indendørs
-
Aircondition
-
Antal badeværelser1
-
Antal enkeltsenge6
-
Antal madrasser2
-
Antal soveværelser3
-
Antal stuer1
-
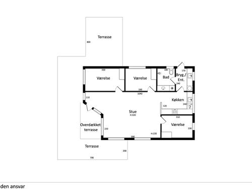
Boligareal (m²)82
-
Bruser
-
Fladskærms TV
-
Førstehjælpskasse
-
Hårtørrer
-
Kulilte detektor
-
Legetøj
-
Liggestole
-
Radiator
-
Rengøringsprodukter
-
Røgalarm
-
Samlet antal værelser3
-
Skab
-
Stereo
-
Støvsuger
-
TV
-
Vaskemaskine
-
WiFiGratis
Køkken
-
Fryser
-
Grundlæggende madlavning (gryder og pander)
-
KaffemaskineNormal
-
Krydderier
-
Køkken
-
Køkken komfurKeramisk
-
Køkkenredskaber
-
Køleskab
-
Mikrobølgeovn
-
Opvaskemaskine
-
Ovn
-
Sandwich maker
-
Toaster
-
Vinglas
Udendørs
-
Grill
-
gynge
-
Have
-
Indhegnet område
-
Legeplads
-
Udendørs møbler
Egnethed
-
Huset er for ikke-rygere
-
Huset er ikke egnet til grupper af unge
-
Huset er velegnet til børn
-
Huset kan ikke lejes af skoler
Strand
-
Strand
Diverse
-
Privat indgang
-
Restaurant1
-
Udlejning kun til ferieudlejning
Beskrivelse
Information omkring ankomst bliver sendt som besked 4 dage før ankomst
Hyggeligt sommerhus nær vandet
Dette charmerende sommerhus er en sand perle, perfekt placeret for at udforske alt det bedste, Sjælland har at byde på. Med tre veludstyrede soveværelser, herunder to med enkeltsenge, der kan omdannes til dobbeltsenge, og et børneværelse, tilbyder huset komfortable sovepladser til otte personer. Der er også en foldbar madras til rådighed. Køkkenet er en drøm for enhver, der elsker at lave mad, med en betagende havudsigt, som også kan nydes fra flere steder i huset. Stuen er rummelig med et spiseområde, et hyggeligt sofaarrangement, og et 65" smart TV, perfekt til aftenhygge. Store vinduer i stuen sikrer en smuk udsigt over haven og masser af naturligt lys. Huset er udstyret med trådløs internetadgang og smart TV, som understøtter streamingtjenester som Netflix og HBO. Beliggenheden er ideel, kun en kort gåtur fra offentlig transport, hvilket gør det let at udforske området. Strøby Egede, beliggende på Stevns, byder på fantastiske naturoplevelser og er et perfekt udgangspunkt for at udforske både den idylliske natur og historiske seværdigheder. Stevns Klint, et UNESCO verdensarvssted, er et must-see, ligesom Roskilde med dens berømte Domkirke og Vikingeskibsmuseum. København, med sine utallige attraktioner, er kun en kort køretur eller togrejse væk. Dette hus er mere end blot et sted at bo; det er en mulighed for at opleve det bedste af dansk kultur og natur, alt sammen inden for rækkevidde. Hvad enten du søger en rolig ferie i smukke omgivelser eller en base for at udforske Sjællands mange tilbud, er dette stedet for dig. Obs, udlejes ikke til erhversmæssigt brug.
Obs, udlejes ikke til erhversmæssigt brug.
Huset ligger i et stille område kun 100 m fra havet med en stor terrasse, indhegnet have og havemøbler. Nogle af Danmarks mest spektakulære naturoplevelser og byture er lige om hjørnet.
Hyggeligt sommerhus nær vandet
Dette charmerende sommerhus er en sand perle, perfekt placeret for at udforske alt det bedste, Sjælland har at byde på. Med tre veludstyrede soveværelser, herunder to med enkeltsenge, der kan omdannes til dobbeltsenge, og et børneværelse, tilbyder huset komfortable sovepladser til otte personer. Der er også en foldbar madras til rådighed. Køkkenet er en drøm for enhver, der elsker at lave mad, med en betagende havudsigt, som også kan nydes fra flere steder i huset. Stuen er rummelig med et spiseområde, et hyggeligt sofaarrangement, og et 65" smart TV, perfekt til aftenhygge. Store vinduer i stuen sikrer en smuk udsigt over haven og masser af naturligt lys. Huset er udstyret med trådløs internetadgang og smart TV, som understøtter streamingtjenester som Netflix og HBO. Beliggenheden er ideel, kun en kort gåtur fra offentlig transport, hvilket gør det let at udforske området. Strøby Egede, beliggende på Stevns, byder på fantastiske naturoplevelser og er et perfekt udgangspunkt for at udforske både den idylliske natur og historiske seværdigheder. Stevns Klint, et UNESCO verdensarvssted, er et must-see, ligesom Roskilde med dens berømte Domkirke og Vikingeskibsmuseum. København, med sine utallige attraktioner, er kun en kort køretur eller togrejse væk. Dette hus er mere end blot et sted at bo; det er en mulighed for at opleve det bedste af dansk kultur og natur, alt sammen inden for rækkevidde. Hvad enten du søger en rolig ferie i smukke omgivelser eller en base for at udforske Sjællands mange tilbud, er dette stedet for dig. Obs, udlejes ikke til erhversmæssigt brug.
Obs, udlejes ikke til erhversmæssigt brug.
Huset ligger i et stille område kun 100 m fra havet med en stor terrasse, indhegnet have og havemøbler. Nogle af Danmarks mest spektakulære naturoplevelser og byture er lige om hjørnet.
Afstande fra ferieboligen og placering på kort
Nærtliggende sommerhuse
Er I flere familier, der gerne vil bo tæt på hinanden kan I søge efter nærtliggende sommerhuseSe nabohuse
Vores gæstevurderinger Eksterne vurderinger
Priser og kalender
Kalender
Varighed
Personer
Pris
Periode
- Ankomst
- Afrejse
- Varighed
- 1 uge
Personer
Ingen personer er valgt
Bemærk
Ankomst er ikke valgt.
Der er ikke valgt personer.