Charmerende sommerhus med fjordudsigt og sauna

Havnevej 12 nr. - Thorsminde - 6990 - Ulfborg

6 personer
heraf 2 børn (0-11 år)
7 overnatninger
Fra DKK 3.760,-
Inkl. rengøring og forsikring
Charmerende sommerhus i Thorsminde med fjordudsigt, sauna og stor terrasse.

Fakta om boligen

  • 6 personer
  • Ingen husdyr
  • Rygning ikke tilladt
  • 2 soveværelser
  • 1 badeværelse
  • Vand 50
  • Indkøb 300

Faciliteter

Hus Info

  • 2 x WC
  • Antal børn
    2
  • Antal etager i lejemålet
    2
  • Antal voksne
    4
  • Bruser
  • Byggeår
    2010
  • Fjordudsigt
  • Grundareal / Fælles grund
    50 m²
  • Husareal
    117 m²
  • Indendørs spabad
  • Panorama
  • Sauna

Afstande

  • Afstand fjord
    50 m
  • Afstand golfbane
    14 km
  • Afstand indkøb / Helårsbutik
    300 m
  • Afstand restaurant
    300 m
  • Afstand strand / Sand-/stenstrand
    300 m
  • Afstand svømmehal
    16 km

Energi / Opvarmning

  • Centralvarme

Hårde hvidevarer

  • Elkedel
  • Emhætte
  • Fryser
    100
  • Kaffemaskine
  • Kogeplader
  • Køleskab med frys
    50
  • Mikroovn
  • Opvaskemaskine
  • Ovn
  • Vaskemaskine

Multimedier

  • Dansk tv
  • Gratis Wi-Fi - Over 20 Mbit
  • Parabol
  • TV
  • Tysk TV

Ekstra

  • Barnestol
  • Gode fiskeforhold
  • Lystfiskervenlig

Udenfor

  • Fiskerensebord
  • Grill
  • Havemøbler
  • Lukket terrasse
    20 m²
  • Parkering på grunden

Diverse

  • 2 x Flise-/klinkegulv
  • 2 x Gulvvarme
  • 4 x Træ-/parketgulv

Regler

  • Husdyr ikke tilladt
  • Opladning af elbil ikke tilladt
  • Rygning ikke tilladt

Pris inklusiv

  • Slutrengøring inkl.
  • Vand inkl.

Beskrivelse

Velkommen indenfor
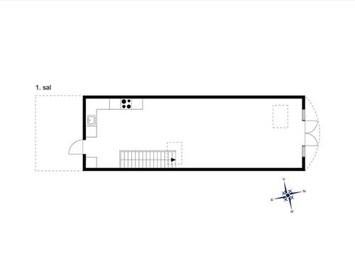
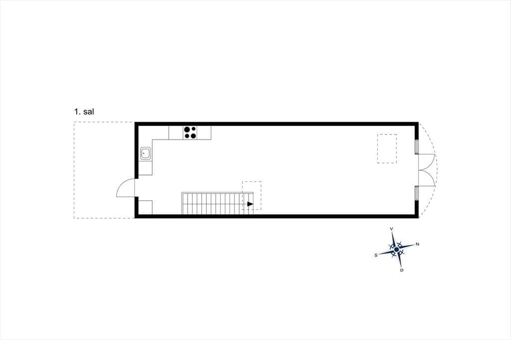
Træd indenfor i dette charmerende sommerhus, hvor hygge og komfort går hånd i hånd. Her er plads til afslapning, gode samtaler og stille stunder i smukke omgivelser. Den åbne planløsning på første sal skaber et lyst og indbydende rum med køkken, spiseområde og stue – perfekt til at tilbringe tid sammen, lave mad og nyde samværet. Fra stuen kan I træde ud på en lille balkon med udsigt mod vandet, mens køkkenet fører ud til den store sydvendte terrasse, hvor solen kan nydes hele dagen. Her får I rammerne til både afslapning, hyggelige måltider og samvær med familie og venner.

Nyd livet udenfor
På den store sydvendte terrasse kan I nyde solens varme fra morgen til aften. Komfortable havemøbler og en grill gør det nemt at tilberede dagens fangst eller nyde et måltid under åben himmel. Den lille, lukkede gårdhave ved indgangen giver privatliv og ro, og her finder I et praktisk fiskerensebord – perfekt efter en dag med fiskeri. Ved siden af ligger et skur med en 100 liters fryser, så I kan opbevare dagens fangst. Dette sommerhus er den ideelle base for jer, der elsker natur, fiskeri og hyggelige stunder udendørs.

Kom tæt på de lokale oplevelser
Sommerhuset ligger ved slusen i hjertet af den charmerende fiskerby Thorsminde, tæt på både Nissum Fjord og Vesterhavet. Start dagen med en frisk tur langs vandet, prøv lykken med fiskestangen, eller tag en dukkert på den nærliggende badestrand med markeret svømmeline. Thorsminde byder også på spændende kultur – besøg det fascinerende St. George Strandingsmuseum og oplev historierne om områdets dramatiske skibsforlis. Byen har desuden en lokal købmand med helårsåbent, så I altid kan få fat i det nødvendige. Dette sommerhus giver jer den perfekte kombination af naturskønne omgivelser, aktivitet og afslapning – med nem adgang til både hav og byliv.


Rumindretning

  • Soveværelse
    • Køjeseng - 70 x 150
    • Dobbeltseng
  • Soveværelse
    • Dobbeltseng

Afstande fra ferieboligen og placering på kort

  • Afstand fjord 50 m
  • Afstand golfbane 14 km
  • Afstand indkøb / Helårsbutik 300 m
  • Afstand restaurant 300 m
  • Afstand strand / Sand-/stenstrand 300 m
  • Afstand svømmehal 16 km
Der tages forbehold for evt. fejlplacering. Husadressen fremgår af lejebeviset.

Priser og kalender

Kalender

Ankomst
Forrige Næste
  • maj 2026
    mationtofr
    18123
    1945678910
    2011121314151617
    2118192021222324
    2225262728293031
    23
  • juni 2026
    mationtofr
    231234567
    24891011121314
    2515161718192021
    2622232425262728
    272930
    28
   Se om emnet er ledigt på den valgte dato
Ledig
Optaget
   Ankomst mulig
Varighed

Pris

Periode
Ankomst
Afrejse
Varighed
1 uge
Personer
Op til 6 personer
heraf 2 børn (0-11 år)

Bemærk

Ankomst er ikke valgt.
Aftale- og lejebetingelser