Hyggeligt sommerhus tæt på strand og torv
Rørsangervej - 4873 - Væggerløse
4 personer
Hyggeligt sommerhus i Marielyst med 3 terrasser og kun 200 meter til stranden.
Fakta om boligen
- 4 personer
- Ingen husdyr
- Rygning ikke tilladt
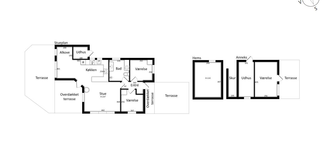
- 2 soveværelser
- 1 badeværelse
- Vand 0
- Indkøb 0
Faciliteter
Indendørs
-
Aircondition
-
Antal (ekstra) børnestole1
-
Antal badeværelser1
-
Antal dobbeltsenge1
-
Antal enkeltsenge2
-
Antal sovepladser i dobbeltsenge2
-
Antal sovepladser i enkeltsenge5
-
Antal soveværelser2
-
Antal stuer1
-
Babystol (er)/højstol (r) på forespørgsel
-
Boligareal (m²)67
-
Bruser
-
Byggeår2007
-
DVD
-
Fladskærms TV
-
Liggestole
-
Radiator
-
Radio
-
Rengøringsprodukter
-
Røgalarm
-
Samlet antal senge4
-
Samlet antal værelser3
-
Skab
-
Stereo
-
Støvsuger
-
TV
-
Vaskemaskine
-
WiFiGratis
Køkken
-
Elkedel
-
Fryser
-
Grundlæggende madlavning (gryder og pander)
-
KaffemaskineNormal
-
Krydderier
-
Køkken
-
Køkken komfurElektrisk
-
Køkkenredskaber
-
Køleskab
-
Mikrobølgeovn
-
Opvaskemaskine
-
Ovn
-
Toaster
-
Vinglas
Udendørs
-
Grill
-
Have
-
ParkeringGratis
-
Terrasse
-
Udendørs møbler
Egnethed
-
Huset er for ikke-rygere
-
Huset er velegnet til børn
Strand
-
Strand
Diverse
-
Privat indgang
Beskrivelse
Information omkring ankomst bliver sendt som besked 4 dage før ankomst
Hyggeligt sommerhus tæt på Marielyst strand
Dette charmerende sommerhus i Marielyst er det ideelle udgangspunkt for en afslappende ferie i den danske øhav. Huset har to soveværelser og et anneks med en dobbeltseng. Derudover er der en dobbeltsengsalkove. Lad os venligst vide, hvis I er mere end 6 personer. Faciliteterne inkluderer et veludstyret køkken, moderne badeværelse og en hyggelig stue med brændeovn – perfekt til kølige aftener. Huset har også tre dejlige terrasser, hvor gæsterne kan nyde solen og naturen. Beliggenheden er ideel, kun 200 meter fra den smukke strand og kun 900 meter fra det hyggelige torv i Marielyst med butikker og mange lækre restauranter. Den korte afstand både til stranden og bylivet giver mulighed for at kombinere afslapning ved vandet med shopping og kulinariske oplevelser. Det er det perfekte sted at slappe af og genoplade. For dem, der søger kulturelle oplevelser, er der historiske seværdigheder og kunstgallerier i nærheden. Tag familien med og nyd en uforglemmelig ferie i dette hyggelige sommerhus i Marielyst. Book nu for at sikre dig en uforglemmelig oplevelse ved kysten.
Et hyggeligt sommerhus fra 2007, velindrettet med høje lofter og et veludstyret køkken, samt 3 dejlige terrasser. Kun 200 meter til stranden og 900 meter til det charmerende Marielyst Torv med butikker og mange dejlige restauranter.
Hyggeligt sommerhus tæt på Marielyst strand
Dette charmerende sommerhus i Marielyst er det ideelle udgangspunkt for en afslappende ferie i den danske øhav. Huset har to soveværelser og et anneks med en dobbeltseng. Derudover er der en dobbeltsengsalkove. Lad os venligst vide, hvis I er mere end 6 personer. Faciliteterne inkluderer et veludstyret køkken, moderne badeværelse og en hyggelig stue med brændeovn – perfekt til kølige aftener. Huset har også tre dejlige terrasser, hvor gæsterne kan nyde solen og naturen. Beliggenheden er ideel, kun 200 meter fra den smukke strand og kun 900 meter fra det hyggelige torv i Marielyst med butikker og mange lækre restauranter. Den korte afstand både til stranden og bylivet giver mulighed for at kombinere afslapning ved vandet med shopping og kulinariske oplevelser. Det er det perfekte sted at slappe af og genoplade. For dem, der søger kulturelle oplevelser, er der historiske seværdigheder og kunstgallerier i nærheden. Tag familien med og nyd en uforglemmelig ferie i dette hyggelige sommerhus i Marielyst. Book nu for at sikre dig en uforglemmelig oplevelse ved kysten.
Et hyggeligt sommerhus fra 2007, velindrettet med høje lofter og et veludstyret køkken, samt 3 dejlige terrasser. Kun 200 meter til stranden og 900 meter til det charmerende Marielyst Torv med butikker og mange dejlige restauranter.
Afstande fra ferieboligen og placering på kort
Nærtliggende sommerhuse
Er I flere familier, der gerne vil bo tæt på hinanden kan I søge efter nærtliggende sommerhuseSe nabohuse
Vores gæstevurderinger Eksterne vurderinger
Priser og kalender
Kalender
Varighed
Personer
Pris
Periode
- Ankomst
- Afrejse
- Varighed
- 1 uge
Personer
Ingen personer er valgt
Bemærk
Ankomst er ikke valgt.
Der er ikke valgt personer.