Hyggeligt feriehus med havudsigt i Hasle
Borregærdet - Vang - 3790 - Hasle
6 personer
Velholdt feriehus i Hasle med havudsigt, overdækket terrasse og solterrasse til afslapning.
Fakta om boligen
- 6 personer
- Ingen husdyr
- Rygning ikke tilladt
- 3 soveværelser
- 1 badeværelse
- Vand 300
- Indkøb 6000
Faciliteter
Adgang til ferieboligen
-
Nøgleboks med kode
Bemærk
-
Ingen ungdomsgrupper efter anmodning
-
Rygning er forbudt
Indretning
-
Antal voksne inkl. 4-11 år6
-
Bebygget areal64 m²
-
Brændeovn1
-
Byggeår1971
-
Feriebolig
-
Frysekapacitet (antal liter)54
-
Renoveringsår2006
-
Varmepumpe
-
Varmepumpe luft til luft
-
Vaskemaskine1
Køkken
-
Antal elektriske kogeplader4
-
Køleskab1
-
Mikrobølgeovn1
-
Opvaskemaskine1
-
Varmluftovn1
Multimedier
-
> 3 danske kanaler
-
> 3 tyske kanaler
-
0-3 norske kanaler
-
0-3 svenske kanaler
-
Antal tv'er1
-
CD afspiller
-
Download5
-
DVD1
-
Radio
-
Trådløst internet
-
Upload5,5
Soveforhold
-
Antal soveværelser3
-
Dobbeltseng (antal sovepladser)4
-
Køjeseng (antal sovepladser)2
Toilet og bad
-
Antal badeværelser1
-
Antal toiletter1
-
Brusekabine
-
Gulvvarme1
Udenfor
-
Butik6 km
-
Elbil hjemmeoplader
-
Golfbane10 km
-
Hav300 m
-
Ladestik type 2
-
Natursted
-
Overdækket terrasse13 m²
-
Parkeringsplads ved huset
-
Størrelse af grunden1700 m²
-
Terrasse30 m²
Udsigt
-
Havudsigt fra feriehuset
-
Havudsigt fra pladsen
Beskrivelse
Et særdeles velholdt feriehus beliggende på en skrånende grund med flot udsigt over Østersøen. Fra såvel den overdækkede terrasse samt fra den hævede solterrasse kan udsigten til solnedgangen nydes i fulde drag. Fra stuens store vinduesparti kan I endvidere nyde udsigten mod havet og den lille by Vang, som er kendt for sin hyggelige og rolige havn og sin gamle vandmølle fra begyndelsen af det forrige århundrede, som nu er smukt restaureret.
De hvidemalede lofter og vægge giver et virkelig fint lys i stuen.
Indretning
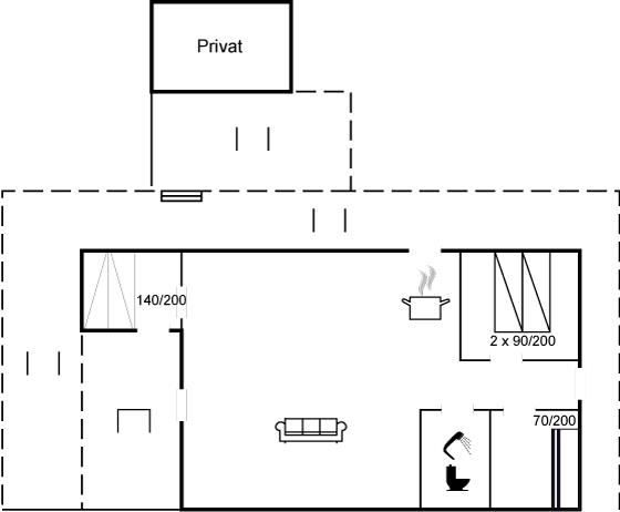
Sommerhuset egner sig til 6 personer. Ferieboligen er på 64 m² og er bygget i 1971. I 2006 gennemgik ferieboligen en delvis renovering. Det er ikke tilladt at medbringe husdyr. Ferieboligen er udstyret med 1 energibesparende luft til luft varmepumpe, der også kan benyttes som aircondition. Ferieboligen har vaskemaskine. Frysekapacitet på 54 liter. Der er desuden brændeovn.
Udenfor
Ferieboligen er beliggende på en 1700 m² stor naturgrund. Der er 300 m til havet. Nærmeste forretning er beliggende i en afstand af 6000 m. Der er en golfbane i en afstand af 10000 m. Til ferieboligen hører 30 m² terrasseareal. Desuden er der 13 m² overdækket terrasse. Der er installeret stik til opladning af elbil. Type 2 stik. Parkering ved ferieboligen.
Soveforhold
Der er i alt 3 soveværelser. Sovepladserne fordeler sig på: 4 sovepladser i dobbeltsenge. 2 sovepladser i køjeseng.
Køkken
Køkkenet er udstyret med 1 køleskab. Der er 4 elkogeplader, varmluftovn, mikrobølgeovn samt opvaskemaskine.
Toilet og bad
Der er 1 badeværelse med bruseniche og 1 toilet.. Der er gulvvarme på 1 badeværelse.
Multimedier
I ferieboligen er der 1 TV. DVD-afspiller. Radio. CD-afspiller. Der er mindst 4 danske kanaler. 1-3 svenske kanaler. 1-3 norske kanaler. Mindst 4 tyske kanaler. Der er trådløst internet til rådighed.
Værd at vide
Ingen udlejning til ungdomsgrupper, hvor alle er 15 - 25 år. Rygning ikke tilladt. Ved overtrædelse af dette forbud opkræves et gebyr på min DKK 3.000,-. Max. 40/t på Borregærdet
Indretning
Sommerhuset egner sig til 6 personer. Ferieboligen er på 64 m² og er bygget i 1971. I 2006 gennemgik ferieboligen en delvis renovering. Det er ikke tilladt at medbringe husdyr. Ferieboligen er udstyret med 1 energibesparende luft til luft varmepumpe, der også kan benyttes som aircondition. Ferieboligen har vaskemaskine. Frysekapacitet på 54 liter. Der er desuden brændeovn.
Udenfor
Ferieboligen er beliggende på en 1700 m² stor naturgrund. Der er 300 m til havet. Nærmeste forretning er beliggende i en afstand af 6000 m. Der er en golfbane i en afstand af 10000 m. Til ferieboligen hører 30 m² terrasseareal. Desuden er der 13 m² overdækket terrasse. Der er installeret stik til opladning af elbil. Type 2 stik. Parkering ved ferieboligen.
Soveforhold
Der er i alt 3 soveværelser. Sovepladserne fordeler sig på: 4 sovepladser i dobbeltsenge. 2 sovepladser i køjeseng.
Køkken
Køkkenet er udstyret med 1 køleskab. Der er 4 elkogeplader, varmluftovn, mikrobølgeovn samt opvaskemaskine.
Toilet og bad
Der er 1 badeværelse med bruseniche og 1 toilet.. Der er gulvvarme på 1 badeværelse.
Multimedier
I ferieboligen er der 1 TV. DVD-afspiller. Radio. CD-afspiller. Der er mindst 4 danske kanaler. 1-3 svenske kanaler. 1-3 norske kanaler. Mindst 4 tyske kanaler. Der er trådløst internet til rådighed.
Værd at vide
Ingen udlejning til ungdomsgrupper, hvor alle er 15 - 25 år. Rygning ikke tilladt. Ved overtrædelse af dette forbud opkræves et gebyr på min DKK 3.000,-. Max. 40/t på Borregærdet
Afstande fra ferieboligen og placering på kort
- Butik 6 km
- Golfbane 10 km
- Hav 300 m
Nærtliggende sommerhuse
Er I flere familier, der gerne vil bo tæt på hinanden kan I søge efter nærtliggende sommerhuseSe nabohuse
Vores gæstevurderinger Eksterne vurderinger
Priser og kalender
Kalender
Varighed
Pris
Periode
- Ankomst
- Afrejse
- Varighed
- 1 uge
Personer
Op til 6 personer
Bemærk
Ankomst er ikke valgt.