Moderne feriehus med havudsigt og stor terrasse
Paradisvej - Vang - 3790 - Hasle
8 personer
Velkommen til et moderne feriehus med fantastisk havudsigt og stor terrasse nær Vang.
Fakta om boligen
- 8 personer
- 1 husdyr
- Rygning ikke tilladt
- 4 soveværelser
- 2 badeværelser
- Vand 200
- Indkøb 5000
Faciliteter
Adgang til ferieboligen
-
Nøgleboks med kode
Bemærk
-
Ingen ungdomsgrupper efter anmodning
-
Rygning er forbudt
Indretning
-
2 niveauer
-
Antal voksne inkl. 4-11 år8
-
Bebygget areal190 m²
-
Byggeår2022
-
Feriebolig
-
Frysekapacitet (antal liter)90
-
Gulvvarme
-
Husdyr1
-
Højstol1
-
Tørretumbler1
-
Varmepumpe
-
Varmepumpe luft til vand
-
Vaskemaskine1
Køkken
-
Antal induktionskogeplader4
-
Køleskab1
-
Opvaskemaskine1
-
Varmluftovn1
Multimedier
-
> 3 danske kanaler
-
> 3 tyske kanaler
-
Antal tv'er1
-
Bluetooth -højttaler1
-
Download50
-
Radio
-
Smart-Tv1
-
Trådløst internet
-
Upload50
Soveforhold
-
Antal soveværelser4
-
Dobbeltseng (antal sovepladser)6
-
Køjeseng (antal sovepladser)4
Toilet og bad
-
Antal badeværelser2
-
Antal toiletter2
-
Badekar
-
Brusekabine
-
Gulvvarme2
Udenfor
-
Butik5 km
-
Elbil hjemmeoplader
-
Golfbane10 km
-
Grill1
-
Hav200 m
-
Natursted
-
Overdækket terrasse12 m²
-
Parkeringsplads ved huset
-
Størrelse af grunden1100 m²
-
Terrasse
-
Terrasse160 m²
Udsigt
-
Havudsigt fra feriehuset
-
Havudsigt fra pladsen
Beskrivelse
Dette er et fantastisk velbeliggende feriehus med storslået havudsigt. Både fra stue og fra husets kviste har man et enestående kig ud over havet. Grunden er kuperet. Huset ligger ovenfor det lille fiskerleje Vang, der også er berømt for de mange stenhuggere, der var i området en tid. Ringebakkerne byder på storslået natur, et rigt dyreliv og en fantastisk udsigt både over fjeldene, de stejle klippesider og havet.
Indretning
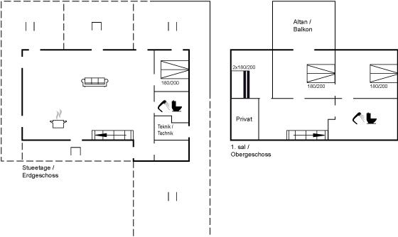
Sommerhuset egner sig til 8 personer. Ferieboligen er på 190 m², er i 2 plan, og er bygget i 2022. Det er tilladt at medbringe 1 husdyr. Ferieboligen er udstyret med 1 energivenlig luft til vand varmepumpe. Hele ferieboligen har gulvvarme. Ferieboligen har vaskemaskine. Tørretumbler. Frysekapacitet på 90 liter. Til de små er der 1 stk. barnestol.
Udenfor
Ferieboligen er beliggende på en 1100 m² stor naturgrund. Der er 200 m til havet. Nærmeste forretning er beliggende i en afstand af 5000 m. Der er en golfbane i en afstand af 10000 m. Til ferieboligen hører 160 m² terrasseareal. Desuden er der 12 m² overdækket terrasse. Udgang til altan. Grill til rådighed. Der er installeret stik til opladning af elbil. Parkering ved ferieboligen.
Soveforhold
Der er i alt 4 soveværelser. Sovepladserne fordeler sig på: 6 sovepladser i dobbeltsenge. 4 sovepladser i køjesenge.
Køkken
Køkkenet er udstyret med 1 køleskab. Der er 4 induktionskogeplader, varmluftovn samt opvaskemaskine.
Toilet og bad
Der er 2 badeværelser med bruseniche og 2 toiletter. Der er gulvvarme på 2 badeværelser.. Badekar.
Multimedier
I ferieboligen er der 1 Smart-TV. Radio.1 Bluetooth-højtaler. Der er mindst 4 danske kanaler. Mindst 4 tyske kanaler. Der er trådløst internet til rådighed.
Værd at vide
Ingen udlejning til ungdomsgrupper, hvor alle er 15-25 år. Rygning ikke tilladt. Ved overtrædelse af forbuddet opkræves et gebyr på minimum DKK 3.000,-.
Indretning
Sommerhuset egner sig til 8 personer. Ferieboligen er på 190 m², er i 2 plan, og er bygget i 2022. Det er tilladt at medbringe 1 husdyr. Ferieboligen er udstyret med 1 energivenlig luft til vand varmepumpe. Hele ferieboligen har gulvvarme. Ferieboligen har vaskemaskine. Tørretumbler. Frysekapacitet på 90 liter. Til de små er der 1 stk. barnestol.
Udenfor
Ferieboligen er beliggende på en 1100 m² stor naturgrund. Der er 200 m til havet. Nærmeste forretning er beliggende i en afstand af 5000 m. Der er en golfbane i en afstand af 10000 m. Til ferieboligen hører 160 m² terrasseareal. Desuden er der 12 m² overdækket terrasse. Udgang til altan. Grill til rådighed. Der er installeret stik til opladning af elbil. Parkering ved ferieboligen.
Soveforhold
Der er i alt 4 soveværelser. Sovepladserne fordeler sig på: 6 sovepladser i dobbeltsenge. 4 sovepladser i køjesenge.
Køkken
Køkkenet er udstyret med 1 køleskab. Der er 4 induktionskogeplader, varmluftovn samt opvaskemaskine.
Toilet og bad
Der er 2 badeværelser med bruseniche og 2 toiletter. Der er gulvvarme på 2 badeværelser.. Badekar.
Multimedier
I ferieboligen er der 1 Smart-TV. Radio.1 Bluetooth-højtaler. Der er mindst 4 danske kanaler. Mindst 4 tyske kanaler. Der er trådløst internet til rådighed.
Værd at vide
Ingen udlejning til ungdomsgrupper, hvor alle er 15-25 år. Rygning ikke tilladt. Ved overtrædelse af forbuddet opkræves et gebyr på minimum DKK 3.000,-.
Afstande fra ferieboligen og placering på kort
- Butik 5 km
- Golfbane 10 km
- Hav 200 m
Nærtliggende sommerhuse
Er I flere familier, der gerne vil bo tæt på hinanden kan I søge efter nærtliggende sommerhuseSe nabohuse
Vores gæstevurderinger Eksterne vurderinger
Priser og kalender
Kalender
Varighed
Pris
Periode
- Ankomst
- Afrejse
- Varighed
- 1 uge
Personer
Op til 8 personer
Bemærk
Ankomst er ikke valgt.