Hyggeligt sommerhus nær Vejers Strand
Ørnevej - 6853 - Vejers Strand
4 personer
Hyggeligt, velholdt sommerhus i Vejers Strand med brændeovn og stor naturgrund tæt på havet.
Fakta om boligen
- 4 personer
- 1 husdyr
- Rygning ikke tilladt
- 2 soveværelser
- 1 badeværelse
- Vand 1200
- Indkøb 400
Faciliteter
Adgang til ferieboligen
-
Nøgleboks med kode
Bemærk
-
Ingen ungdomsgrupper efter anmodning
-
Rygning er forbudt
Indretning
-
Antal voksne inkl. 4-11 år4
-
Bebygget areal78 m²
-
Brændeovn1
-
Byggeår1980
-
Feriebolig
-
Frysekapacitet (antal liter)15
-
Husdyr1
-
Renoveringsår2009
Køkken
-
Antal elektriske kogeplader4
-
Køleskab1
-
Mikrobølgeovn1
-
Varmluftovn1
Multimedier
-
Antal tv'er1
-
Chromecast1
-
Download200
-
Ingen tv-kanaler - kun streaming
-
Radio
-
Trådløst internet
-
Upload200
Soveforhold
-
Antal soveværelser2
-
Enkeltseng (antal sovepladser)2
-
Køjeseng (antal sovepladser)2
Toilet og bad
-
Antal badeværelser1
-
Antal toiletter1
-
Bruser
Udenfor
-
Butik400 m
-
Carport
-
Grill1
-
Hav1,2 km
-
Natursted
-
Overdækket terrasse
-
Parkeringsplads ved huset
-
Størrelse af grunden1500 m²
Beskrivelse
Her har vi det, nogen vil kalde et rigtigt sommerhus. Ikke et nymoderne et af slagsen, men stadig supervelholdt. Hvis man skal have et super-hyggeligt sommerhus, så er dette hus perfekt til at danne rammerne omkring ferien i Danmark.
Indretning
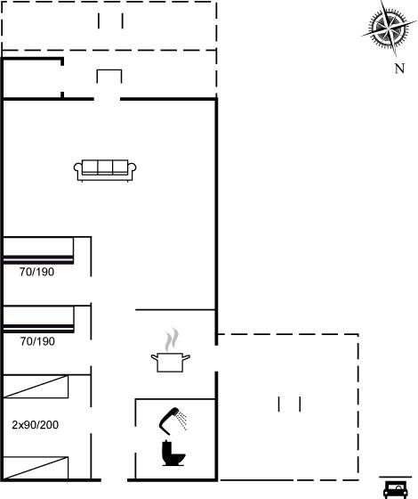
Sommerhuset egner sig til 4 personer. Ferieboligen er på 78 m² og er bygget i 1980. I 2009 gennemgik ferieboligen en delvis renovering. Det er tilladt at medbringe 1 husdyr. Frysekapacitet på 15 liter. Der er desuden brændeovn.
Udenfor
Ferieboligen er beliggende på en 1500 m² stor naturgrund. Der er 1200 m til havet. Nærmeste forretning er beliggende i en afstand af 400 m. Desuden er der overdækket terrasse. Grill til rådighed. Der er carport til rådighed. Parkering ved ferieboligen.
Soveforhold
Der er i alt 2 soveværelser. Sovepladserne fordeler sig på: 2 sovepladser i enkeltsenge. 2 sovepladser i køjeseng.
Køkken
Køkkenet er udstyret med 1 køleskab. Der er 4 elkogeplader, varmluftovn, mikrobølgeovn.
Toilet og bad
Der er 1 badeværelse med bruser og 1 toilet.
Multimedier
I ferieboligen er der 1 TV.1 Chromecast. Radio. Ingen TV-kanaler - kun streaming. Der er trådløst internet til rådighed.
Værd at vide
Ingen udlejning til ungdomsgrupper, hvor alle er 15-25 år. Rygning ikke tilladt. Ved overtrædelse af forbuddet opkræves et gebyr på minimum DKK 3.000,-.
Indretning
Sommerhuset egner sig til 4 personer. Ferieboligen er på 78 m² og er bygget i 1980. I 2009 gennemgik ferieboligen en delvis renovering. Det er tilladt at medbringe 1 husdyr. Frysekapacitet på 15 liter. Der er desuden brændeovn.
Udenfor
Ferieboligen er beliggende på en 1500 m² stor naturgrund. Der er 1200 m til havet. Nærmeste forretning er beliggende i en afstand af 400 m. Desuden er der overdækket terrasse. Grill til rådighed. Der er carport til rådighed. Parkering ved ferieboligen.
Soveforhold
Der er i alt 2 soveværelser. Sovepladserne fordeler sig på: 2 sovepladser i enkeltsenge. 2 sovepladser i køjeseng.
Køkken
Køkkenet er udstyret med 1 køleskab. Der er 4 elkogeplader, varmluftovn, mikrobølgeovn.
Toilet og bad
Der er 1 badeværelse med bruser og 1 toilet.
Multimedier
I ferieboligen er der 1 TV.1 Chromecast. Radio. Ingen TV-kanaler - kun streaming. Der er trådløst internet til rådighed.
Værd at vide
Ingen udlejning til ungdomsgrupper, hvor alle er 15-25 år. Rygning ikke tilladt. Ved overtrædelse af forbuddet opkræves et gebyr på minimum DKK 3.000,-.
Afstande fra ferieboligen og placering på kort
- Butik 400 m
- Hav 1,2 km
Nærtliggende sommerhuse
Er I flere familier, der gerne vil bo tæt på hinanden kan I søge efter nærtliggende sommerhuseSe nabohuse
Priser og kalender
Kalender
Varighed
Pris
Periode
- Ankomst
- Afrejse
- Varighed
- 1 uge
Personer
Op til 4 personer
Bemærk
Ankomst er ikke valgt.