Flot sommerhus med spa og aktivitetsrum
Gulspurvevej - 6853 - Vejers Strand
9 personer
Flot sommerhus i Vejers Strand med stor naturgrund, spa og aktivitetsrum til hele familien.
Fakta om boligen
- 9 personer
- 2 husdyr
- Rygning ikke tilladt
- 4 soveværelser
- 2 badeværelser
- Vand 1200
- Indkøb 300
Faciliteter
Adgang til ferieboligen
-
Nøgleboks med kode
Aktivitetsrum
-
Bordfodbold
-
Dart
Bemærk
-
Ingen ungdomsgrupper efter anmodning
-
Rygning er forbudt
Indretning
-
2 niveauer
-
Antal voksne inkl. 4-11 år9
-
Bebygget areal160 m²
-
Brændeovn1
-
Byggeår1977
-
Feriebolig
-
Husdyr2
-
Renoveringsår2000
-
Tørretumbler1
-
Varmepumpe
-
Vaskemaskine1
Køkken
-
Antal elektriske kogeplader4
-
Bageovn1
-
Køleskab1
-
Mikrobølgeovn1
-
Opvaskemaskine1
Multimedier
-
0-3 danske kanaler
-
0-3 tyske kanaler
-
Antal tv'er2
-
CD afspiller
-
Radio
-
Trådløst internet
Soveforhold
-
Antal soveværelser4
-
Dobbeltseng (antal sovepladser)6
-
Justerbar seng (antal sovepladser)1
-
Soveplads ikke i soveværelset
-
Sovesofa, dobbelt (antal sovepladser)2
Spa
-
Indendørs spabad (antal personer)2
Toilet og bad
-
Antal badeværelser2
-
Antal toiletter2
-
Brusekabine
-
Gulvvarme1
Udenfor
-
Butik300 m
-
Elbil hjemmeoplader
-
Grill1
-
Hav1,2 km
-
Natursted
-
Overdækket terrasse23 m²
-
Parkeringsplads ved huset
-
Størrelse af grunden2500 m²
-
Terrasse
-
Terrasse49 m²
Beskrivelse
Flot sommerhus for hele familien beliggende på en meget stor og børnevenlig grund med græsplæne, der er omkranset af nåletræer. På grunden er der adgang til den hyggelige grillhytte "Mummibo" med elektrisk grill og opvarmningsmulighed.
På husets terrasse findes en udendørs spa med standvand, som kan benyttes i perioden fra den 01. april til den 01. november.
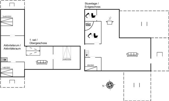
Reposen/aktivitetsrummet på 1. sal i huset er indrettet med dobbelt sovesofa, hvor 2 af sovepladserne befinder sig.
Indretning
Sommerhuset egner sig til 9 personer. Ferieboligen er på 160 m², er i 2 plan, og er bygget i 1977. I 2000 gennemgik ferieboligen en delvis renovering. Det er tilladt at medbringe 2 husdyr. Ferieboligen er udstyret med energibesparende varmepumpe. Ferieboligen har vaskemaskine. Tørretumbler. Der er desuden brændeovn.
Udenfor
Ferieboligen er beliggende på en 2500 m² stor naturgrund. Der er 1200 m til havet. Nærmeste forretning er beliggende i en afstand af 300 m. Til ferieboligen hører 49 m² terrasseareal. Desuden er der 23 m² overdækket terrasse. Udgang til altan. Grill til rådighed. Der er installeret stik til opladning af elbil. Parkering ved ferieboligen.
Aktivitetsrum
Dart. Bordfodbold.
Soveforhold
Der er i alt 4 soveværelser. Sovepladserne fordeler sig på: 6 sovepladser i dobbeltsenge. 1 soveplads i elevationsseng. 2 sovepladser i sovesofa (dobbelt). 2 af disse sovepladser befinder sig i gangen.
Køkken
Køkkenet er udstyret med 1 køleskab. Der er 4 elkogeplader, bageovn, mikrobølgeovn samt opvaskemaskine.
Toilet og bad
Der er 2 badeværelser med bruseniche og 2 toiletter. Der er gulvvarme på 1 badeværelse.
Spa
Der er mulighed for afslapning i indendørs spa til 2 personer.
Multimedier
I ferieboligen er der 2 TV. Radio. CD-afspiller. Der er 1-3 danske kanaler. 1-3 tyske kanaler. Der er trådløst internet til rådighed.
Værd at vide
Ingen udlejning til ungdomsgrupper, hvor alle er 15-25 år. Rygning ikke tilladt. Ved overtrædelse af forbuddet opkræves et gebyr på minimum DKK 3.000,-. Det er ikke tilladt at medbringe katte.
Indretning
Sommerhuset egner sig til 9 personer. Ferieboligen er på 160 m², er i 2 plan, og er bygget i 1977. I 2000 gennemgik ferieboligen en delvis renovering. Det er tilladt at medbringe 2 husdyr. Ferieboligen er udstyret med energibesparende varmepumpe. Ferieboligen har vaskemaskine. Tørretumbler. Der er desuden brændeovn.
Udenfor
Ferieboligen er beliggende på en 2500 m² stor naturgrund. Der er 1200 m til havet. Nærmeste forretning er beliggende i en afstand af 300 m. Til ferieboligen hører 49 m² terrasseareal. Desuden er der 23 m² overdækket terrasse. Udgang til altan. Grill til rådighed. Der er installeret stik til opladning af elbil. Parkering ved ferieboligen.
Aktivitetsrum
Dart. Bordfodbold.
Soveforhold
Der er i alt 4 soveværelser. Sovepladserne fordeler sig på: 6 sovepladser i dobbeltsenge. 1 soveplads i elevationsseng. 2 sovepladser i sovesofa (dobbelt). 2 af disse sovepladser befinder sig i gangen.
Køkken
Køkkenet er udstyret med 1 køleskab. Der er 4 elkogeplader, bageovn, mikrobølgeovn samt opvaskemaskine.
Toilet og bad
Der er 2 badeværelser med bruseniche og 2 toiletter. Der er gulvvarme på 1 badeværelse.
Spa
Der er mulighed for afslapning i indendørs spa til 2 personer.
Multimedier
I ferieboligen er der 2 TV. Radio. CD-afspiller. Der er 1-3 danske kanaler. 1-3 tyske kanaler. Der er trådløst internet til rådighed.
Værd at vide
Ingen udlejning til ungdomsgrupper, hvor alle er 15-25 år. Rygning ikke tilladt. Ved overtrædelse af forbuddet opkræves et gebyr på minimum DKK 3.000,-. Det er ikke tilladt at medbringe katte.
Afstande fra ferieboligen og placering på kort
- Butik 300 m
- Hav 1,2 km
Nærtliggende sommerhuse
Er I flere familier, der gerne vil bo tæt på hinanden kan I søge efter nærtliggende sommerhuseSe nabohuse
Vores gæstevurderinger Eksterne vurderinger
Priser og kalender
Kalender
Varighed
Pris
Periode
- Ankomst
- Afrejse
- Varighed
- 1 uge
Personer
Op til 9 personer
Bemærk
Ankomst er ikke valgt.