Fakta om boligen
- 5 personer
- 7 husdyr
- 1 soveværelse
- 1 badeværelse
Faciliteter
Andre
-
Radiator
-
Strygebræt
-
Terrasse
Byggestatus
-
Ferielejlighed
Fritids aktiviteter
-
Skiing
Generel Information
-
Boligareal26 m²
-
Mikroovn
-
Opvaskemaskine
-
TV
Køkkenudstyr
-
Fade og bestik
-
Mikroovn
-
Opvaskemaskine
-
Toaster
Parkfaciliteter
-
Parkering
Rundt om huset
-
Elevator
Type
-
Ferielejlighed
Værelsesudstyr
-
TV
Beskrivelse
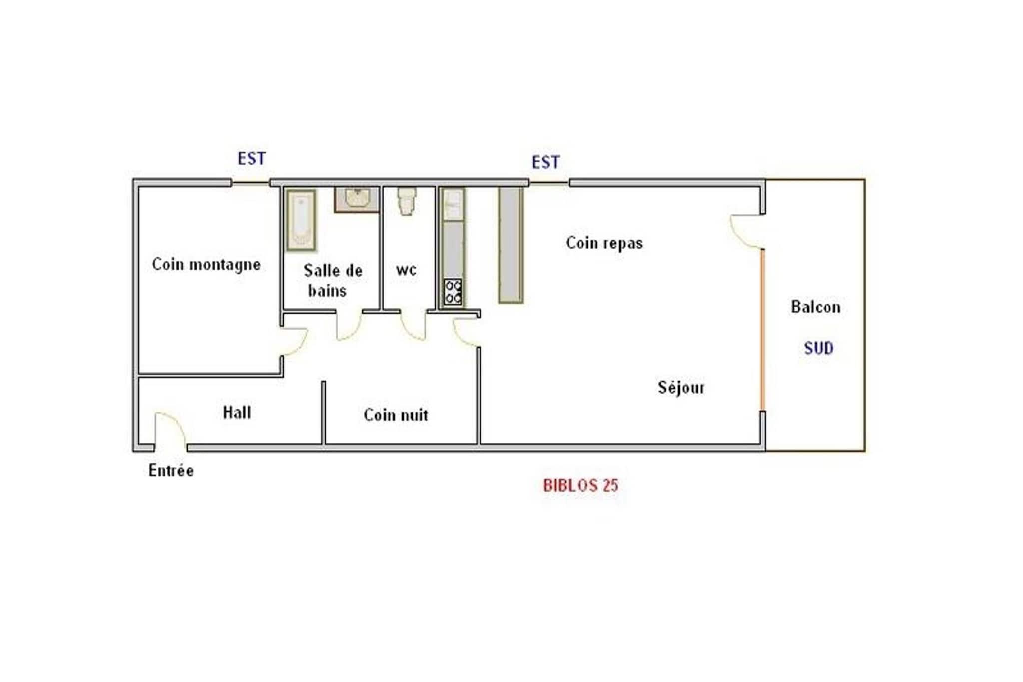
Biblos Residence
Bolig:
Ejendom sammen med en charmerende bjergappel tilbyder komfortabel indkvartering for op til 4-5 gæster, med et hyggeligt og funktionelt layout. Lejligheden i studie-stil indeholder en hævet enkeltseng i et sovehjørne, et bjerghjørne med en dobbeltseng og to enkeltbænke i stuen. Den sydvendte opholdsstue giver adgang til en privat balkon med udsigt over bjergene, hvilket skaber et perfekt sted at slappe af. Kæledyr er tilladt, og boligen er ikke-ryger. Et skiskab og elevator er til rådighed, mens garageparkering tilføjer ekstra bekvemmelighed. Bemærk venligst, at lejligheden ikke er tilgængelig for personer med nedsat mobilitet. Beliggende i den øvre del af landsbyen giver denne ejendom nem adgang til skilifte, herunder Telemix og stoleliften i Bossonnet, som ligger kun 250 meter væk. Derudover er butikker og et busstoppested i nærheden, som tilbyder problemfri adgang til vintersport og de lokale faciliteter. For rejsende, der ankommer med tog, ligger Annecy SNCF-station 33 km derfra, mens busstationen i La Clusaz ligger 1,05 km fra ejendommen. Lejlighedens strategiske beliggenhed giver gæsterne mulighed for nemt at udforske det omkringliggende feriested. Det fuldt udstyrede tekøkken har køleskab, glaskeramisk kogeplade, mikroovn og opvaskemaskine, hvilket giver gæsterne alt, hvad de behøver for at tilberede måltider under deres ophold. Til lejligheden hører også elvarme med gulvvarme for at sikre varme og komfort. Der er moderne faciliteter såsom fladskærms-tv med dvd-afspiller og kvalitetssengetøj, herunder dynebetræk og pudebetræk. Gæster kan nyde nem adgang til bjergets charme, kombineret med praktiske faciliteter, for en afslappende og fornøjelig oplevelse.
Bolig:
Ejendom sammen med en charmerende bjergappel tilbyder komfortabel indkvartering for op til 4-5 gæster, med et hyggeligt og funktionelt layout. Lejligheden i studie-stil indeholder en hævet enkeltseng i et sovehjørne, et bjerghjørne med en dobbeltseng og to enkeltbænke i stuen. Den sydvendte opholdsstue giver adgang til en privat balkon med udsigt over bjergene, hvilket skaber et perfekt sted at slappe af. Kæledyr er tilladt, og boligen er ikke-ryger. Et skiskab og elevator er til rådighed, mens garageparkering tilføjer ekstra bekvemmelighed. Bemærk venligst, at lejligheden ikke er tilgængelig for personer med nedsat mobilitet. Beliggende i den øvre del af landsbyen giver denne ejendom nem adgang til skilifte, herunder Telemix og stoleliften i Bossonnet, som ligger kun 250 meter væk. Derudover er butikker og et busstoppested i nærheden, som tilbyder problemfri adgang til vintersport og de lokale faciliteter. For rejsende, der ankommer med tog, ligger Annecy SNCF-station 33 km derfra, mens busstationen i La Clusaz ligger 1,05 km fra ejendommen. Lejlighedens strategiske beliggenhed giver gæsterne mulighed for nemt at udforske det omkringliggende feriested. Det fuldt udstyrede tekøkken har køleskab, glaskeramisk kogeplade, mikroovn og opvaskemaskine, hvilket giver gæsterne alt, hvad de behøver for at tilberede måltider under deres ophold. Til lejligheden hører også elvarme med gulvvarme for at sikre varme og komfort. Der er moderne faciliteter såsom fladskærms-tv med dvd-afspiller og kvalitetssengetøj, herunder dynebetræk og pudebetræk. Gæster kan nyde nem adgang til bjergets charme, kombineret med praktiske faciliteter, for en afslappende og fornøjelig oplevelse.
Afstande fra ferieboligen og placering på kort
Nærtliggende sommerhuse
Er I flere familier, der gerne vil bo tæt på hinanden kan I søge efter nærtliggende sommerhuseSe nabohuse
Vores gæstevurderinger Eksterne vurderinger
Priser og kalender
Kalender
Ankomst
-
november 2026
ma ti on to fr lø sø 44 1 45 2 3 4 5 6 7 8 46 9 10 11 12 13 14 15 47 16 17 18 19 20 21 22 48 23 24 25 26 27 28 29 49 30 -
december 2026
ma ti on to fr lø sø 49 1 2 3 4 5 6 50 7 8 9 10 11 12 13 51 14 15 16 17 18 19 20 52 21 22 23 24 25 26 27 53 28 29 30 31 1
Se om emnet er ledigt på den valgte dato
Ledig
Optaget
Ankomst mulig
Varighed
Pris
Periode
- Ankomst
- Afrejse
- Varighed
- 1 uge
Personer
Op til 5 personer
Bemærk
Ankomst er ikke valgt.