Fakta om boligen
- 6 personer
- Ingen husdyr
- 2 soveværelser
- 2 badeværelser
Faciliteter
Andre
-
Radiator
-
Terrasse
Byggestatus
-
Ferielejlighed
Fritids aktiviteter
-
Skiing
Generel Information
-
Boligareal43 m²
-
Mikroovn
-
Opvaskemaskine
-
TV
Køkkenudstyr
-
Elkedel
-
Fade og bestik
-
Kaffemaskine
-
Mikroovn
-
Opvaskemaskine
-
Toaster
Rundt om huset
-
Elevator
Type
-
Ferielejlighed
Værelsesudstyr
-
TV
Beskrivelse
Lejlighed i Laitelet nær skiløjper
Bolig:
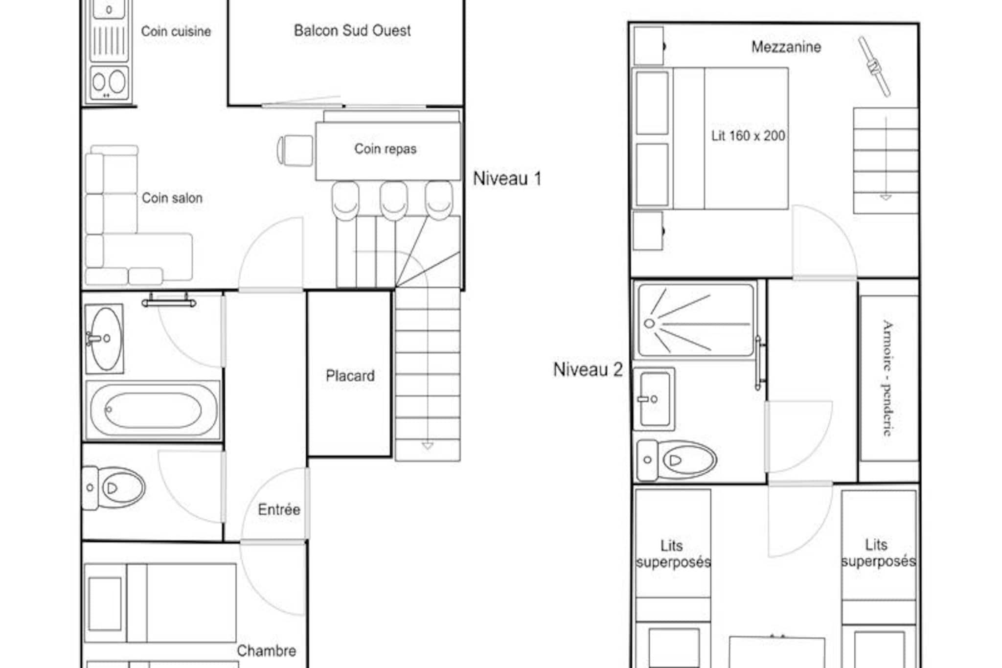
Højt over den maleriske dal Méribel tilbyder denne charmerende duplexlejlighed i Creux de l'Ours-residensen en uforglemmelig alpin flugt. Ejendommen ligger i det rolige Hameau-område i Laitelet, perfekt placeret ved foden af ??pisterne, hvilket sikrer ubesværet adgang til de uberørte skiløjper i Les Trois Vallées. Forestil dig at vågne op til den friske bjergluft, træde ud på din sydvestvendte balkon og nyde den betagende udsigt over snedækkede tinder og solbeskinnede stier. Dette hyggelige tilflugtssted er ideelt for familier eller små grupper, der søger både eventyr og afslapning i hjertet af de franske alper. \n\nLejligheden har komfortabel plads til op til seks gæster på tværs af sine gennemtænkt designede rum. I stueetagen finder du en indbydende stue med spiseplads, et åbent køkken udstyret med moderne apparater, herunder en kombineret mikrobølgeovn/grillovn, køleskab, opvaskemaskine og keramisk kogeplade. Det første soveværelse har to enkeltsenge, mens mezzaninen ovenpå tilbyder en dobbeltseng med ovenlysvindue og et fladskærms-tv til hyggelige aftener. Et ekstra soveværelse med køjesenge og et brusebad med toilet fuldender planløsningen og sikrer komfort og bekvemmelighed for alle. Der er gratis Wi-Fi, selvom båndbredden kan være begrænset, så du kan holde forbindelsen, mens du nyder bjergenes ro. \n\nTræd udenfor, og du er kun få øjeblikke fra den grønne piste, der fører til skiliftens hovedafgangssted. Chalets-svævebanen, der kører fra tidlig morgen til sen aften, giver gratis og nem adgang til Hameau- og Laitelet-området, hvilket gør det nemt at udforske regionens pister i verdensklasse og pulserende afterskiing-scene. Nærliggende butikker og faciliteter sikrer, at alt, hvad du behøver, er inden for rækkevidde, mens Méribels charme lokker med sine hyggelige restauranter, livlige barer og traditionelle alpine atmosfære. \n\nUanset om du er her for at grave dig gennem frisk puddersne, vandre på naturskønne stier eller blot slappe af midt i en fantastisk naturlig skønhed, tilbyder denne bolig den perfekte base for en uforglemmelig bjergferie. Lad Creux de l'Ours være dit hjem væk fra hjemmet i de fortryllende franske alper.
Bolig:
Højt over den maleriske dal Méribel tilbyder denne charmerende duplexlejlighed i Creux de l'Ours-residensen en uforglemmelig alpin flugt. Ejendommen ligger i det rolige Hameau-område i Laitelet, perfekt placeret ved foden af ??pisterne, hvilket sikrer ubesværet adgang til de uberørte skiløjper i Les Trois Vallées. Forestil dig at vågne op til den friske bjergluft, træde ud på din sydvestvendte balkon og nyde den betagende udsigt over snedækkede tinder og solbeskinnede stier. Dette hyggelige tilflugtssted er ideelt for familier eller små grupper, der søger både eventyr og afslapning i hjertet af de franske alper. \n\nLejligheden har komfortabel plads til op til seks gæster på tværs af sine gennemtænkt designede rum. I stueetagen finder du en indbydende stue med spiseplads, et åbent køkken udstyret med moderne apparater, herunder en kombineret mikrobølgeovn/grillovn, køleskab, opvaskemaskine og keramisk kogeplade. Det første soveværelse har to enkeltsenge, mens mezzaninen ovenpå tilbyder en dobbeltseng med ovenlysvindue og et fladskærms-tv til hyggelige aftener. Et ekstra soveværelse med køjesenge og et brusebad med toilet fuldender planløsningen og sikrer komfort og bekvemmelighed for alle. Der er gratis Wi-Fi, selvom båndbredden kan være begrænset, så du kan holde forbindelsen, mens du nyder bjergenes ro. \n\nTræd udenfor, og du er kun få øjeblikke fra den grønne piste, der fører til skiliftens hovedafgangssted. Chalets-svævebanen, der kører fra tidlig morgen til sen aften, giver gratis og nem adgang til Hameau- og Laitelet-området, hvilket gør det nemt at udforske regionens pister i verdensklasse og pulserende afterskiing-scene. Nærliggende butikker og faciliteter sikrer, at alt, hvad du behøver, er inden for rækkevidde, mens Méribels charme lokker med sine hyggelige restauranter, livlige barer og traditionelle alpine atmosfære. \n\nUanset om du er her for at grave dig gennem frisk puddersne, vandre på naturskønne stier eller blot slappe af midt i en fantastisk naturlig skønhed, tilbyder denne bolig den perfekte base for en uforglemmelig bjergferie. Lad Creux de l'Ours være dit hjem væk fra hjemmet i de fortryllende franske alper.
Afstande fra ferieboligen og placering på kort
Nærtliggende sommerhuse
Er I flere familier, der gerne vil bo tæt på hinanden kan I søge efter nærtliggende sommerhuseSe nabohuse
Priser og kalender
Kalender
Varighed
Pris
Periode
- Ankomst
- Afrejse
- Varighed
- 1 uge
Personer
Op til 6 personer
Bemærk
Ankomst er ikke valgt.