Fakta om boligen
- 4 personer
- Ingen husdyr
- 1 soveværelse
- 1 badeværelse
Faciliteter
Andre
-
Radiator
-
Terrasse
Byggestatus
-
Ferielejlighed
Fritids aktiviteter
-
Skiing
Generel Information
-
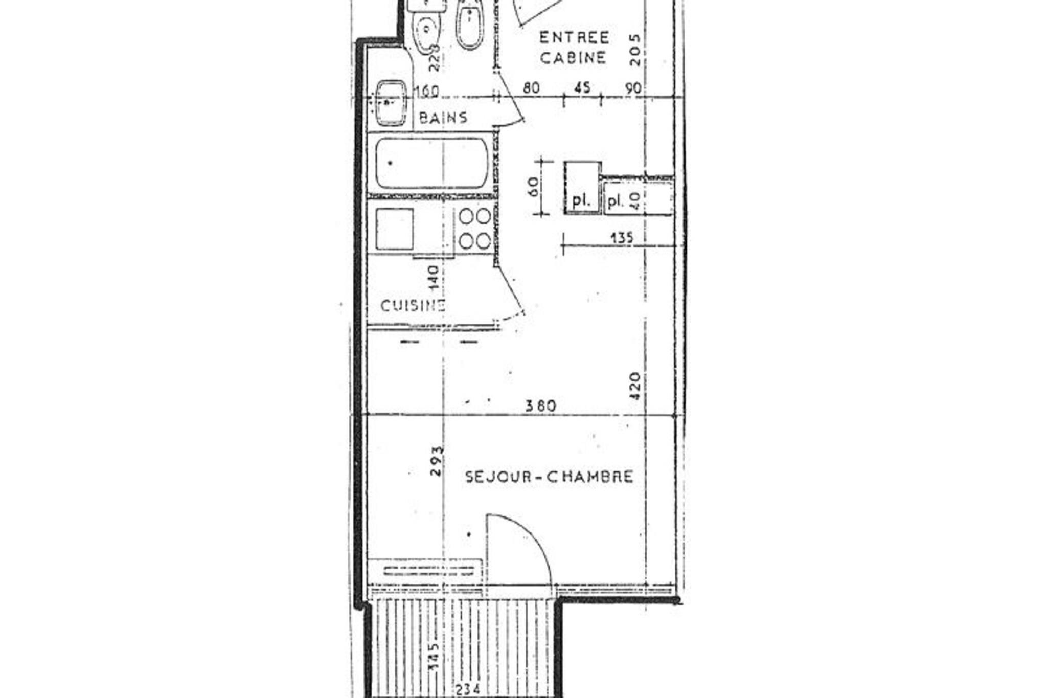
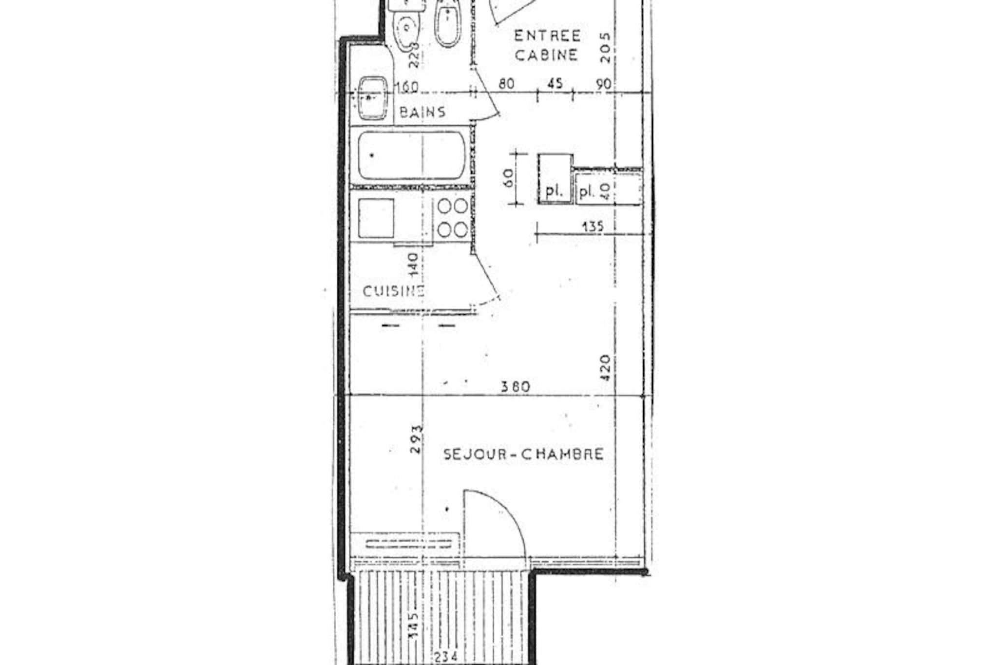
Boligareal25 m²
-
Opvaskemaskine
-
Ovn
-
TV
Køkkenudstyr
-
Elkedel
-
Fade og bestik
-
Kaffemaskine
-
Opvaskemaskine
-
Ovn
-
Toaster
Rundt om huset
-
Elevator
Type
-
Ferielejlighed
Værelsesudstyr
-
TV
Beskrivelse
VAL THORENS lejemål: studio til 4 personer med solrig balkon, ung og livlig bydel
Bolig:
Højt over det pulserende hjerte af Val Thorens tilbyder dette hyggelige studie en plads på første række med udsigt over de majestætiske tinder i de franske alper. Fra den vestvendte, lukkede balkon kan du nyde den betagende udsigt over bjergene, mens solen går ned over pisterne, kun 50 meter fra din dør. Uanset om du er her for spændende dage på pisterne eller livlige aftener i feriestedet, placerer denne indkvartering dig i centrum af det hele. Studiet er perfekt designet til op til fire gæster og har en praktisk planløsning med køjesenge i entréen og en udtræksseng i opholdsstuen. Det åbne køkken er udstyret med alt, hvad du behøver, inklusive ovn, køleskab, opvaskemaskine og komfur, hvilket gør det nemt at tilberede måltider efter en eventyrlig dag. Badeværelset har et toilet, hvilket sikrer bekvemmelighed under dit ophold. Bemærk venligst, at området er livligt med barer og natklubber i nærheden, hvilket gør det ideelt for dem, der søger en energisk afterski-atmosfære. Beliggende i LES GLACIERS-residensen kan du nyde bekvemmeligheden ved en elevator og kort afstand til Péclet-indkøbscentret, hvor du finder et udvalg af butikker og spisesteder. Val Thorens er kendt for sit skiløb i verdensklasse og sit pulserende natteliv og tilbyder noget for enhver eventyrer. Uanset om du snor dig gennem frisk puddersne eller nyder summen af ??feriestedet, er dette studie din indgang til en uforglemmelig alpin flugt. Bemærk venligst, at kæledyr ikke er tilladt, og yderligere tjenester såsom sengetøj, håndklæder og parkering skal reserveres på forhånd. Oplev magien ved Val Thorens fra dette perfekt beliggende fristed.
Bolig:
Højt over det pulserende hjerte af Val Thorens tilbyder dette hyggelige studie en plads på første række med udsigt over de majestætiske tinder i de franske alper. Fra den vestvendte, lukkede balkon kan du nyde den betagende udsigt over bjergene, mens solen går ned over pisterne, kun 50 meter fra din dør. Uanset om du er her for spændende dage på pisterne eller livlige aftener i feriestedet, placerer denne indkvartering dig i centrum af det hele. Studiet er perfekt designet til op til fire gæster og har en praktisk planløsning med køjesenge i entréen og en udtræksseng i opholdsstuen. Det åbne køkken er udstyret med alt, hvad du behøver, inklusive ovn, køleskab, opvaskemaskine og komfur, hvilket gør det nemt at tilberede måltider efter en eventyrlig dag. Badeværelset har et toilet, hvilket sikrer bekvemmelighed under dit ophold. Bemærk venligst, at området er livligt med barer og natklubber i nærheden, hvilket gør det ideelt for dem, der søger en energisk afterski-atmosfære. Beliggende i LES GLACIERS-residensen kan du nyde bekvemmeligheden ved en elevator og kort afstand til Péclet-indkøbscentret, hvor du finder et udvalg af butikker og spisesteder. Val Thorens er kendt for sit skiløb i verdensklasse og sit pulserende natteliv og tilbyder noget for enhver eventyrer. Uanset om du snor dig gennem frisk puddersne eller nyder summen af ??feriestedet, er dette studie din indgang til en uforglemmelig alpin flugt. Bemærk venligst, at kæledyr ikke er tilladt, og yderligere tjenester såsom sengetøj, håndklæder og parkering skal reserveres på forhånd. Oplev magien ved Val Thorens fra dette perfekt beliggende fristed.
Afstande fra ferieboligen og placering på kort
Nærtliggende sommerhuse
Er I flere familier, der gerne vil bo tæt på hinanden kan I søge efter nærtliggende sommerhuseSe nabohuse
Priser og kalender
Kalender
Varighed
Pris
Periode
- Ankomst
- Afrejse
- Varighed
- 1 uge
Personer
Op til 4 personer
Bemærk
Ankomst er ikke valgt.