Fakta om boligen
- 4 personer
- Ingen husdyr
- 1 soveværelse
- 1 badeværelse
Faciliteter
Andre
-
Radiator
-
Terrasse
Byggestatus
-
Ferielejlighed
Fritids aktiviteter
-
Skiing
Generel Information
-
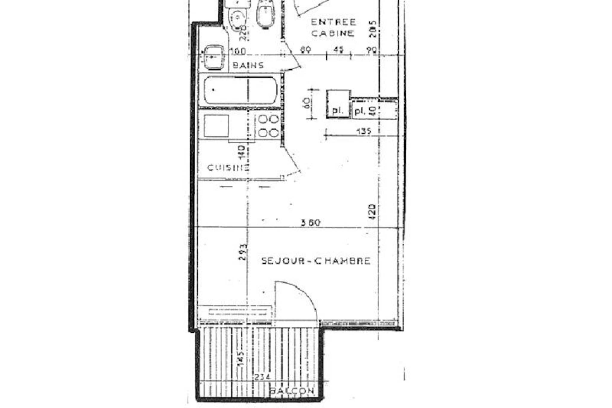
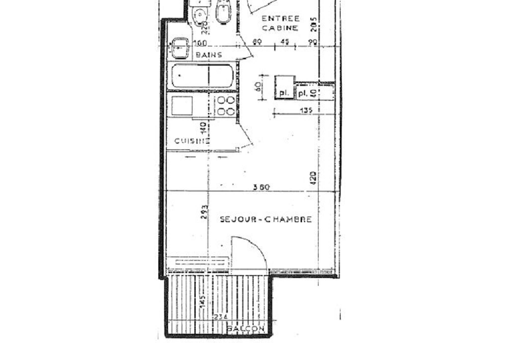
Boligareal25 m²
Køkkenudstyr
-
Elkedel
-
Fade og bestik
-
Toaster
Rundt om huset
-
Elevator
Type
-
Ferielejlighed
Beskrivelse
Feriehus i Val Thorens nær pisterne
Bolig:
I hjertet af Val Thorens, hvor Alpernes pulserende energi møder charmen fra et travlt skisportssted, tilbyder denne studiolejlighed en plads på første række til begivenhedernes centrum. Beliggende i LES NEVES-residensen, øverst i resortet, vil du være omgivet af livlige barer, natklubber og bekvemmeligheden ved Péclet-indkøbscentret lige på den anden side af gaden. Uanset om du er her for at stå på ski, være social eller nyde den dynamiske atmosfære, er dette den perfekte base for en uforglemmelig alpeferie. Dette hyggelige studio på 25 m² er omhyggeligt designet til at maksimere komfort og funktionalitet. Beliggende på første sal har det en sydvestvendt balkon med en fantastisk udsigt over resortet og de livlige gader nedenfor. Sovepladserne inkluderer to køjesenge i entréen og en udtræksseng i stuen, hvilket gør det ideelt til en lille gruppe venner eller par, der leder efter en livlig ferie. Det åbne køkken, udstyret med ovn og spiseplads i barstil, inviterer dig til at tilberede enkle måltider, inden du tager ud på opdagelse. Badeværelset har et toilet, så du kan være sikker på, at alle de nødvendige ting er dækket under dit ophold. Med pisterne kun 50 meter væk har du ubesværet adgang til noget af det bedste skiløb i verden. Efter en dag på pisterne kan du fordybe dig i Val Thorens' legendariske afterski-scene med et bredt udvalg af barer, restauranter og natklubber lige uden for døren. Péclet-indkøbscentret tilbyder alt fra dagligvarer til udstyr, hvilket sikrer, at du er godt rustet til dine eventyr. Perfekt til dem, der søger spænding og bekvemmelighed, placerer dette studie dig i centrum af det hele. Uanset om du snor dig gennem frisk puddersne eller danser natten lang, lover Val Thorens en ferie fyldt med energi, sjov og alpin charme.
Bolig:
I hjertet af Val Thorens, hvor Alpernes pulserende energi møder charmen fra et travlt skisportssted, tilbyder denne studiolejlighed en plads på første række til begivenhedernes centrum. Beliggende i LES NEVES-residensen, øverst i resortet, vil du være omgivet af livlige barer, natklubber og bekvemmeligheden ved Péclet-indkøbscentret lige på den anden side af gaden. Uanset om du er her for at stå på ski, være social eller nyde den dynamiske atmosfære, er dette den perfekte base for en uforglemmelig alpeferie. Dette hyggelige studio på 25 m² er omhyggeligt designet til at maksimere komfort og funktionalitet. Beliggende på første sal har det en sydvestvendt balkon med en fantastisk udsigt over resortet og de livlige gader nedenfor. Sovepladserne inkluderer to køjesenge i entréen og en udtræksseng i stuen, hvilket gør det ideelt til en lille gruppe venner eller par, der leder efter en livlig ferie. Det åbne køkken, udstyret med ovn og spiseplads i barstil, inviterer dig til at tilberede enkle måltider, inden du tager ud på opdagelse. Badeværelset har et toilet, så du kan være sikker på, at alle de nødvendige ting er dækket under dit ophold. Med pisterne kun 50 meter væk har du ubesværet adgang til noget af det bedste skiløb i verden. Efter en dag på pisterne kan du fordybe dig i Val Thorens' legendariske afterski-scene med et bredt udvalg af barer, restauranter og natklubber lige uden for døren. Péclet-indkøbscentret tilbyder alt fra dagligvarer til udstyr, hvilket sikrer, at du er godt rustet til dine eventyr. Perfekt til dem, der søger spænding og bekvemmelighed, placerer dette studie dig i centrum af det hele. Uanset om du snor dig gennem frisk puddersne eller danser natten lang, lover Val Thorens en ferie fyldt med energi, sjov og alpin charme.
Afstande fra ferieboligen og placering på kort
Nærtliggende sommerhuse
Er I flere familier, der gerne vil bo tæt på hinanden kan I søge efter nærtliggende sommerhuseSe nabohuse
Priser og kalender
Kalender
Varighed
Pris
Periode
- Ankomst
- Afrejse
- Varighed
- 1 uge
Personer
Op til 4 personer
Bemærk
Ankomst er ikke valgt.