Fakta om boligen
- 4 personer
- Ingen husdyr
- 1 soveværelse
- 1 badeværelse
Faciliteter
Andre
-
Radiator
-
Terrasse
Byggestatus
-
Ferielejlighed
Fritids aktiviteter
-
Skiing
Generel Information
-
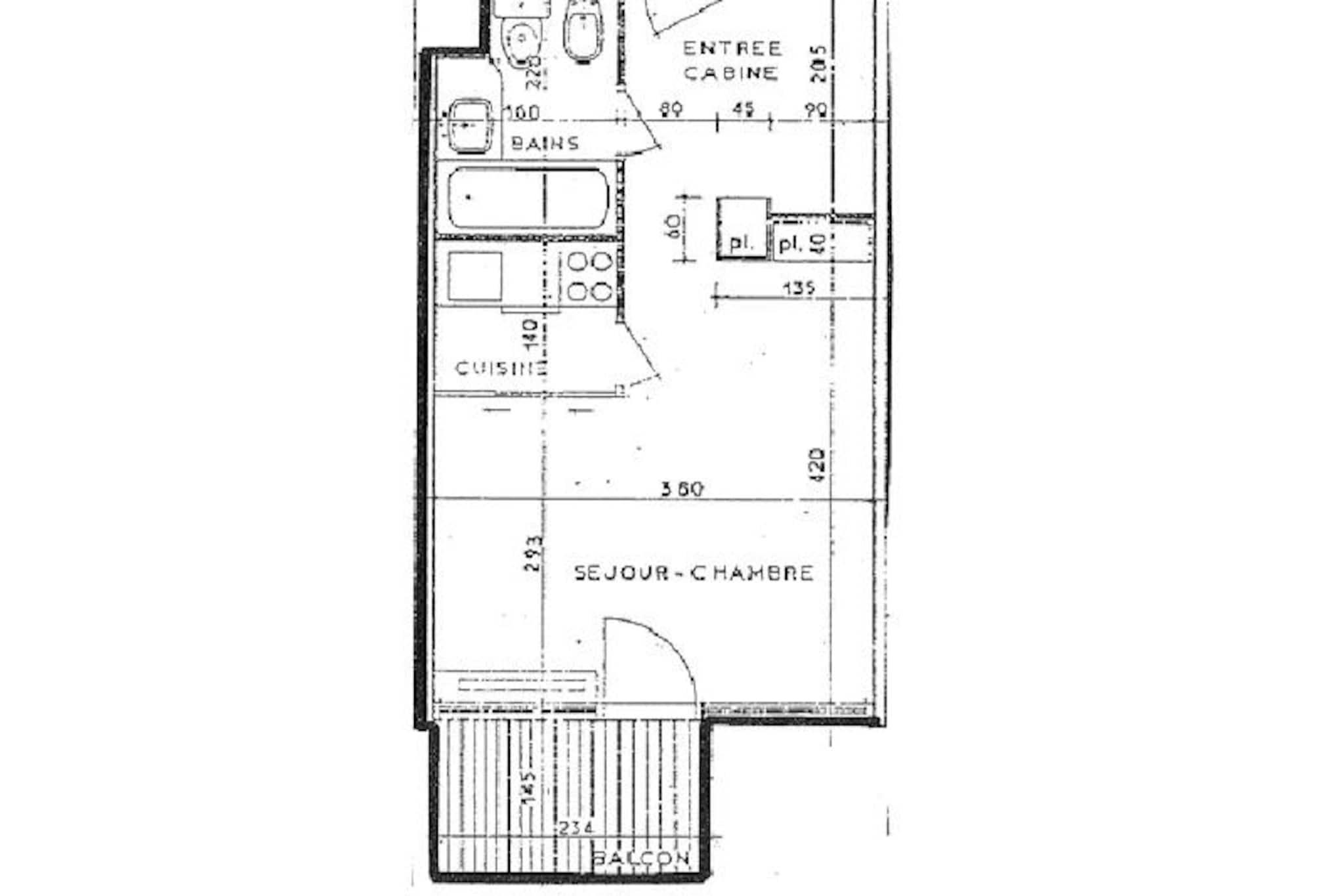
Boligareal28 m²
-
Opvaskemaskine
-
Ovn
Køkkenudstyr
-
Elkedel
-
Fade og bestik
-
Kaffemaskine
-
Opvaskemaskine
-
Ovn
-
Toaster
Rundt om huset
-
Elevator
Type
-
Ferielejlighed
Beskrivelse
VAL THORENS leje: studio til 4 personer i et ungt og livligt distrikt LES NEVES
Bolig:
I hjertet af det pulserende Val Thorens-resort tilbyder denne hyggelige studiolejlighed en plads på første række til den livlige energi i Alpernes højest beliggende skisportssted. Beliggende på mezzaninen i LES NEVES-residensen kan ejendommen prale af en sydvestvendt balkon med en flot udsigt over de travle gader nedenfor og det omkringliggende bjerglandskab. Uanset om du er her for pisterne eller afterskiing, placerer denne beliggenhed dig i centrum af det hele. Studiolejligheden på 28 m² er omhyggeligt designet til at maksimere komfort og funktionalitet. Den har to køjesenge i entréen og en udtræksseng i stuen, hvilket gør den ideel til en lille gruppe venner eller par, der søger en dynamisk ferie. Det kompakte køkken, adskilt af charmerende skillevægge, er udstyret med en ovn til at tilberede enkle måltider efter en dag på pisterne. Badeværelset har et toilet, og selvom ejendommen ikke har opvaskemaskine, sikrer den hyggelige indretning et afslappet og praktisk ophold. Residensen ligger kun 50 meter fra skiløjperne og tilbyder uovertruffen bekvemmelighed for skientusiaster. Derudover tilbyder Péclet-indkøbscentret, der ligger lige på den anden side af gaden, adgang til et supermarked, butikker og en række restauranter. For dem, der søger natteliv, er området omgivet af barer og natklubber, hvilket gør det til et perfekt valg for rejsende, der ønsker at fordybe sig i Val Thorens' pulserende sociale scene. Uanset om du er her for at cykle i frisk puddersne eller danse natten lang, er dette studie din indgang til et uforglemmeligt alpint eventyr. Med sin uovertrufne beliggenhed og livlige atmosfære er det den ultimative base for at skabe varige minder i de franske alper.
Bolig:
I hjertet af det pulserende Val Thorens-resort tilbyder denne hyggelige studiolejlighed en plads på første række til den livlige energi i Alpernes højest beliggende skisportssted. Beliggende på mezzaninen i LES NEVES-residensen kan ejendommen prale af en sydvestvendt balkon med en flot udsigt over de travle gader nedenfor og det omkringliggende bjerglandskab. Uanset om du er her for pisterne eller afterskiing, placerer denne beliggenhed dig i centrum af det hele. Studiolejligheden på 28 m² er omhyggeligt designet til at maksimere komfort og funktionalitet. Den har to køjesenge i entréen og en udtræksseng i stuen, hvilket gør den ideel til en lille gruppe venner eller par, der søger en dynamisk ferie. Det kompakte køkken, adskilt af charmerende skillevægge, er udstyret med en ovn til at tilberede enkle måltider efter en dag på pisterne. Badeværelset har et toilet, og selvom ejendommen ikke har opvaskemaskine, sikrer den hyggelige indretning et afslappet og praktisk ophold. Residensen ligger kun 50 meter fra skiløjperne og tilbyder uovertruffen bekvemmelighed for skientusiaster. Derudover tilbyder Péclet-indkøbscentret, der ligger lige på den anden side af gaden, adgang til et supermarked, butikker og en række restauranter. For dem, der søger natteliv, er området omgivet af barer og natklubber, hvilket gør det til et perfekt valg for rejsende, der ønsker at fordybe sig i Val Thorens' pulserende sociale scene. Uanset om du er her for at cykle i frisk puddersne eller danse natten lang, er dette studie din indgang til et uforglemmeligt alpint eventyr. Med sin uovertrufne beliggenhed og livlige atmosfære er det den ultimative base for at skabe varige minder i de franske alper.
Afstande fra ferieboligen og placering på kort
Nærtliggende sommerhuse
Er I flere familier, der gerne vil bo tæt på hinanden kan I søge efter nærtliggende sommerhuseSe nabohuse
Priser og kalender
Kalender
Varighed
Pris
Periode
- Ankomst
- Afrejse
- Varighed
- 1 uge
Personer
Op til 4 personer
Bemærk
Ankomst er ikke valgt.