Fakta om boligen
- 4 personer
- Ingen husdyr
- 1 soveværelse
- 1 badeværelse
Faciliteter
Andre
-
Radiator
-
Terrasse
Byggestatus
-
Ferielejlighed
Fritids aktiviteter
-
Skiing
Generel Information
-
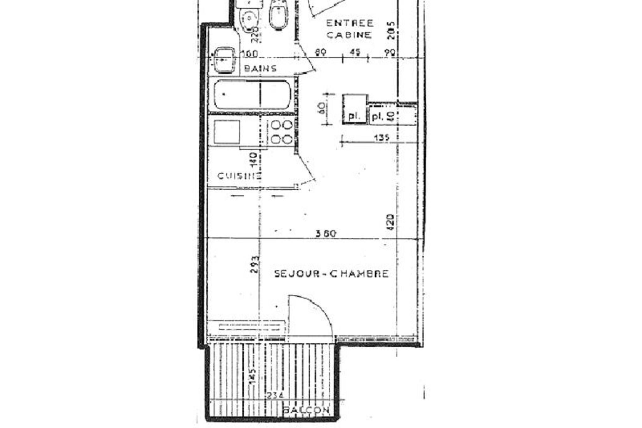
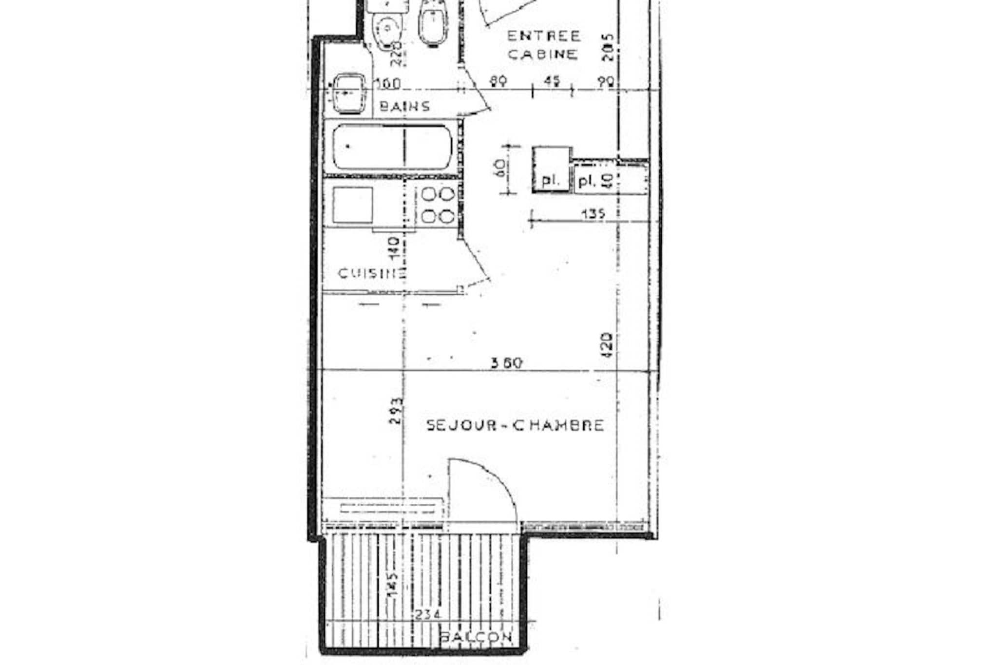
Boligareal25 m²
-
Mikroovn
-
TV
Køkkenudstyr
-
Elkedel
-
Fade og bestik
-
Kaffemaskine
-
Mikroovn
-
Toaster
Rundt om huset
-
Elevator
Type
-
Ferielejlighed
Værelsesudstyr
-
TV
Beskrivelse
Feriehus i Val Thorens nær pisterne
Bolig:
Højt over de pulserende gader i Val Thorens tilbyder dette hyggelige studie i LES NEVES-residensen en førsteplads til energien fra Alpernes højest beliggende skisportssted. Lejligheden, der ligger på sjette sal, kan prale af en sydvestvendt balkon omgivet af en veranda, hvor du kan nyde udsigten over det travle feriested og dets livlige natteliv. Uanset om du er her for at stå på ski, være social eller blot nyde den unikke atmosfære i Val Thorens, placerer denne ejendom dig i hjertet af det hele. Indenfor er det 25 m² store studie omhyggeligt designet til at maksimere plads og komfort. Opholdsstuen har tre køjesenge og en enkeltseng, hvilket gør den ideel til en gruppe venner, der søger en sjov ferie. Det åbne køkken er udstyret med mikrobølgeovn og spiseplads, perfekt til at dele måltider og planlægge dit næste eventyr. Badeværelset har toilet, og selvom det er kompakt, er pladsen funktionel og indbydende. Bemærk venligst, at studiet ikke har opvaskemaskine, og sengelinned, håndklæder og rengøringsservice er tilgængelige efter anmodning. Træd udenfor, og du vil befinder dig kun 50 meter fra pisterne, der tilbyder uovertruffen adgang til det verdenskendte skiterræn i Val Thorens. Boligen ligger i et livligt område, omgivet af barer, natklubber og Péclet-indkøbscentret, hvor du finder et supermarked, butikker og restauranter. Denne dynamiske beliggenhed er perfekt for dem, der ønsker at fordybe sig i den pulserende afterski-scene. For spændingssøgende og nattelivsentusiaster er dette studie en indgang til uforglemmelige alpine eventyr. Med pisterne lige uden for døren og feriestedets livlige energi hele vejen rundt, lover dit ophold på LES NEVES spænding og minder for livet.
Bolig:
Højt over de pulserende gader i Val Thorens tilbyder dette hyggelige studie i LES NEVES-residensen en førsteplads til energien fra Alpernes højest beliggende skisportssted. Lejligheden, der ligger på sjette sal, kan prale af en sydvestvendt balkon omgivet af en veranda, hvor du kan nyde udsigten over det travle feriested og dets livlige natteliv. Uanset om du er her for at stå på ski, være social eller blot nyde den unikke atmosfære i Val Thorens, placerer denne ejendom dig i hjertet af det hele. Indenfor er det 25 m² store studie omhyggeligt designet til at maksimere plads og komfort. Opholdsstuen har tre køjesenge og en enkeltseng, hvilket gør den ideel til en gruppe venner, der søger en sjov ferie. Det åbne køkken er udstyret med mikrobølgeovn og spiseplads, perfekt til at dele måltider og planlægge dit næste eventyr. Badeværelset har toilet, og selvom det er kompakt, er pladsen funktionel og indbydende. Bemærk venligst, at studiet ikke har opvaskemaskine, og sengelinned, håndklæder og rengøringsservice er tilgængelige efter anmodning. Træd udenfor, og du vil befinder dig kun 50 meter fra pisterne, der tilbyder uovertruffen adgang til det verdenskendte skiterræn i Val Thorens. Boligen ligger i et livligt område, omgivet af barer, natklubber og Péclet-indkøbscentret, hvor du finder et supermarked, butikker og restauranter. Denne dynamiske beliggenhed er perfekt for dem, der ønsker at fordybe sig i den pulserende afterski-scene. For spændingssøgende og nattelivsentusiaster er dette studie en indgang til uforglemmelige alpine eventyr. Med pisterne lige uden for døren og feriestedets livlige energi hele vejen rundt, lover dit ophold på LES NEVES spænding og minder for livet.
Afstande fra ferieboligen og placering på kort
Nærtliggende sommerhuse
Er I flere familier, der gerne vil bo tæt på hinanden kan I søge efter nærtliggende sommerhuseSe nabohuse
Priser og kalender
Kalender
Varighed
Pris
Periode
- Ankomst
- Afrejse
- Varighed
- 1 uge
Personer
Op til 4 personer
Bemærk
Ankomst er ikke valgt.