Fakta om boligen
- 4 personer
- Ingen husdyr
- 1 soveværelse
- 1 badeværelse
Faciliteter
Andre
-
Hårtørrer
-
Radiator
-
Terrasse
Byggestatus
-
Ferielejlighed
Fritids aktiviteter
-
Skiing
Generel Information
-
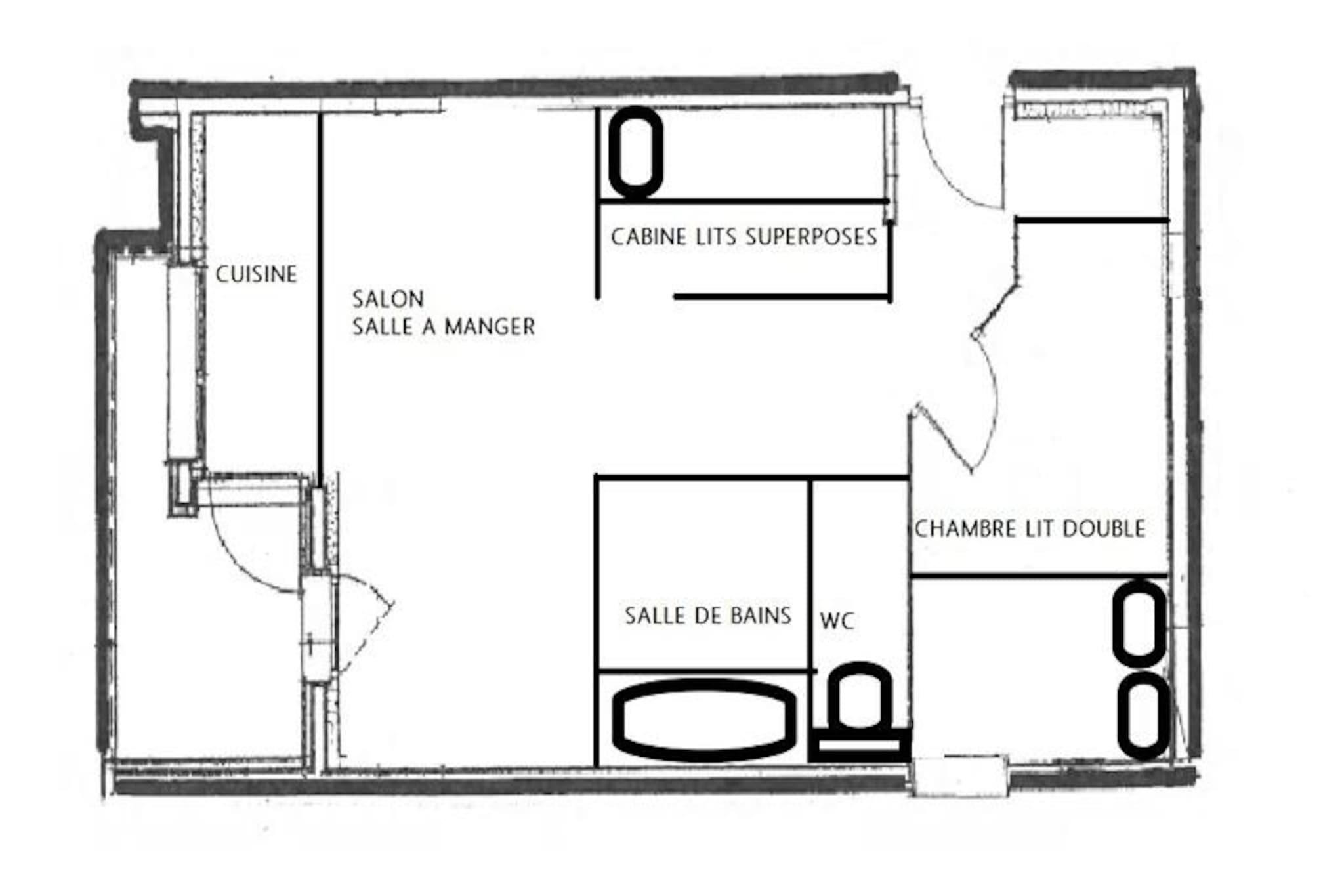
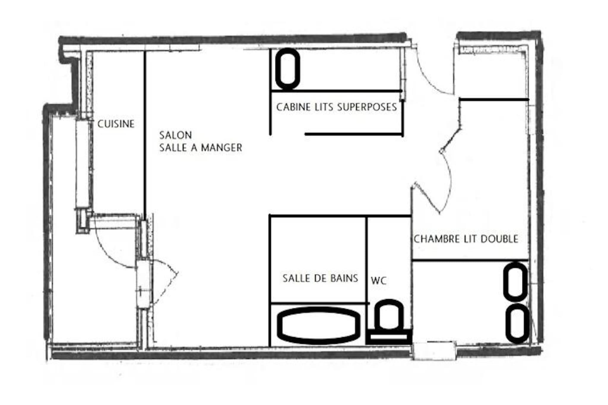
Boligareal36 m²
-
Opvaskemaskine
-
TV
Køkkenudstyr
-
Elkedel
-
Fade og bestik
-
Kaffemaskine
-
Opvaskemaskine
-
Toaster
Rundt om huset
-
Elevator
Type
-
Ferielejlighed
Værelsesudstyr
-
Støvsuger
-
TV
Beskrivelse
Meget flot renoveret lejlighed i VAL THORENS
Bolig:
Ved indgangen til det pulserende feriested Val Thorens tilbyder denne charmerende og totalrenoverede lejlighed et hyggeligt tilflugtssted kun 50 meter fra de nærmeste skiløjper. Beliggende i LE JOKER-residensen sikrer dens nærhed til Caron-indkøbscenteret og sportskomplekset, at alt hvad du behøver er inden for rækkevidde, uanset om du søger eventyr på pisterne eller en afslappende dag med at udforske landsbyen. Den sydvestvendte balkon inviterer dig til at nyde den alpine sol og den betagende udsigt over bjergene efter en spændende dag udendørs. \n\nDenne gennemtænkt designede lejlighed på 35 m² har komfortabel plads til op til fire gæster. Den har et soveværelse med dobbeltseng, en sovealkove med køjesenge og en indbydende opholds-, spise- og køkkenområde. Køkkenet er fuldt udstyret med moderne apparater, herunder køleskab, opvaskemaskine, elektrisk komfur og ovn, hvilket gør det nemt at tilberede solide måltider til at nyde med dine kære. Det separate toilet og badeværelse øger bekvemmeligheden og sikrer et behageligt ophold for alle. Bemærk venligst, at kæledyr ikke er tilladt, og yderligere tjenester såsom sengelinned, håndklæder og parkering er tilgængelige efter reservation. \n\nMed sin uovertrufne beliggenhed befinder du dig kun få skridt fra pisterne og den livlige atmosfære i Val Thorens. Uanset om du står på ski, snowboarder eller blot nyder afterskiing, er denne lejlighed den perfekte base for din alpine ferie. Om sommeren forvandles området til et paradis for vandrere og mountainbikere med endeløse stier og fantastiske udsigter. Skab uforglemmelige minder i hjertet af de franske alper, hvor eventyr og afslapning smelter sammen.
Bolig:
Ved indgangen til det pulserende feriested Val Thorens tilbyder denne charmerende og totalrenoverede lejlighed et hyggeligt tilflugtssted kun 50 meter fra de nærmeste skiløjper. Beliggende i LE JOKER-residensen sikrer dens nærhed til Caron-indkøbscenteret og sportskomplekset, at alt hvad du behøver er inden for rækkevidde, uanset om du søger eventyr på pisterne eller en afslappende dag med at udforske landsbyen. Den sydvestvendte balkon inviterer dig til at nyde den alpine sol og den betagende udsigt over bjergene efter en spændende dag udendørs. \n\nDenne gennemtænkt designede lejlighed på 35 m² har komfortabel plads til op til fire gæster. Den har et soveværelse med dobbeltseng, en sovealkove med køjesenge og en indbydende opholds-, spise- og køkkenområde. Køkkenet er fuldt udstyret med moderne apparater, herunder køleskab, opvaskemaskine, elektrisk komfur og ovn, hvilket gør det nemt at tilberede solide måltider til at nyde med dine kære. Det separate toilet og badeværelse øger bekvemmeligheden og sikrer et behageligt ophold for alle. Bemærk venligst, at kæledyr ikke er tilladt, og yderligere tjenester såsom sengelinned, håndklæder og parkering er tilgængelige efter reservation. \n\nMed sin uovertrufne beliggenhed befinder du dig kun få skridt fra pisterne og den livlige atmosfære i Val Thorens. Uanset om du står på ski, snowboarder eller blot nyder afterskiing, er denne lejlighed den perfekte base for din alpine ferie. Om sommeren forvandles området til et paradis for vandrere og mountainbikere med endeløse stier og fantastiske udsigter. Skab uforglemmelige minder i hjertet af de franske alper, hvor eventyr og afslapning smelter sammen.
Afstande fra ferieboligen og placering på kort
Nærtliggende sommerhuse
Er I flere familier, der gerne vil bo tæt på hinanden kan I søge efter nærtliggende sommerhuseSe nabohuse
Priser og kalender
Kalender
Varighed
Pris
Periode
- Ankomst
- Afrejse
- Varighed
- 1 uge
Personer
Op til 4 personer
Bemærk
Ankomst er ikke valgt.