Fakta om boligen
- 3 personer
- Ingen husdyr
- 1 soveværelse
- 1 badeværelse
Faciliteter
Andre
-
Radiator
-
Terrasse
Byggestatus
-
Ferielejlighed
Fritids aktiviteter
-
Skiing
Generel Information
-
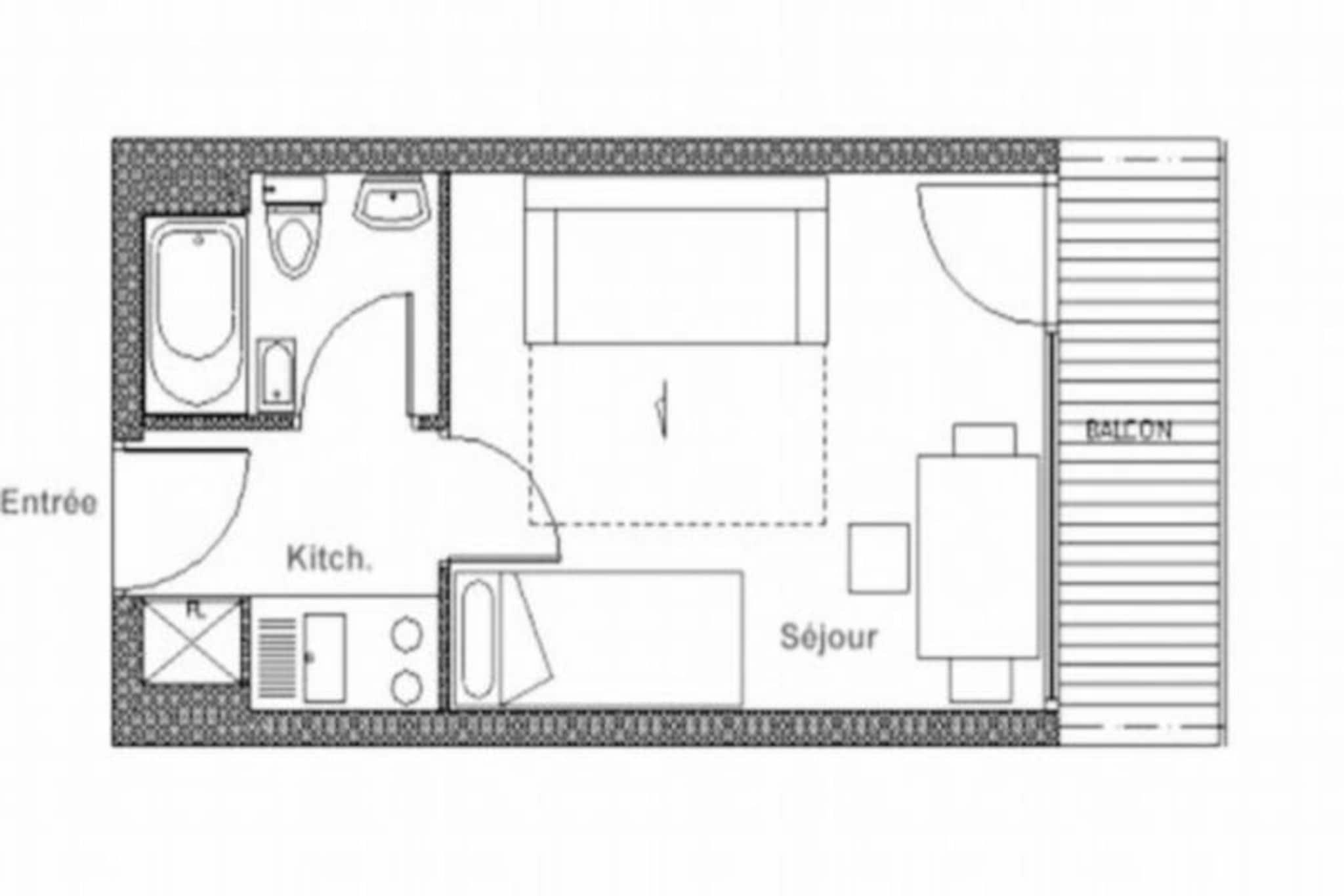
Boligareal22 m²
-
Mikroovn
-
TV
Køkkenudstyr
-
Elkedel
-
Fade og bestik
-
Kaffemaskine
-
Mikroovn
Rundt om huset
-
Elevator
Type
-
Ferielejlighed
Værelsesudstyr
-
TV
Beskrivelse
Lejlighed i La Croisette med adgang til skiløjperne
Bolig:
Højt over det travle La Croisette-distrikt inviterer denne charmerende studiolejlighed dig til at opleve magien i de franske alper i komfort og stil. Med skilifter bekvemt placeret ved foden af ??bygningen kan du træde direkte ud på pisterne og omfavne spændingen ved ski-in/ski-out-adgang. Den sydvestvendte balkon tilbyder et roligt tilflugtssted, hvor du kan nyde den alpine sol og den maleriske udsigt over de omkringliggende tinder, hvilket skaber de perfekte rammer for afslapning efter en dag med eventyr. Uanset om du er her for sneen eller sommerens stier, er dette hyggelige gemmested din port til bjergene. \n\nDet 22 m² store studio er designet til at rumme op til tre gæster og er omhyggeligt møbleret med en dobbelt sovesofa og en enkeltseng, der sikrer en god nats søvn. Opholdsstuen er udstyret med et tv til din underholdning, mens det kompakte køkken har alt det nødvendige, herunder kogeplade, køleskab, kombineret ovn/mikrobølgeovn, brødrister, elkedel og kaffemaskine. Badeværelset, komplet med badekar og toilet, tilføjer et strejf af bekvemmelighed til dit ophold. Tæpper er inkluderet, og der er betalt Wi-Fi, afhængigt af netværksdækning. \n\nBare en kort gåtur væk finder du den pulserende shoppingarkade og busstationen, hvilket gør det nemt at udforske byen og omegn. Familier vil sætte pris på nærheden til Pioupiou Club, en dagpleje og snehave, der ligger inden for 10 minutters gang, perfekt til de små, der ønsker at nyde deres egne alpine eventyr. For ekstra bekvemmelighed er der et skirum i kælderen, der sikrer, at dit udstyr altid er klar til action. \n\nUanset om du søger spændende pister, fredelig udsigt over bjergene eller en hyggelig base at slappe af, tilbyder denne studiolejlighed i hjertet af La Croisette en uforglemmelig alpin ferie, der er skræddersyet til dine behov.
Bolig:
Højt over det travle La Croisette-distrikt inviterer denne charmerende studiolejlighed dig til at opleve magien i de franske alper i komfort og stil. Med skilifter bekvemt placeret ved foden af ??bygningen kan du træde direkte ud på pisterne og omfavne spændingen ved ski-in/ski-out-adgang. Den sydvestvendte balkon tilbyder et roligt tilflugtssted, hvor du kan nyde den alpine sol og den maleriske udsigt over de omkringliggende tinder, hvilket skaber de perfekte rammer for afslapning efter en dag med eventyr. Uanset om du er her for sneen eller sommerens stier, er dette hyggelige gemmested din port til bjergene. \n\nDet 22 m² store studio er designet til at rumme op til tre gæster og er omhyggeligt møbleret med en dobbelt sovesofa og en enkeltseng, der sikrer en god nats søvn. Opholdsstuen er udstyret med et tv til din underholdning, mens det kompakte køkken har alt det nødvendige, herunder kogeplade, køleskab, kombineret ovn/mikrobølgeovn, brødrister, elkedel og kaffemaskine. Badeværelset, komplet med badekar og toilet, tilføjer et strejf af bekvemmelighed til dit ophold. Tæpper er inkluderet, og der er betalt Wi-Fi, afhængigt af netværksdækning. \n\nBare en kort gåtur væk finder du den pulserende shoppingarkade og busstationen, hvilket gør det nemt at udforske byen og omegn. Familier vil sætte pris på nærheden til Pioupiou Club, en dagpleje og snehave, der ligger inden for 10 minutters gang, perfekt til de små, der ønsker at nyde deres egne alpine eventyr. For ekstra bekvemmelighed er der et skirum i kælderen, der sikrer, at dit udstyr altid er klar til action. \n\nUanset om du søger spændende pister, fredelig udsigt over bjergene eller en hyggelig base at slappe af, tilbyder denne studiolejlighed i hjertet af La Croisette en uforglemmelig alpin ferie, der er skræddersyet til dine behov.
Afstande fra ferieboligen og placering på kort
Nærtliggende sommerhuse
Er I flere familier, der gerne vil bo tæt på hinanden kan I søge efter nærtliggende sommerhuseSe nabohuse
Priser og kalender
Kalender
Varighed
Pris
Periode
- Ankomst
- Afrejse
- Varighed
- 1 uge
Personer
Op til 3 personer
Bemærk
Ankomst er ikke valgt.