Fakta om boligen
- 4 personer
- Ingen husdyr
- 1 soveværelse
- 1 badeværelse
Faciliteter
Andre
-
Radiator
-
Terrasse
Byggestatus
-
Ferielejlighed
Fritids aktiviteter
-
Skiing
Generel Information
-
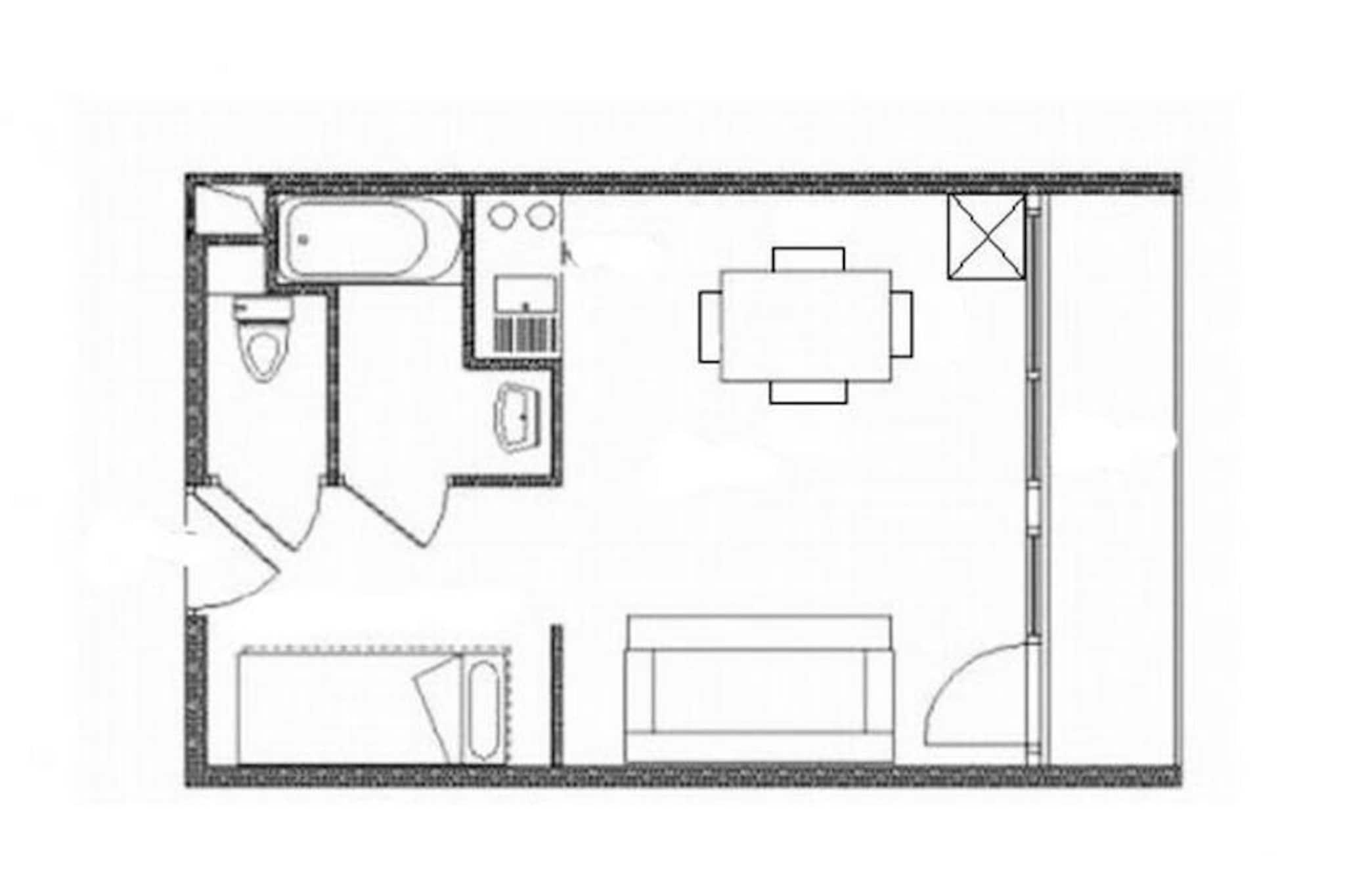
Boligareal23 m²
-
Mikroovn
-
TV
Køkkenudstyr
-
Elkedel
-
Fade og bestik
-
Kaffemaskine
-
Mikroovn
-
Toaster
Rundt om huset
-
Elevator
-
Grillplade
Type
-
Ferielejlighed
Værelsesudstyr
-
TV
Beskrivelse
Lejlighed i Bruyères med Ski-In
Bolig:
I hjertet af det livlige Bruyères-kvarter tilbyder denne charmerende studiolejlighed et hyggeligt tilflugtssted for dine alpine eventyr. Med ski-in/ski-out-adgang kan du træde direkte ud på pisterne og få det meste ud af din tid i det betagende Les Menuires-skiområde. Den nordøstvendte altan inviterer dig til at starte dine morgener med frisk bjergluft og udsigt over de omkringliggende bjergtoppe, hvilket sætter tonen for en uforglemmelig dag i de franske Alper. Denne gennemtænkte studiolejlighed på 23 m² kan komfortabelt rumme op til fire gæster og har et bjerghjørne med to enkeltsenge og en sovesofa i stuen. Det fuldt udstyrede køkken har elektriske kogeplader, køleskab, mikroovn, ovn, kedel, kaffemaskine og brødrister, så du har alt, hvad du behøver for at tilberede solide måltider efter en dag på pisterne. Lejligheden har også et badeværelse med badekar, separat toilet og moderne faciliteter såsom tv og betalt Wi-Fi-adgang (afhængigt af netværksdækning). For din bekvemmelighed er der et skiskab i stueetagen, og boligen er udstyret med tæpper og dyner, så du kan holde dig varm og komfortabel. Bruyères-kvarteret er et centrum for aktiviteter med en række restauranter, butikker, et turistkontor og endda et vandland og wellness-center. Familier vil sætte pris på den nærliggende kælkebane, skiskole og legeplads, mens biografen tilbyder en hyggelig aftenmulighed. Uanset om du er her for spændingen ved skiløb eller charmen ved livet i en alpin landsby, placerer denne studiolejlighed dig i centrum af det hele. Med sin uovertrufne beliggenhed, direkte adgang til pisterne og nærhed til alle de faciliteter, du kunne have brug for, er denne lejlighed det perfekte udgangspunkt for din bjergferie. Oplev magien i de franske alper og skab minder, der vil vare hele livet.
Bolig:
I hjertet af det livlige Bruyères-kvarter tilbyder denne charmerende studiolejlighed et hyggeligt tilflugtssted for dine alpine eventyr. Med ski-in/ski-out-adgang kan du træde direkte ud på pisterne og få det meste ud af din tid i det betagende Les Menuires-skiområde. Den nordøstvendte altan inviterer dig til at starte dine morgener med frisk bjergluft og udsigt over de omkringliggende bjergtoppe, hvilket sætter tonen for en uforglemmelig dag i de franske Alper. Denne gennemtænkte studiolejlighed på 23 m² kan komfortabelt rumme op til fire gæster og har et bjerghjørne med to enkeltsenge og en sovesofa i stuen. Det fuldt udstyrede køkken har elektriske kogeplader, køleskab, mikroovn, ovn, kedel, kaffemaskine og brødrister, så du har alt, hvad du behøver for at tilberede solide måltider efter en dag på pisterne. Lejligheden har også et badeværelse med badekar, separat toilet og moderne faciliteter såsom tv og betalt Wi-Fi-adgang (afhængigt af netværksdækning). For din bekvemmelighed er der et skiskab i stueetagen, og boligen er udstyret med tæpper og dyner, så du kan holde dig varm og komfortabel. Bruyères-kvarteret er et centrum for aktiviteter med en række restauranter, butikker, et turistkontor og endda et vandland og wellness-center. Familier vil sætte pris på den nærliggende kælkebane, skiskole og legeplads, mens biografen tilbyder en hyggelig aftenmulighed. Uanset om du er her for spændingen ved skiløb eller charmen ved livet i en alpin landsby, placerer denne studiolejlighed dig i centrum af det hele. Med sin uovertrufne beliggenhed, direkte adgang til pisterne og nærhed til alle de faciliteter, du kunne have brug for, er denne lejlighed det perfekte udgangspunkt for din bjergferie. Oplev magien i de franske alper og skab minder, der vil vare hele livet.
Afstande fra ferieboligen og placering på kort
Nærtliggende sommerhuse
Er I flere familier, der gerne vil bo tæt på hinanden kan I søge efter nærtliggende sommerhuseSe nabohuse
Priser og kalender
Kalender
Varighed
Pris
Periode
- Ankomst
- Afrejse
- Varighed
- 1 uge
Personer
Op til 4 personer
Bemærk
Ankomst er ikke valgt.