Fakta om boligen
- 4 personer
- Ingen husdyr
- 1 soveværelse
- 1 badeværelse
Faciliteter
Andre
-
Radiator
-
Terrasse
Byggestatus
-
Ferielejlighed
Fritids aktiviteter
-
Skiing
Generel Information
-
Boligareal35 m²
-
Mikroovn
-
Ovn
-
TV
Køkkenudstyr
-
Elkedel
-
Fade og bestik
-
Kaffemaskine
-
Mikroovn
-
Ovn
-
Toaster
Rundt om huset
-
Elevator
-
Grillplade
Type
-
Ferielejlighed
Værelsesudstyr
-
TV
Beskrivelse
Lejlighed i Croisette med ski-in-adgang
Bolig:
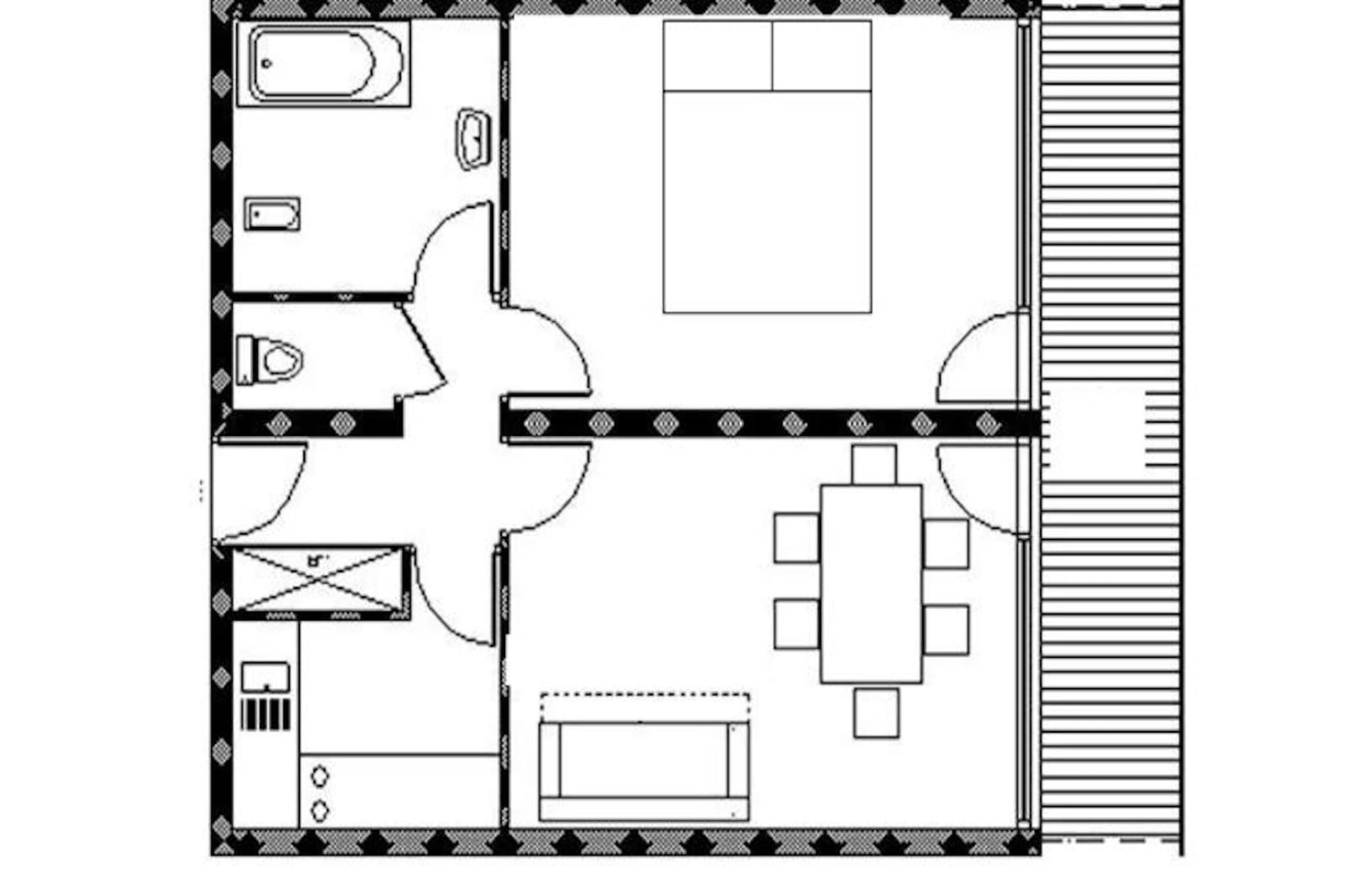
I hjertet af Croisette-kvarteret tilbyder denne charmerende lejlighed en førsteplads til de sneklædte skråninger i de franske alper. Forestil dig at vågne op til solens gyldne stråler, der strømmer ind gennem din sydøstvendte balkon, med de uberørte skiløjper kun få skridt væk. Denne ski-in/ski-out-residens er et paradis for vintersportsentusiaster, der tilbyder uovertruffen adgang til pisterne og bekvemmeligheden ved at være kun 20 meter fra den berømte ESF-skiskole. Uanset om du er her for at grave dig gennem frisk puddersne eller blot nyde den alpine atmosfære, lover denne beliggenhed en uforglemmelig bjergflugt. \n\nDenne lyse og rummelige toværelseslejlighed er på 35 m² og har komfortabel plads til op til fire gæster. Stuen har en hyggelig dobbeltsovesofa og et tv, perfekt til at slappe af efter en dag med eventyr. Det separate soveværelse har en komfortabel dobbeltseng, der sikrer afslappende nætter. Det fuldt udstyrede køkken har køleskab, elektriske kogeplader, mikrobølgeovn, ovn, elkedel, kaffemaskine og brødrister, hvilket gør det nemt at tilberede solide måltider. Badeværelset er udstyret med badekar, og der er et separat toilet for ekstra bekvemmelighed. Bemærk venligst, at dette er en ikke-ryger lejlighed, der er udstyret med tæpper for din komfort. Der er betalt Wi-Fi, afhængigt af netværksdækning.\n\nUd over lejligheden tilbyder Croisette-kvarteret et pulserende udvalg af faciliteter. Bygningen er direkte forbundet med en shoppingarkade, hvilket sikrer, at du har alt, hvad du behøver, lige ved hånden. En børnehave ligger kun 200 meter væk, hvilket gør det til et familievenligt valg. Gratis udendørs parkering er tilgængelig overfor bygningen, afhængigt af tilgængelighed. For dem, der søger afterski-aktiviteter, er den livlige atmosfære på feriestedet kun en kort gåtur væk, med restauranter, butikker og underholdning for at fuldende din alpine oplevelse.\n\nUanset om du besøger stedet for spændingen ved pisterne eller den fredfyldte bjergudsigt, er dette hyggelige tilflugtssted i Vanoise-bygningen din port til det bedste af de franske alper. Lad bjergenes magi skabe minder, der vil vare hele livet.
Bolig:
I hjertet af Croisette-kvarteret tilbyder denne charmerende lejlighed en førsteplads til de sneklædte skråninger i de franske alper. Forestil dig at vågne op til solens gyldne stråler, der strømmer ind gennem din sydøstvendte balkon, med de uberørte skiløjper kun få skridt væk. Denne ski-in/ski-out-residens er et paradis for vintersportsentusiaster, der tilbyder uovertruffen adgang til pisterne og bekvemmeligheden ved at være kun 20 meter fra den berømte ESF-skiskole. Uanset om du er her for at grave dig gennem frisk puddersne eller blot nyde den alpine atmosfære, lover denne beliggenhed en uforglemmelig bjergflugt. \n\nDenne lyse og rummelige toværelseslejlighed er på 35 m² og har komfortabel plads til op til fire gæster. Stuen har en hyggelig dobbeltsovesofa og et tv, perfekt til at slappe af efter en dag med eventyr. Det separate soveværelse har en komfortabel dobbeltseng, der sikrer afslappende nætter. Det fuldt udstyrede køkken har køleskab, elektriske kogeplader, mikrobølgeovn, ovn, elkedel, kaffemaskine og brødrister, hvilket gør det nemt at tilberede solide måltider. Badeværelset er udstyret med badekar, og der er et separat toilet for ekstra bekvemmelighed. Bemærk venligst, at dette er en ikke-ryger lejlighed, der er udstyret med tæpper for din komfort. Der er betalt Wi-Fi, afhængigt af netværksdækning.\n\nUd over lejligheden tilbyder Croisette-kvarteret et pulserende udvalg af faciliteter. Bygningen er direkte forbundet med en shoppingarkade, hvilket sikrer, at du har alt, hvad du behøver, lige ved hånden. En børnehave ligger kun 200 meter væk, hvilket gør det til et familievenligt valg. Gratis udendørs parkering er tilgængelig overfor bygningen, afhængigt af tilgængelighed. For dem, der søger afterski-aktiviteter, er den livlige atmosfære på feriestedet kun en kort gåtur væk, med restauranter, butikker og underholdning for at fuldende din alpine oplevelse.\n\nUanset om du besøger stedet for spændingen ved pisterne eller den fredfyldte bjergudsigt, er dette hyggelige tilflugtssted i Vanoise-bygningen din port til det bedste af de franske alper. Lad bjergenes magi skabe minder, der vil vare hele livet.
Afstande fra ferieboligen og placering på kort
Nærtliggende sommerhuse
Er I flere familier, der gerne vil bo tæt på hinanden kan I søge efter nærtliggende sommerhuseSe nabohuse
Priser og kalender
Kalender
Varighed
Pris
Periode
- Ankomst
- Afrejse
- Varighed
- 1 uge
Personer
Op til 4 personer
Bemærk
Ankomst er ikke valgt.