Fakta om boligen
- 4 personer
- 7 husdyr
- 2 soveværelser
- 1 badeværelse
- Vand 15200
Faciliteter
Afstand
-
Bageri3,5 km
-
Busstop3,3 km
-
Diverse11,5 km
-
Mad3,4 km
-
Sø15,2 km
-
Turistkontor3,4 km
Byggestatus
-
Fritliggende
Generel Information
-
Boligareal55 m²
-
Fade og Sølvtøj
-
Kaffemaskine
-
Køleskab
-
Opvaskemaskine
Køkkenudstyr
-
Elkedel
-
Grundlæggende madlavning
-
Kaffemaskine
-
Kombinationsmikrobølgeovn
-
Komfur
-
Køleskab - Fryser
Sanitet / Vask
-
Bruser
-
Hot tub
-
Håndvask
-
SaunaDelt med andre gæster
-
Toilet
Type
-
Feriebolig
Værelsesudstyr
-
Siddeområde
-
Spisebord
-
TV
Beskrivelse
Feriehus ved Palette Resort de-Steppe
Bolig:
Gemt væk i det fredelige Brabantske landskab ligger dette elegante feriehus i Ulicoten, Noord-Brabant, og er en skjult perle designet til rejsende, der værdsætter kvalitet, ro og en tæt forbindelse med naturen. Ideelt til op til fire gæster er huset en del af en lille boutiquepark langt fra masseturismen og tilbyder et raffineret alternativ til traditionelle ferieparker. Her møder moderne design rolige omgivelser og skaber et sted, hvor tiden går langsommere, og afslapning kommer naturligt. Huset er bygget med innovativ modulær konstruktion og er næsten energineutralt og fremtidsorienteret, hvilket afspejler et stærkt engagement i bæredygtighed og respekt for miljøet. Naturlige materialer, varme jordfarver og et stilfuldt interiør gør det muligt for huset at smelte problemfrit ind i sine grønne omgivelser, hvilket minimerer påvirkningen af naturen og maksimerer oplevelsen af fred og rummelighed. Store vinduer og gennemtænkt design inviterer naturen indenfor og får hvert ophold til at føles lyst, åbent og fredfyldt. Indenfor kan gæsterne nyde en komfortabel opholds- og spisestue med et hyggeligt siddeområde og tv samt et åbent køkken udstyret med moderne faciliteter til afslappet hjemmelavet mad. To indbydende soveværelser giver afslappende nætter, mens det moderne badeværelse tilføjer hverdagskomfort. Gå ud på den private veranda for at nyde rolige morgener, afslappede måltider eller aftener omgivet af grønne områder. Med Baarle-Nassau i gåafstand og større byer som Amsterdam og Bruxelles kun omkring 100 km væk, er dette feriehus perfekt placeret til både afslapning og udforskning.
Layout:
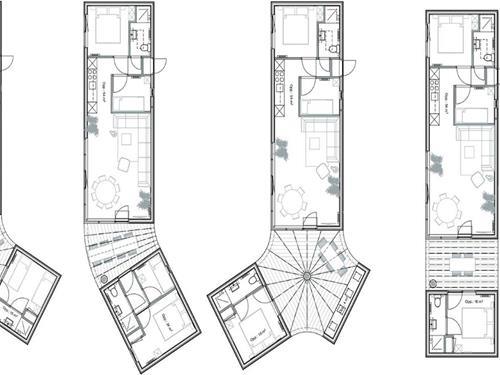
Stueetage: (åbent køkken(elkedel, komfur, kaffemaskine, combi-mikroovn, køle-fryseskab), stue / spisestue(Fjernsyn, spisebord, sofahjørne), soveværelse(dobbeltseng eller 2 enkeltsenge Senge), soveværelse(køjeseng), badeværelse(bruser, håndvask, toilet), veranda(sofahjørne, komfur, )) hottub, sauna(deles med andre gæster)
Bolig:
Gemt væk i det fredelige Brabantske landskab ligger dette elegante feriehus i Ulicoten, Noord-Brabant, og er en skjult perle designet til rejsende, der værdsætter kvalitet, ro og en tæt forbindelse med naturen. Ideelt til op til fire gæster er huset en del af en lille boutiquepark langt fra masseturismen og tilbyder et raffineret alternativ til traditionelle ferieparker. Her møder moderne design rolige omgivelser og skaber et sted, hvor tiden går langsommere, og afslapning kommer naturligt. Huset er bygget med innovativ modulær konstruktion og er næsten energineutralt og fremtidsorienteret, hvilket afspejler et stærkt engagement i bæredygtighed og respekt for miljøet. Naturlige materialer, varme jordfarver og et stilfuldt interiør gør det muligt for huset at smelte problemfrit ind i sine grønne omgivelser, hvilket minimerer påvirkningen af naturen og maksimerer oplevelsen af fred og rummelighed. Store vinduer og gennemtænkt design inviterer naturen indenfor og får hvert ophold til at føles lyst, åbent og fredfyldt. Indenfor kan gæsterne nyde en komfortabel opholds- og spisestue med et hyggeligt siddeområde og tv samt et åbent køkken udstyret med moderne faciliteter til afslappet hjemmelavet mad. To indbydende soveværelser giver afslappende nætter, mens det moderne badeværelse tilføjer hverdagskomfort. Gå ud på den private veranda for at nyde rolige morgener, afslappede måltider eller aftener omgivet af grønne områder. Med Baarle-Nassau i gåafstand og større byer som Amsterdam og Bruxelles kun omkring 100 km væk, er dette feriehus perfekt placeret til både afslapning og udforskning.
Layout:
Stueetage: (åbent køkken(elkedel, komfur, kaffemaskine, combi-mikroovn, køle-fryseskab), stue / spisestue(Fjernsyn, spisebord, sofahjørne), soveværelse(dobbeltseng eller 2 enkeltsenge Senge), soveværelse(køjeseng), badeværelse(bruser, håndvask, toilet), veranda(sofahjørne, komfur, )) hottub, sauna(deles med andre gæster)
Afstande fra ferieboligen og placering på kort
- Bageri 3,5 km
- Busstop 3,3 km
- Diverse 11,5 km
- Mad 3,4 km
- Sø 15,2 km
- Turistkontor 3,4 km
Nærtliggende sommerhuse
Er I flere familier, der gerne vil bo tæt på hinanden kan I søge efter nærtliggende sommerhuseSe nabohuse
Priser og kalender
Kalender
Varighed
Personer
Pris
Periode
- Ankomst
- Afrejse
- Varighed
- 1 uge
Personer
Ingen personer er valgt
Bemærk
Ankomst er ikke valgt.
Der er ikke valgt personer.