Fakta om boligen
- 8 personer
- 7 husdyr
- 4 soveværelser
- 2 badeværelser
- Vand 15200
Faciliteter
Afstand
-
Bageri3,5 km
-
Busstop3,3 km
-
Diverse11,5 km
-
Mad3,4 km
-
Sø15,2 km
-
Turistkontor3,4 km
Byggestatus
-
Fritliggende
Generel Information
-
Boligareal85 m²
-
Fade og Sølvtøj
-
Kaffemaskine
-
Køleskab
-
Opvaskemaskine
Køkkenudstyr
-
Elkedel
-
Grundlæggende madlavning
-
Kaffemaskine
-
Kombinationsmikrobølgeovn
-
Komfur
-
Køleskab - Fryser
Sanitet / Vask
-
Bruser
-
Hot tub
-
Håndvask
-
Sauna
-
Toilet
Type
-
Feriebolig
Værelsesudstyr
-
Siddeområde
-
Spisebord
-
TV
Beskrivelse
Bæredygtigt ophold ved Palette Resort de-Steppe
Bolig:
Der er ferier, der føles travle, og så er der ophold som dette, hvor plads, natur og design forenes ubesværet. Beliggende i det rolige landskab i Ulicoten i Noord-Brabant, er denne stilfulde øko-skovvilla designet til familier og grupper på op til otte gæster, der ønsker at genoprette forbindelsen, sætte tempoet ned og virkelig nyde tiden sammen. Bygget som en næsten energineutral BENG-villa, blander hjemmet moderne komfort med respekt for naturen og tilbyder fredelige omgivelser langt væk fra masseturismen. Indenfor føles villaen varm og indbydende, indrettet i naturlige toner med et raffineret, moderne præg. Det åbne køkken er fuldt udstyret med elkedel, komfur, kaffemaskine, kombineret mikrobølgeovn og køleskab med fryser, perfekt til fælles morgenmad eller afslappede middage. Den lyse opholds- og spisestue tilbyder komfortable siddepladser, et tv og plads til at samles efter en dag udendørs. To soveværelser tilbyder fleksible sovearrangementer med en dobbeltseng eller to enkeltsenge og en køjeseng, mens badeværelset har bruser, håndvask og toilet. Udenfor inviterer verandaen til lange aftener, frisk luft og nem udendørs madlavning. Omgivelserne er ideelle for både aktive familier og naturelskere. Udforsk vandre- og cykelruter gennem Kempens landskab, besøg Kempens Landschap Wortel-Kolonie kun 15 km væk, eller nyd en dagstur med børnene på Speelboerderij de Vossenberg. Daglige fornødenheder, bagerier og turistinformation ligger i nærheden i Baarle-Nassau, mens byer som Tilburg og Antwerpen ligger inden for nem køreafstand for kultur, shopping og restauranter.
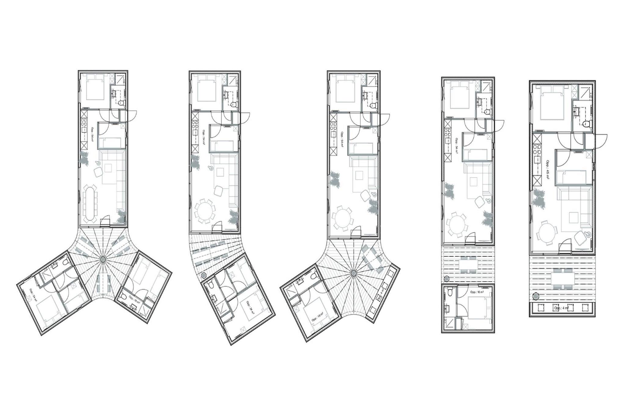
Layout:
Stueetage: (åbent køkken(elkedel, komfur, kaffemaskine, combi-mikroovn, køle-fryseskab), stue / spisestue(Fjernsyn, spisebord, sofahjørne), soveværelse(dobbeltseng eller 2 enkeltsenge Senge), soveværelse(køjeseng), badeværelse(bruser, håndvask, toilet), veranda(sofahjørne, komfur, )) soveværelse(køjeseng), Soveværelse med badeværelse(dobbeltseng eller 2 enkeltsenge Senge, bruser, håndvask, toilet), hottub, sauna
Bolig:
Der er ferier, der føles travle, og så er der ophold som dette, hvor plads, natur og design forenes ubesværet. Beliggende i det rolige landskab i Ulicoten i Noord-Brabant, er denne stilfulde øko-skovvilla designet til familier og grupper på op til otte gæster, der ønsker at genoprette forbindelsen, sætte tempoet ned og virkelig nyde tiden sammen. Bygget som en næsten energineutral BENG-villa, blander hjemmet moderne komfort med respekt for naturen og tilbyder fredelige omgivelser langt væk fra masseturismen. Indenfor føles villaen varm og indbydende, indrettet i naturlige toner med et raffineret, moderne præg. Det åbne køkken er fuldt udstyret med elkedel, komfur, kaffemaskine, kombineret mikrobølgeovn og køleskab med fryser, perfekt til fælles morgenmad eller afslappede middage. Den lyse opholds- og spisestue tilbyder komfortable siddepladser, et tv og plads til at samles efter en dag udendørs. To soveværelser tilbyder fleksible sovearrangementer med en dobbeltseng eller to enkeltsenge og en køjeseng, mens badeværelset har bruser, håndvask og toilet. Udenfor inviterer verandaen til lange aftener, frisk luft og nem udendørs madlavning. Omgivelserne er ideelle for både aktive familier og naturelskere. Udforsk vandre- og cykelruter gennem Kempens landskab, besøg Kempens Landschap Wortel-Kolonie kun 15 km væk, eller nyd en dagstur med børnene på Speelboerderij de Vossenberg. Daglige fornødenheder, bagerier og turistinformation ligger i nærheden i Baarle-Nassau, mens byer som Tilburg og Antwerpen ligger inden for nem køreafstand for kultur, shopping og restauranter.
Layout:
Stueetage: (åbent køkken(elkedel, komfur, kaffemaskine, combi-mikroovn, køle-fryseskab), stue / spisestue(Fjernsyn, spisebord, sofahjørne), soveværelse(dobbeltseng eller 2 enkeltsenge Senge), soveværelse(køjeseng), badeværelse(bruser, håndvask, toilet), veranda(sofahjørne, komfur, )) soveværelse(køjeseng), Soveværelse med badeværelse(dobbeltseng eller 2 enkeltsenge Senge, bruser, håndvask, toilet), hottub, sauna
Afstande fra ferieboligen og placering på kort
- Bageri 3,5 km
- Busstop 3,3 km
- Diverse 11,5 km
- Mad 3,4 km
- Sø 15,2 km
- Turistkontor 3,4 km
Nærtliggende sommerhuse
Er I flere familier, der gerne vil bo tæt på hinanden kan I søge efter nærtliggende sommerhuseSe nabohuse
Priser og kalender
Kalender
Varighed
Personer
Pris
Periode
- Ankomst
- Afrejse
- Varighed
- 1 uge
Personer
Ingen personer er valgt
Bemærk
Ankomst er ikke valgt.
Der er ikke valgt personer.