Fakta om boligen
- 8 personer
- Ingen husdyr
- Rygning ikke tilladt
- 3 soveværelser
- 2 badeværelser
- Indkøb 200
Faciliteter
Afstand
-
Banegård60 km
-
Busstop1 km
-
Centrum1 km
-
Diverse1 km
-
Doktor1 km
-
Færgehavn3 km
-
Lufthavn65 km
-
Restauranter200 m
-
Shopping200 m
-
Skilift3 km
Andre
-
Klimaanlage
-
Strygebræt
-
Strygejern
-
Terrasse
-
Tørreskab
Byggestatus
-
Top placering
Børn
-
Børneseng
-
Højstol
Fritids aktiviteter
-
Cykling
-
Fiskeri
-
Golf
-
Vandsport
Generel Information
-
Boligareal100 m²
-
Ikkeryger
-
WiFi
Handicap - Mål
-
Frihøjde under håndvasken >= 70 cm
Hjemmesikkerhed
-
Førstehjælpskasse
Køkkenudstyr
-
Elkedel
-
Fryser
-
Grill
-
Kaffemaskine
-
Komfur
-
Køleskab
-
Mikroovn
-
Opvaskemaskine
-
Ovn
-
Toaster
Parkfaciliteter
-
Førstehjælp
-
Grillcenter
-
Internetadgang
Rundt om huset
-
Have
-
Havemøbler
-
Internetadgang DSL
-
Terrasse
Sanitet / Vask
-
Bruser
-
Håndvask
-
Varmt vand
-
Vaskemaskine
Type
-
Feriebolig
Værelsesudstyr
-
Brandalarm
-
Garderobe
-
Lænestol
-
Makeup-spejl
-
Radio
-
Sengetøj
-
Sikkerheds boks
-
Sofa
-
Spejl
-
Spisebord
-
Støvsuger
-
TV
-
Viskestykker
Beskrivelse
Ferielejlighed i Porec med swimmingpool
Bolig:
Ferielejligheden på Villa California i Porec er en selvstændig enhed med separat adgang. Balkoner eller loggiaer er standard, ligesom nogle private haver og et fælles grillområde. Faciliteterne inkluderer kaffemaskine, opvaskemaskine, vaskemaskine, tysksproget satellit-tv, elektrisk grill og stereoradio. Køkkenet er fuldt udstyret. Opholdsstuen har fliser af høj kvalitet, og soveværelserne har parketgulv. Parkering er tilgængelig direkte ved huset.
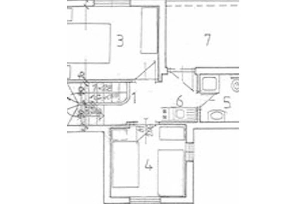
Layout:
På 1. etage: (stue / spisestue(, , Fjernsyn, Fjernsyn, spisebord, radio, klimaanlæg)) , , , , , Køkken(, tekøkken, spisebord, elkedel, brødrister, komfur, kaffemaskine, ovn, grill, mikrobølgeovn, opvaskemaskine , køleskab, fryser, fryser, klimaanlæg), Køkken(, tekøkken, spisebord, elkedel, brødrister, komfur, kaffemaskine, ovn, grill, mikrobølgeovn, opvaskemaskine , køleskab, fryser, fryser, klimaanlæg), soveværelse(, , enkeltseng, enkeltseng, enkeltseng, dobbeltseng, dobbeltseng, barneseng, barnestol), soveværelse(, , enkeltseng, enkeltseng, enkeltseng, dobbeltseng, dobbeltseng, barneseng, barnestol), soveværelse(, , enkeltseng, enkeltseng, enkeltseng, dobbeltseng, dobbeltseng, barneseng, barnestol), badeværelse(, , toilet, bruser, håndvask, vaskemaskine, barnestol), badeværelse(, , toilet, bruser, håndvask, vaskemaskine, barnestol), Internetadgang, Internetadgang, Førstehjælp, vaskemaskine, balkon(grill, havemøbler), balkon(grill, havemøbler), terrasse, have(Grill center), strygebræt, strygejern, tørreskab
Bolig:
Ferielejligheden på Villa California i Porec er en selvstændig enhed med separat adgang. Balkoner eller loggiaer er standard, ligesom nogle private haver og et fælles grillområde. Faciliteterne inkluderer kaffemaskine, opvaskemaskine, vaskemaskine, tysksproget satellit-tv, elektrisk grill og stereoradio. Køkkenet er fuldt udstyret. Opholdsstuen har fliser af høj kvalitet, og soveværelserne har parketgulv. Parkering er tilgængelig direkte ved huset.
Layout:
På 1. etage: (stue / spisestue(, , Fjernsyn, Fjernsyn, spisebord, radio, klimaanlæg)) , , , , , Køkken(, tekøkken, spisebord, elkedel, brødrister, komfur, kaffemaskine, ovn, grill, mikrobølgeovn, opvaskemaskine , køleskab, fryser, fryser, klimaanlæg), Køkken(, tekøkken, spisebord, elkedel, brødrister, komfur, kaffemaskine, ovn, grill, mikrobølgeovn, opvaskemaskine , køleskab, fryser, fryser, klimaanlæg), soveværelse(, , enkeltseng, enkeltseng, enkeltseng, dobbeltseng, dobbeltseng, barneseng, barnestol), soveværelse(, , enkeltseng, enkeltseng, enkeltseng, dobbeltseng, dobbeltseng, barneseng, barnestol), soveværelse(, , enkeltseng, enkeltseng, enkeltseng, dobbeltseng, dobbeltseng, barneseng, barnestol), badeværelse(, , toilet, bruser, håndvask, vaskemaskine, barnestol), badeværelse(, , toilet, bruser, håndvask, vaskemaskine, barnestol), Internetadgang, Internetadgang, Førstehjælp, vaskemaskine, balkon(grill, havemøbler), balkon(grill, havemøbler), terrasse, have(Grill center), strygebræt, strygejern, tørreskab
Afstande fra ferieboligen og placering på kort
- Banegård 60 km
- Busstop 1 km
- Centrum 1 km
- Diverse 1 km
- Doktor 1 km
- Færgehavn 3 km
- Lufthavn 65 km
- Restauranter 200 m
- Shopping 200 m
- Skilift 3 km
Nærtliggende sommerhuse
Er I flere familier, der gerne vil bo tæt på hinanden kan I søge efter nærtliggende sommerhuseSe nabohuse
Priser og kalender
Kalender
Varighed
Pris
Periode
- Ankomst
- Afrejse
- Varighed
- 1 uge
Personer
Op til 8 personer
Bemærk
Ankomst er ikke valgt.