Fakta om boligen
- 9 personer
- 1 husdyr
- Rygning ikke tilladt
- 3 soveværelser
- 3 badeværelser
- Vand 1000
- Indkøb 1000
Faciliteter
Afstand
-
Autobahn40 km
-
By/bymidte1 km
-
Handle ind1 km
-
Hav1 km
-
Lufthavn53 km
-
Strand1 km
Bad
-
Makeup spejl
Fritid direkte ved lejligheden
-
Fiskemulighed
-
Have til fælles brug
Generel information om lejligheden
-
Handicapparkeringsplads
-
Ikke-ryger lejlighed
-
Seniorboliger
-
Separat indgang
-
Tørretumbler til fælles brug
-
Vaskemaskine til fælles brug
-
Værter bor i huset
-
WiFi gratis
Generelt udstyr
-
Carport
-
WLAN
Grundlæggende
-
Køkkener1
-
Størrelse110 m²
Kæledyr
-
Dyr er tilladt
Køkken
-
Espressomaskine
-
Mikroovn
-
Opvaskemaskine
-
Ovn
-
Strygejern
-
Toaster
-
Vandvarmer
Køkkenudstyr
-
Besætning (elektro)
-
Blander
-
Cerankochfeld
-
Dinette
-
Egen vaskemaskine i boligen
-
Fryser
-
Kaffemaskine (filter)
-
Kaffemaskine (Nespresso)
-
Komfur (induktion)
-
Køleskab (med fryser)
-
Madlavningsfaciliteter (gryder, stegepande, salt, peber og olie)
-
Strygebræt
Service
-
Håndklæder inkl.
-
Sengelinned kan lejes mod betaling
-
Sengetøj inkluderet
Tjenester
-
24-timers reception
-
Viskestykker inkluderet
Udendørs
-
Balkon
Udendørs faciliteter
-
BBQ
-
Egen legeplads ved overnatningsstedet
-
Ejendom indhegnet
-
Have liggestole
-
Havemøbler
-
Terrasse
-
Terrasse (overdækket)
Udstyr bad/toilet
-
Badeværelse med bruser
-
Badeværelse med vindue
-
Bidet
-
Fond
-
Separat toilet
-
WC i Bad
Udstyr lejlighed
-
Skrivebord
-
TV (LCD)
-
TV (Smart TV)
-
Udtrækssovesofa
-
Ventilator
Udstyr soveplads
-
1 barneseng
-
1 enkeltseng
-
3 eller flere dobbeltsenge
Beskrivelse
Beskrivelsen foreligger desværre ikke på Dansk. Se teksten på Tysk nedenfor, eller se den maskinoversatte tekst på Dansk.
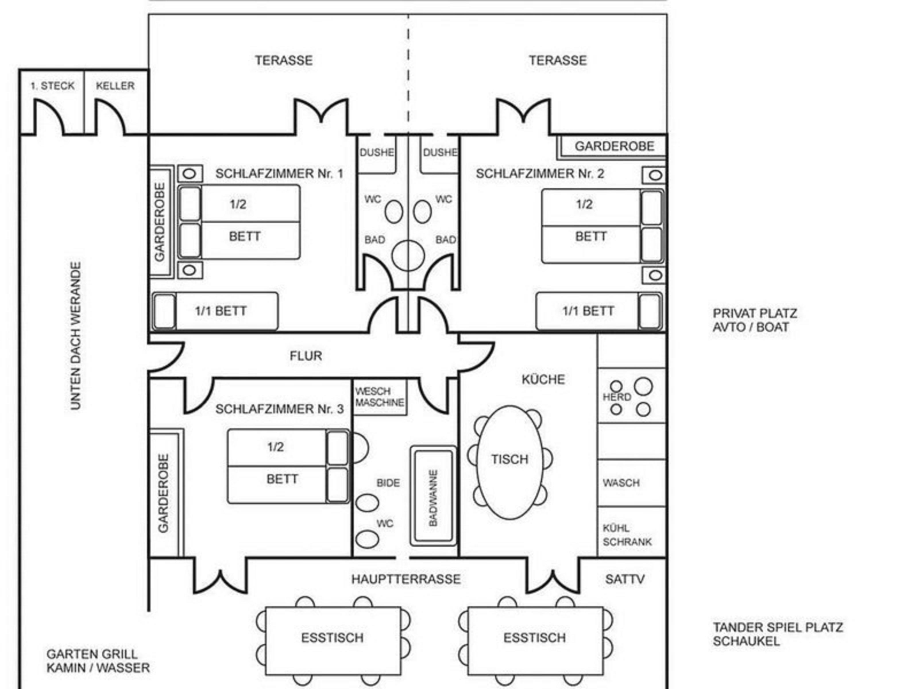
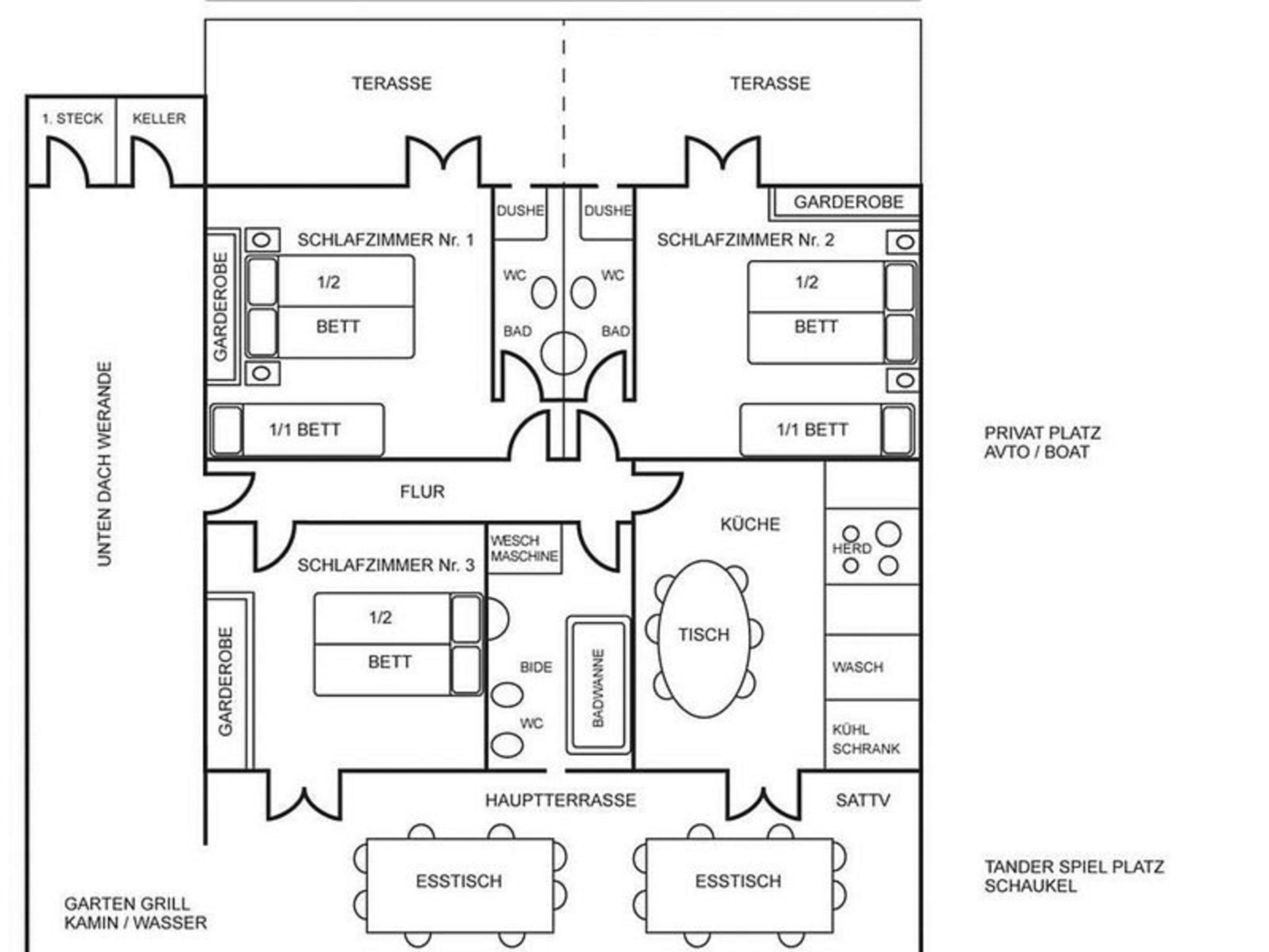
Ferienhaus für 9 Gäste mit 110m² in Rab (299643) (Souterrain und Erdgeschoss)
Wir betonen, dass Sie je nach Verfügbarkeit für bestimmte Termine die Möglichkeit haben, 1 Apartment Daisy zu reservieren . Damit werden Sie die exklusiven Gäste unserer Unterkunft.
Die Wohnung befindet sich im Ferienhaus , Ferienort Palit am Insel Rab ,
-in einer ausgezeichneten Lage, in der Nähe der attraktiven Stadt Rab, aber gleichzeitig ruhig und zugänglich, in der Nähe des Meeres, des Yachthafens Rab, des Naturparks Komrcar, des Sportzentrums, der Geschäfte, des Fischmarkts, Banken, Post, touristische Dienstleistungen: Restaurants, Cafés, Bars, Pizzeria, alle ca. 200m entfernt. Es befindet sich im Erdgeschoss einer schönen Villa mit ausreichend Platz zum Parken von Autos und Anhängern für Boote, Terrassen und Garten, mit mediterranen Pflanzen und Obstbäumen, ausgestattet mit Tischen, Stühlen, Grill, Schaukeln für Kinder, Dusche Gartenmöbel, Liegestühle, Sonnenschirme. Die Wohnung bietet Platz für bis zu acht Personen, hat eine Fläche von 110 Quadratmetern, unabhängigen Eingang, überdachte Veranda, Flur, 3 Schlafzimmer mit jeweils eigenem Bad, gut ausgestattete Küche, ausgestattet mit einem Herd mit vier Brennern, Elektroherd , Doppelwaschbecken, Waschmaschine, Geschirrspüler, Kühlschrank mit Gefrierfach, Set Töpfe und Besteck, Gläser, Kaffeemaschine, Mikrowelle, Wasserkocher, Wasserkocher, Toaster. Sat TV, WiFi, Klimaanlage.
Alle 3 Schlafzimmer und die Küche haben ihren Ein- und Ausgang zu ihrer Terrasse.
Die Wohnung ist auch für behinderte Menschen, ältere Menschen und große Familien geeignet. Haustiere sind gegen Aufpreis erlaubt.
-in einer ausgezeichneten Lage, in der Nähe der attraktiven Stadt Rab, aber gleichzeitig ruhig und zugänglich, in der Nähe des Meeres, des Yachthafens Rab, des Naturparks Komrcar, des Sportzentrums, der Geschäfte, des Fischmarkts, Banken, Post, touristische Dienstleistungen: Restaurants, Cafés, Bars, Pizzeria, alle ca. 200m entfernt. Es befindet sich im Erdgeschoss einer schönen Villa mit ausreichend Platz zum Parken von Autos und Anhängern für Boote, Terrassen und Garten, mit mediterranen Pflanzen und Obstbäumen, ausgestattet mit Tischen, Stühlen, Grill, Schaukeln für Kinder, Dusche Gartenmöbel, Liegestühle, Sonnenschirme. Die Wohnung bietet Platz für bis zu acht Personen, hat eine Fläche von 110 Quadratmetern, unabhängigen Eingang, überdachte Veranda, Flur, 3 Schlafzimmer mit jeweils eigenem Bad, gut ausgestattete Küche, ausgestattet mit einem Herd mit vier Brennern, Elektroherd , Doppelwaschbecken, Waschmaschine, Geschirrspüler, Kühlschrank mit Gefrierfach, Set Töpfe und Besteck, Gläser, Kaffeemaschine, Mikrowelle, Wasserkocher, Wasserkocher, Toaster. Sat TV, WiFi, Klimaanlage.
Alle 3 Schlafzimmer und die Küche haben ihren Ein- und Ausgang zu ihrer Terrasse.
Die Wohnung ist auch für behinderte Menschen, ältere Menschen und große Familien geeignet. Haustiere sind gegen Aufpreis erlaubt.
Im Preis inbegriffen sind: Endreinigung, Bettwäsche, 2 Handtücher pro Person, Strom, Wasser, 2 Grills auf der Terrasse, Waschmaschine in der Wohnung, mehrere Parkplätze im umzäunten Hof des Hauses, kostenloses WLAN mit unserem Passwort, voll ausgestattete Küchen mit Geschirrspüler, 3 Zimmer mit jeweils eigenem Bad und Klimaanlage, Kurtaxe und Check-in und Check-out der Gäste sowie alle Steuern.
Licens nr.: 93575844628
Afstande fra ferieboligen og placering på kort
- Autobahn 40 km
- By/bymidte 1 km
- Handle ind 1 km
- Hav 1 km
- Lufthavn 53 km
- Strand 1 km
Nærtliggende sommerhuse
Er I flere familier, der gerne vil bo tæt på hinanden kan I søge efter nærtliggende sommerhuseSe nabohuse
Priser og kalender
Kalender
Varighed
Pris
Periode
- Ankomst
- Afrejse
- Varighed
- 1 uge
Personer
Op til 9 personer
Bemærk
Ankomst er ikke valgt.