Fakta om boligen
- 6 personer
- Ingen husdyr
- 3 soveværelser
- 3 badeværelser
Faciliteter
Afstand
-
Lufthavn RJK85,5 km
-
Lufthavn ZAG222 km
Husinfo
-
Antal badeværelser3
-
Antal soveværelser3
-
Antal værelser6
-
Boligareal110 m²
Beskrivelse
Beskrivelsen foreligger desværre ikke på Dansk. Se teksten på Engelsk nedenfor, eller se den maskinoversatte tekst på Dansk.
Enjoy an unforgettable stay in our inviting holiday flat on the idyllic island of Rab, located in the peaceful holiday resort of Palit. With its quiet yet central location in the immediate vicinity of the charming old town, just a few minutes' walk from the sea, Rab marina, Komrcar Nature Park, a sports centre and a variety of shops, exquisite restaurants, cafés and bars, our air-conditioned ground-floor flat promises the perfect mix of adventure and relaxation. Discover the ideal base for anyone who wants to enjoy their holiday to the full.
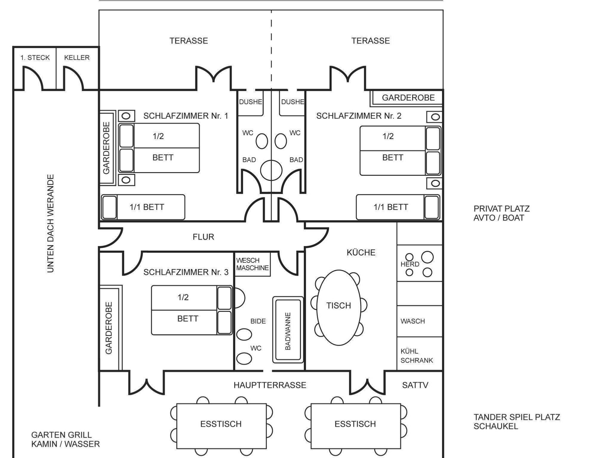
Our spacious 110m² holiday flat offers a private entrance that leads you into the generous living space, which can comfortably accommodate up to eight people. Equipped with three comfortable bedrooms, each with a double bed and some additional sleeping options, as well as a private bathroom with shower and WC in each room, this flat offers maximum living comfort. A fully equipped kitchen, a cosy dining room and an inviting living area with satellite TV and free Wi-Fi complete the offer and make this flat the perfect retreat for families and groups who appreciate comfort and privacy.
Outside, our little paradise invites you to relax and linger. A covered terrace equipped with comfortable garden furniture, two high-quality barbecues for cosy dinners under the stars, a children's playground for our younger guests, parasols, sun loungers and even a refreshing outdoor shower are available. The spacious and carefully fenced garden, planted with Mediterranean plants and fruit trees, as well as practical amenities such as a private car park and a boat mooring promise a comfortable and carefree stay.
Discover the rich history and natural beauty of Rab, starting right on your doorstep. Glistening beaches and the picturesque old town are within walking distance. Rab offers a lively island atmosphere with numerous shops, supermarkets, a sports centre, boat and bike rentals, banks, post offices and a diverse selection of restaurants and bars. Whether you want to relax in the Komrcar town park or explore the island on a taxi boat tour, everyone will find their own adventure here.
Our accessible flat in Palit is the perfect choice for those looking for a relaxing yet exciting holiday in one of the most beautiful corners of Croatia. The comprehensive amenities of our flat and the charming surroundings on Rab invite you to enjoy the "happy island" to the fullest. Don't miss the opportunity to experience a truly unforgettable holiday. We look forward to welcoming you as our guests soon and showing you why our flat is such a favourite with our visitors.
Basic information
- Pets allowed: 5
- Type of property: holiday apartment
- is located in: Residence
- type of apartment: basement
- type of building: Detached house
- Floor on which the object can be found: Ground floor
- Total number of floors in the building above the ground floor: 1
- Year of the last complete renovation : 2020
- not observable from the street
- Owner lives on the property
- meters above sea level: 5
- Number of bedrooms: 3
- Number of bathrooms: 3
Top features
- WiFi
- air conditioning: Everywhere
- heating: no
- underfloor heating: no
- balcony
- terrace
- garden: For sole use
- completely enclosed (by wall, fence or hedge)
- dog-proof by a fence (completely fenced in)
- fence height at the lowest point: 120 cm
- Total of private car parking spaces: 8
- ? of which garage spaces: None
- ? of which carport spaces: 2
- ? of which private outdoor parking spaces: 6
- distance to public parking: 300 m
- distance to public multi-storey car park: 1,5 km
Sleeping
bedroom 10
- double bed (1.80 m width)
- child's bed/ baby's cot
bedroom 2
- double bed (1.80 m width)
- double sofa bed for 2 people
- child's bed/ baby's cot
bedroom 6
- double bed (1.80 m width)
- single bed
Bathroom
bathroom 10
- shower
- toilet
- hair dryer
bathroom 2
- shower
- toilet
- bidet
- hair dryer
bathroom 6
- shower
- toilet
- hair dryer
Cooking/Living
- coffee machine: filter coffee machine
- fridge/freezer: freezing compartment, deep freezer, fridge
- stove: ceramic hob, gas hob, stove
- kitchen hood
- oven
- Mini oven
- toaster
- microwave
- Food steamer
- electric kettle
- dishwasher
- dishtowels
- size of kitchen: 20 m²
- number of dining tables: 9
- number of seats: 10
- number of living rooms: 0
- living room is dimmable
- stove
Entertainment
- TV: TV, satellite TV
- smart tv
- games console
- music system
- radio
- CD player
For children
- high chair
- children's crockery and cutlery
- socket protection
- party games for children
- playground in the garden
Utility
- washing machine: For sole use in the object
- Clothes dryer: For communal use in the building
- clothes drying rack
- iron
- vaccum cleaner
- cleaning products
- fan: 1
- ceiling fan
- smoke alarm
- carbon monoxide alarm
- first aid kit
Accessibility
- ramp to front entrance
- stepless entrance to holiday home
- extra-wide doors (at least 80 cm)
- threshold-free accommodation
- lower washbasin
- shower stool
- walk-in shower
- shower with grab rails
- bathtub with grab rails
- toilet with grab rails
- higher toilet
- tactile aid/braille signage
Sustainability
- Waste recycling
- Bio garbage available
- glass recycling available
- paper recycling available
- plastic recycling available
- Water saving appliances
- water-saving taps (everywhere)
- water-saving shower
- water-saving toilet
- House Insulation
- insulated roof
- insulated facade
Outside area
- conservatory
- veranda
- roof terrace
- outdoor furniture
- grill/barbecue: Gas grill
- outside shower
- covered bicycle parking
Surroundings
- view: garden, forrest, lawn
- Nearest town centre: 250 m
- Grocery store: 200 m
- going out: 300 m
- restaurant: 100 m
- train station: 110,0 km
- airport: 70,0 km
- motorway: 45,0 km
- port: 300 m
- distance public transport: 200 m
- beach: 600 m
- distance to the dog beach: 800 m
- shingle beach: 1,0 km
- grass beach: 1,0 km
- concrete beach: 600 m
- sandy beach: 600 m
- water (sea, lake, etc.): 300 m
- sea: 300 m
- lake: 300 m
- water sports: 700 m
- moorage: 800 m
- angling spot: 500 m
- playground: 500 m
- public swimming pool: 899 m
- bicycle hire: 150 m
- hiking trail: 200 m
- riding facility: 2,0 km
Distinctive features
- farm house holiday
- finca
- Suitable for fishing
- farmhouse
- exceptional houses
Type of building: Detached house.Owner lives on the property.
Our spacious 110m² holiday flat offers a private entrance that leads you into the generous living space, which can comfortably accommodate up to eight people. Equipped with three comfortable bedrooms, each with a double bed and some additional sleeping options, as well as a private bathroom with shower and WC in each room, this flat offers maximum living comfort. A fully equipped kitchen, a cosy dining room and an inviting living area with satellite TV and free Wi-Fi complete the offer and make this flat the perfect retreat for families and groups who appreciate comfort and privacy.
Outside, our little paradise invites you to relax and linger. A covered terrace equipped with comfortable garden furniture, two high-quality barbecues for cosy dinners under the stars, a children's playground for our younger guests, parasols, sun loungers and even a refreshing outdoor shower are available. The spacious and carefully fenced garden, planted with Mediterranean plants and fruit trees, as well as practical amenities such as a private car park and a boat mooring promise a comfortable and carefree stay.
Discover the rich history and natural beauty of Rab, starting right on your doorstep. Glistening beaches and the picturesque old town are within walking distance. Rab offers a lively island atmosphere with numerous shops, supermarkets, a sports centre, boat and bike rentals, banks, post offices and a diverse selection of restaurants and bars. Whether you want to relax in the Komrcar town park or explore the island on a taxi boat tour, everyone will find their own adventure here.
Our accessible flat in Palit is the perfect choice for those looking for a relaxing yet exciting holiday in one of the most beautiful corners of Croatia. The comprehensive amenities of our flat and the charming surroundings on Rab invite you to enjoy the "happy island" to the fullest. Don't miss the opportunity to experience a truly unforgettable holiday. We look forward to welcoming you as our guests soon and showing you why our flat is such a favourite with our visitors.
Basic information
- Pets allowed: 5
- Type of property: holiday apartment
- is located in: Residence
- type of apartment: basement
- type of building: Detached house
- Floor on which the object can be found: Ground floor
- Total number of floors in the building above the ground floor: 1
- Year of the last complete renovation : 2020
- not observable from the street
- Owner lives on the property
- meters above sea level: 5
- Number of bedrooms: 3
- Number of bathrooms: 3
Top features
- WiFi
- air conditioning: Everywhere
- heating: no
- underfloor heating: no
- balcony
- terrace
- garden: For sole use
- completely enclosed (by wall, fence or hedge)
- dog-proof by a fence (completely fenced in)
- fence height at the lowest point: 120 cm
- Total of private car parking spaces: 8
- ? of which garage spaces: None
- ? of which carport spaces: 2
- ? of which private outdoor parking spaces: 6
- distance to public parking: 300 m
- distance to public multi-storey car park: 1,5 km
Sleeping
bedroom 10
- double bed (1.80 m width)
- child's bed/ baby's cot
bedroom 2
- double bed (1.80 m width)
- double sofa bed for 2 people
- child's bed/ baby's cot
bedroom 6
- double bed (1.80 m width)
- single bed
Bathroom
bathroom 10
- shower
- toilet
- hair dryer
bathroom 2
- shower
- toilet
- bidet
- hair dryer
bathroom 6
- shower
- toilet
- hair dryer
Cooking/Living
- coffee machine: filter coffee machine
- fridge/freezer: freezing compartment, deep freezer, fridge
- stove: ceramic hob, gas hob, stove
- kitchen hood
- oven
- Mini oven
- toaster
- microwave
- Food steamer
- electric kettle
- dishwasher
- dishtowels
- size of kitchen: 20 m²
- number of dining tables: 9
- number of seats: 10
- number of living rooms: 0
- living room is dimmable
- stove
Entertainment
- TV: TV, satellite TV
- smart tv
- games console
- music system
- radio
- CD player
For children
- high chair
- children's crockery and cutlery
- socket protection
- party games for children
- playground in the garden
Utility
- washing machine: For sole use in the object
- Clothes dryer: For communal use in the building
- clothes drying rack
- iron
- vaccum cleaner
- cleaning products
- fan: 1
- ceiling fan
- smoke alarm
- carbon monoxide alarm
- first aid kit
Accessibility
- ramp to front entrance
- stepless entrance to holiday home
- extra-wide doors (at least 80 cm)
- threshold-free accommodation
- lower washbasin
- shower stool
- walk-in shower
- shower with grab rails
- bathtub with grab rails
- toilet with grab rails
- higher toilet
- tactile aid/braille signage
Sustainability
- Waste recycling
- Bio garbage available
- glass recycling available
- paper recycling available
- plastic recycling available
- Water saving appliances
- water-saving taps (everywhere)
- water-saving shower
- water-saving toilet
- House Insulation
- insulated roof
- insulated facade
Outside area
- conservatory
- veranda
- roof terrace
- outdoor furniture
- grill/barbecue: Gas grill
- outside shower
- covered bicycle parking
Surroundings
- view: garden, forrest, lawn
- Nearest town centre: 250 m
- Grocery store: 200 m
- going out: 300 m
- restaurant: 100 m
- train station: 110,0 km
- airport: 70,0 km
- motorway: 45,0 km
- port: 300 m
- distance public transport: 200 m
- beach: 600 m
- distance to the dog beach: 800 m
- shingle beach: 1,0 km
- grass beach: 1,0 km
- concrete beach: 600 m
- sandy beach: 600 m
- water (sea, lake, etc.): 300 m
- sea: 300 m
- lake: 300 m
- water sports: 700 m
- moorage: 800 m
- angling spot: 500 m
- playground: 500 m
- public swimming pool: 899 m
- bicycle hire: 150 m
- hiking trail: 200 m
- riding facility: 2,0 km
Distinctive features
- farm house holiday
- finca
- Suitable for fishing
- farmhouse
- exceptional houses
Type of building: Detached house.Owner lives on the property.
Licens nr.: 93575844628
Afstande fra ferieboligen og placering på kort
- Lufthavn RJK 85,5 km
- Lufthavn ZAG 222 km
Nærtliggende sommerhuse
Er I flere familier, der gerne vil bo tæt på hinanden kan I søge efter nærtliggende sommerhuseSe nabohuse
Vores gæstevurderinger Eksterne vurderinger
Priser og kalender
Kalender
Varighed
Pris
Periode
- Ankomst
- Afrejse
- Varighed
- 1 uge
Personer
Op til 6 personer
Bemærk
Ankomst er ikke valgt.