Fakta om boligen
- 6 personer
- 1 husdyr
- Rygning ikke tilladt
- 3 soveværelser
- 2 badeværelser
- Vand 150
- Indkøb 1000
Faciliteter
Afstand
-
Afstand strand 100-500m
-
Autobahn45 km
-
Bar/natteliv750 m
-
Busstoppested1 km
-
Bymidte / bymidte1 km
-
Færge30 km
-
Indkøbsfaciliteter1 km
-
Lufthavn130 km
-
Læge1 km
-
Restaurant750 m
-
Strand150 m
-
Togstation1 km
-
Vand150 m
Bad
-
Bruser
-
Hårtørrer
Generel
-
Dyr er tilladt
-
Ikke-rygere
-
Opvarmet
-
Røgalarm
-
WLAN
Grundlæggende
-
Køkkener1
-
Stue1
-
Størrelse85 m²
Kæledyr
-
1 husdyr tilladt
Køkken
-
Kaffemaskine
-
Køkken
-
Køleskab
-
Mikroovn
-
Opvaskemaskine
-
Ovn
-
Tekøkken/blok
-
Toaster
-
Vandvarmer
Målgruppe
-
Familien
Service
-
Vaskemaskine
Stue/soveplads
-
Dobbeltseng
-
Enkeltseng
-
Høj stol
-
Pejs/brændovn
-
TV
Udendørs
-
Gratis parkering
-
Have/plæne
-
Havestole/liggestole
-
Opbevaringsrum
-
Parkering ved objektet
Wellness
-
Sauna
-
Spa
Beskrivelse
Beskrivelsen foreligger desværre ikke på Dansk. Se teksten på Tysk nedenfor, eller se den maskinoversatte tekst på Dansk.
Ferienhaus für 6 Gäste mit 85m² in Baabe (245513) (Erdgeschoss und 1. Stock)
Herzlich willkommen in unserem Ferienhaus
Herzlich willkommen in dem Ferienhaus Fischerwiege
Dieses exklusive Ferienhaus befindet sich in Baabe.
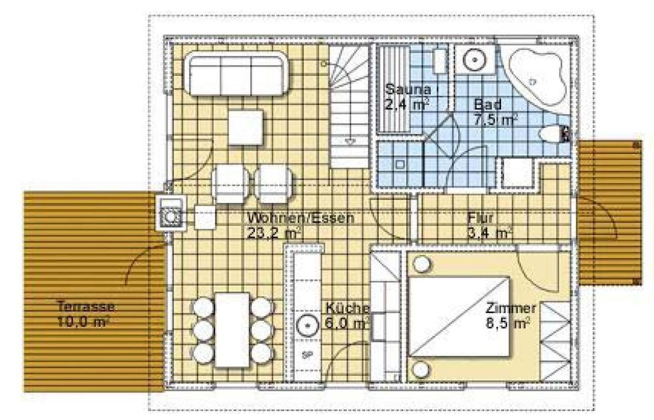
Der großzügige Wohnbereich mit Kamin im Erdgeschoss lädt zu gemütlichen Stunden ein.
Hinweise zu weiteren Kosten und Gebühren:
Ein Parkplatz in der Nähe des Hauses steht kostenlos zur Verfügung.
Die Kaution wird im Voraus fällig und muss mit der Miete überwiesen werden. Über Silvester ist die Kaution höher.
Ein Hund gegen Aufpreis buchbar. Weitere auf Anfrage.
Kosten für Strom (0,55 EUR pro kWh), Gas (1,35 EUR pro Kubikmeter) und Wasser (6,50 EUR pro Kubikmeter) werden nach Verbrauch abgerechnet (Preise ohne Gewähr) und mit der bezahlten Sicherheitsleistung verrechnet.
Handtücher und Bettwäsche können (kostenpflichtig) bei unserem Hausverwalter bestellt werden.
Die Kurabgabe wird vor Anreise fällig.
Sollte nach erfolgter Buchung und durch Beschluss des Landes ein Gesundheitszeugnis o.ä. benötigt werden, so muss der Mieter dieses Attest auf eigene Kosten besorgen und auf Wunsch der Behörden vorlegen.
Außerdem befindet sich im Wohnbereich ein geräumiger Esstisch sowie eine gut ausgestattete Küche, die das Herz jedes Hobbykochs höherschlagen lässt, hier wird das Kochen zu einem geselligen Ereignis.
Vom Wohnbereich gelangen Sie direkt auf die großzügige Terrasse, die sich perfekt für entspannte Stunden unter freiem Himmel eignet.
Das Highlight vom Erdgeschoss ist das Wellnessbad ausgestattet mit Sauna, Whirlpool und separater Dusche. Hier können Sie nach einem aktiven Tag die Seele baumeln lassen und Entspannung genießen.
Durch den Wohnbereich gelangen Sie in das Obergeschoss.
Im Obergeschoss befinden sich die beiden weiteren Schlafzimmer und das zweite Badezimmer mit Dusche.
Die offene Galerie ist eine kleine Wohlfühloase, ideal für gemütliche Lesestunden.
Damit Sie auch im Urlaub vernetzt bleiben können, bietet das Ferienhaus modernen Komfort mit einem WLAN-Glasfaseranschluss.
Erleben Sie unvergessliche Tage in diesem schönen Feriendomizil.
Dieses exklusive Ferienhaus befindet sich in Baabe.
Der großzügige Wohnbereich mit Kamin im Erdgeschoss lädt zu gemütlichen Stunden ein.
Hinweise zu weiteren Kosten und Gebühren:
Ein Parkplatz in der Nähe des Hauses steht kostenlos zur Verfügung.
Die Kaution wird im Voraus fällig und muss mit der Miete überwiesen werden. Über Silvester ist die Kaution höher.
Ein Hund gegen Aufpreis buchbar. Weitere auf Anfrage.
Kosten für Strom (0,55 EUR pro kWh), Gas (1,35 EUR pro Kubikmeter) und Wasser (6,50 EUR pro Kubikmeter) werden nach Verbrauch abgerechnet (Preise ohne Gewähr) und mit der bezahlten Sicherheitsleistung verrechnet.
Handtücher und Bettwäsche können (kostenpflichtig) bei unserem Hausverwalter bestellt werden.
Die Kurabgabe wird vor Anreise fällig.
Sollte nach erfolgter Buchung und durch Beschluss des Landes ein Gesundheitszeugnis o.ä. benötigt werden, so muss der Mieter dieses Attest auf eigene Kosten besorgen und auf Wunsch der Behörden vorlegen.
Außerdem befindet sich im Wohnbereich ein geräumiger Esstisch sowie eine gut ausgestattete Küche, die das Herz jedes Hobbykochs höherschlagen lässt, hier wird das Kochen zu einem geselligen Ereignis.
Vom Wohnbereich gelangen Sie direkt auf die großzügige Terrasse, die sich perfekt für entspannte Stunden unter freiem Himmel eignet.
Das Highlight vom Erdgeschoss ist das Wellnessbad ausgestattet mit Sauna, Whirlpool und separater Dusche. Hier können Sie nach einem aktiven Tag die Seele baumeln lassen und Entspannung genießen.
Durch den Wohnbereich gelangen Sie in das Obergeschoss.
Im Obergeschoss befinden sich die beiden weiteren Schlafzimmer und das zweite Badezimmer mit Dusche.
Die offene Galerie ist eine kleine Wohlfühloase, ideal für gemütliche Lesestunden.
Damit Sie auch im Urlaub vernetzt bleiben können, bietet das Ferienhaus modernen Komfort mit einem WLAN-Glasfaseranschluss.
Erleben Sie unvergessliche Tage in diesem schönen Feriendomizil.
Hinweise zu weiteren Kosten und Gebühren:
150,- € Sicherheitsleistung wird im Voraus fällig und muss mit der Miete überwiesen werden (über Silvester 200,- €).
Kosten für Strom (0,55 EUR pro kWh), Gas (1,35 EUR pro Kubikmeter) und Wasser (6,50 EUR pro Kubikmeter) werden nach Verbrauch abgerechnet (Preise ohne Gewähr) und mit der bezahlten Sicherheitsleistung verrechnet.
Handtücher und Bettwäsche können (kostenpflichtig) bestellt werden.
Die Kurabgabe wird vor Anreise fällig.
Ein Hund gegen Aufpreis buchbar. Weitere auf Anfrage.
Sollte nach erfolgter Buchung und durch Beschluss des Landes ein Gesundheitszeugnis o.ä. benötigt werden, so muss der Mieter dieses Attest auf eigene Kosten besorgen und auf Wunsch der Behörden vorlegen.
Ein Parkplatz in der Nähe des Hauses steht kostenlos zur Verfügung.
150,- € Sicherheitsleistung wird im Voraus fällig und muss mit der Miete überwiesen werden (über Silvester 200,- €).
Kosten für Strom (0,55 EUR pro kWh), Gas (1,35 EUR pro Kubikmeter) und Wasser (6,50 EUR pro Kubikmeter) werden nach Verbrauch abgerechnet (Preise ohne Gewähr) und mit der bezahlten Sicherheitsleistung verrechnet.
Handtücher und Bettwäsche können (kostenpflichtig) bestellt werden.
Die Kurabgabe wird vor Anreise fällig.
Ein Hund gegen Aufpreis buchbar. Weitere auf Anfrage.
Sollte nach erfolgter Buchung und durch Beschluss des Landes ein Gesundheitszeugnis o.ä. benötigt werden, so muss der Mieter dieses Attest auf eigene Kosten besorgen und auf Wunsch der Behörden vorlegen.
Ein Parkplatz in der Nähe des Hauses steht kostenlos zur Verfügung.
Afstande fra ferieboligen og placering på kort
- Autobahn 45 km
- Bar/natteliv 750 m
- Busstoppested 1 km
- Bymidte / bymidte 1 km
- Færge 30 km
- Indkøbsfaciliteter 1 km
- Lufthavn 130 km
- Læge 1 km
- Restaurant 750 m
- Strand 150 m
- Togstation 1 km
- Vand 150 m
Nærtliggende sommerhuse
Er I flere familier, der gerne vil bo tæt på hinanden kan I søge efter nærtliggende sommerhuseSe nabohuse
Priser og kalender
Kalender
Varighed
Pris
Periode
- Ankomst
- Afrejse
- Varighed
- 1 uge
Personer
Op til 6 personer
Bemærk
Ankomst er ikke valgt.