Fakta om boligen
- 2 personer
- Ingen husdyr
- Rygning ikke tilladt
- 1 soveværelse
- 1 badeværelse
- Vand 100
- Indkøb 9000
Faciliteter
Afstand
-
Burg - Altstadt9 km
-
FehMare11 km
-
Golf park7 km
-
Kyst/Østersøen100 m
-
Nærmeste togstation15 km
-
Næste badestrand100 m
-
Næste busstoppested1 km
-
Næste indkøbsmulighed9 km
Bad
-
Bruser
Beliggenhed
-
Stueetage
Bo & Sove
-
Stereo/radio
-
WLAN/internet
Generel
-
Ikke-rygere
Generelt udstyr
-
Dyr ikke tilladt
Grundlæggende
-
Stue1
-
Stue soveværelse1
-
Størrelse45 m²
Køkken
-
Kaffemaskine
-
Køleskab
-
Mikroovn
-
Mulighed for fryser
-
Tekøkken/blok
-
Toaster
-
Vandvarmer
Køkkenudstyr
-
Blander
-
Komfur (4 plader)
-
Opvaskemaskine
Service
-
Høj stol
-
Viskestykker inkl.
Stue/soveplads
-
CD afspiller
-
Dobbeltsenge
-
Sofa seng
-
TV med SAT/Kab./DVB-T
Udendørs
-
Grill
-
Have/plæne
Udendørs faciliteter
-
Havestole
-
Ligge
-
Parkeringsplads
-
Plads til sportsudstyr
-
Terrasse
Beskrivelse
Beskrivelsen foreligger desværre ikke på Dansk. Se teksten på Tysk nedenfor, eller se den maskinoversatte tekst på Dansk.
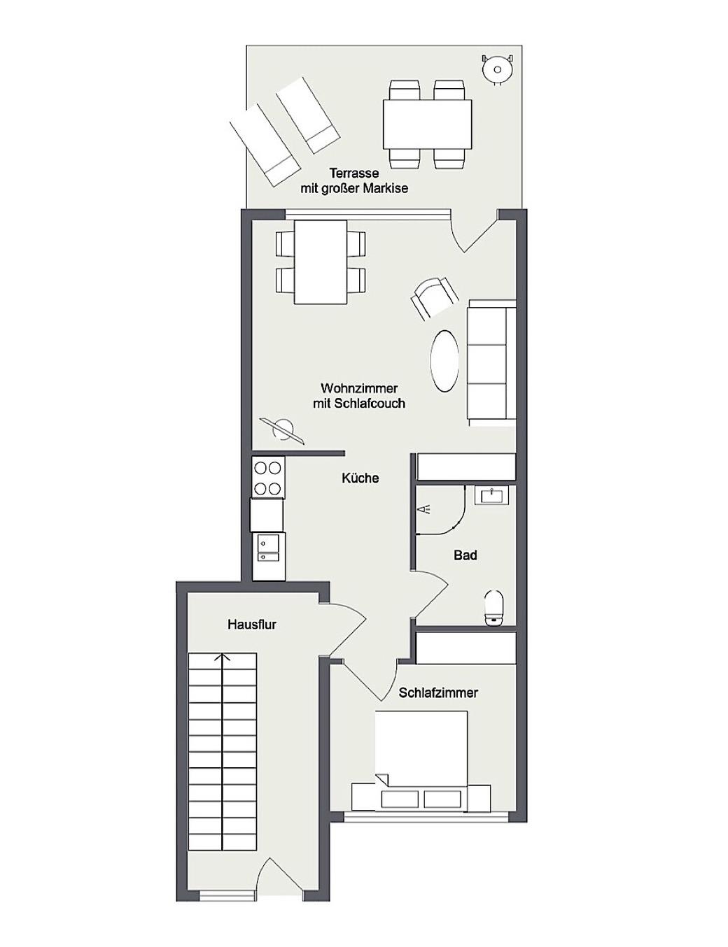
Ferienwohnung/App. für 4 Gäste mit 45m² in Fehmarn OT Gold (109699) (Erdgeschoss)
Kleine, frisch renovierte Ferienwohnung direkt an der Ostsee in Gold auf Fehmarn. Auf der geschützten Terrasse nach Süden lässt sich prima Frühstücken. Der Naturstrand ist nur wenige Meter entfernt. Ideal für Paare, Familien mit Kindern und für Wassersportler. Der Surf- und Kitespot "Gold" liegt direkt vor der Tür.
Die Wohnung "Südwind" befindet sich im Ferienhaus Rücker und liegt sehr ruhig in dem kleinen Ort Gold auf Fehmarn direkt an der Ostsee. Die Wohnung hat eine Größe von 45 qm und eignet sich für maximal 4 Personen. Sie ist unterteilt in einen Wohnraum mit Essbereich und moderner Küchenzeile, einem Schlafzimmer mit Doppelbett und großem Kleiderschrank und einem Duschbad. Eine weitere Schlafmöglichkeit befindet sich in Form einer modernen Schlafcouch im Wohnzimmer. Die Südterrasse ist mit Gartenmöbeln, Liegen und einem Grill ausgestattet.
Im Ort gibt es ein kleines Restaurant und Café, sowie eine Surf- und Segelschule. Im nächsten Dorf gibt es ein tolles Hofcafe, die Inselhauptstadt Burg mit vielen Einkaufsmöglichkeiten ist ca. 9 Kilometer entfernt.
Im Ort gibt es ein kleines Restaurant und Café, sowie eine Surf- und Segelschule. Im nächsten Dorf gibt es ein tolles Hofcafe, die Inselhauptstadt Burg mit vielen Einkaufsmöglichkeiten ist ca. 9 Kilometer entfernt.
Kurtaxe:
01-01-2026 - 14-05-2026: 1,50 € pro Erwachsener und Tag
15-05-2026 - 14-09-2026: 2,30 € pro Erwachsener und Tag
15-09-2026 - 31-12-2026: 1,50 € pro Erwachsener und Tag
01-01-2026 - 14-05-2026: 1,50 € pro Erwachsener und Tag
15-05-2026 - 14-09-2026: 2,30 € pro Erwachsener und Tag
15-09-2026 - 31-12-2026: 1,50 € pro Erwachsener und Tag
Afstande fra ferieboligen og placering på kort
- Burg - Altstadt 9 km
- FehMare 11 km
- Golf park 7 km
- Kyst/Østersøen 100 m
- Nærmeste togstation 15 km
- Næste badestrand 100 m
- Næste busstoppested 1 km
- Næste indkøbsmulighed 9 km
Nærtliggende sommerhuse
Er I flere familier, der gerne vil bo tæt på hinanden kan I søge efter nærtliggende sommerhuseSe nabohuse
Priser og kalender
Kalender
Varighed
Pris
Periode
- Ankomst
- Afrejse
- Varighed
- 1 uge
Personer
Op til 2 personer
Bemærk
Ankomst er ikke valgt.