Fakta om boligen
- 4 personer
- Ingen husdyr
- Rygning ikke tilladt
- 1 soveværelse
- 0 badeværelser
Faciliteter
Aktivitetsfaciliteter
-
Cykeludlejning
Børnefaciliteter
-
Familievenlig
Indkvartering Faciliteter
-
Ikke-ryger hus
-
Internet i det offentlige område
Omgivende faciliteter
-
Cykelrum
-
Garage
-
Parkeringsplads
Servicefaciliteter
-
Bad/toilet
-
Dobbeltseng
-
Dyr ikke tilladt
-
Håndklæder
-
Ikke-rygere
-
Internet - WiFi
-
Kaffemaskine
-
Køleskab
-
Opvaskemaskine
-
Sengetøj
-
Separat køkken
-
Terrasse
-
Toaster
-
TV
-
WC-toilet
Beskrivelse
Beskrivelsen foreligger desværre ikke på Dansk. Se teksten på Tysk nedenfor, eller se den maskinoversatte tekst på Dansk.
Modul Häuser Maurer, Ferienwohnung zum Schlossblick
Lage & Umgebung
Erleben Sie Ihren Urlaub in unseren neu erbauten Modulhäusern (Tiny) in Neuenhammer. Im Herzen des Zottbachtals im Oberpfälzer Wald und direkt am Glasschleifer Wanderweg gelegen.
Räumlichkeiten & Ausstattung
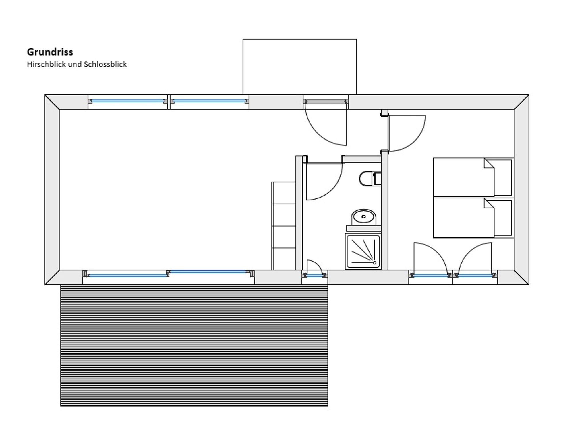
46 qm barrierefreie Ferienwohnung mit Terrasse und großer Wiese.
Räumlichkeiten:
1 großes, helles Schlafzimmer mit einem Doppelbett und großzügigem Schrank. Schlafcouch für weitere 2 Personen im Wohnbereich. Bettwäsche wird gestellt. Auf Anfrage stellen wir auch ein Babyreisebett.
Großzügige Wohn-Ess-Küche mit großem Esstisch für 4 Personen, Zugang zur Terrasse mit Blick auf unser Hirschgehege. Kühlschrank, Spülmaschine, Ceranfeld mit 2 Kochstellen, Filterkaffeemaschine, Wasserkocher, Toaster und reichhaltiges Geschirr. Geschirrtücher werden gestellt.
Terrasse ca. 18 qm zum Relaxen. Gartentisch und Stühle sind vorhanden.
Bad mit großzügiger barrierefreier Dusche, Waschbecken und WC. 1 Satz Handtücher wird gestellt.
Ausstattung
Zentrale Flächenheizung über Wärmepumpe
Internetzugang über WLAN (kostenfrei)
Garderobe mit Schuhbank
Unterstellmöglichkeit für Fahrzeuge
Ski- und Schlitten-Unterbringungsraum
Bei Bedarf Kinderhochstuhl und Wäscheständer
Auf Anfrage können Sie in unserer Gaststätte einkehren
In nächster Nähe
50 m Hirschgehege
100 m Schönwert-Märchenwanderweg
6 km Waldthurn: Marktladen mit Bäckerei, Metzgerei
7 km Pleystein: Supermarkt mit Bäckerei, Metzgerei, Getränkemarkt
12 km Vohenstrauß: mehrere Einkaufsmöglichkeiten
14 km: Waidhaus mit Grenzübergang in die Tschechische Republik
Konditionen
Eine Vorauszahlung von 50 % kann nach Buchung berechnet werden. Die Zahlung erfolgt per Überweisung. Stornierungen bis 14 Tage vor Anreise sind kostenfrei, Stornierungen zwischen 14-7 Tagen vor der Anreise werden mit 50% der Gesamtkosten berechnet, Stornierungen in den 7 Tagen vor der Anreise werden mit 100% der Gesamtkosten berechnet.
Erleben Sie Ihren Urlaub in unseren neu erbauten Modulhäusern (Tiny) in Neuenhammer. Im Herzen des Zottbachtals im Oberpfälzer Wald und direkt am Glasschleifer Wanderweg gelegen.
Räumlichkeiten & Ausstattung
46 qm barrierefreie Ferienwohnung mit Terrasse und großer Wiese.
Räumlichkeiten:
1 großes, helles Schlafzimmer mit einem Doppelbett und großzügigem Schrank. Schlafcouch für weitere 2 Personen im Wohnbereich. Bettwäsche wird gestellt. Auf Anfrage stellen wir auch ein Babyreisebett.
Großzügige Wohn-Ess-Küche mit großem Esstisch für 4 Personen, Zugang zur Terrasse mit Blick auf unser Hirschgehege. Kühlschrank, Spülmaschine, Ceranfeld mit 2 Kochstellen, Filterkaffeemaschine, Wasserkocher, Toaster und reichhaltiges Geschirr. Geschirrtücher werden gestellt.
Terrasse ca. 18 qm zum Relaxen. Gartentisch und Stühle sind vorhanden.
Bad mit großzügiger barrierefreier Dusche, Waschbecken und WC. 1 Satz Handtücher wird gestellt.
Ausstattung
Zentrale Flächenheizung über Wärmepumpe
Internetzugang über WLAN (kostenfrei)
Garderobe mit Schuhbank
Unterstellmöglichkeit für Fahrzeuge
Ski- und Schlitten-Unterbringungsraum
Bei Bedarf Kinderhochstuhl und Wäscheständer
Auf Anfrage können Sie in unserer Gaststätte einkehren
In nächster Nähe
50 m Hirschgehege
100 m Schönwert-Märchenwanderweg
6 km Waldthurn: Marktladen mit Bäckerei, Metzgerei
7 km Pleystein: Supermarkt mit Bäckerei, Metzgerei, Getränkemarkt
12 km Vohenstrauß: mehrere Einkaufsmöglichkeiten
14 km: Waidhaus mit Grenzübergang in die Tschechische Republik
Konditionen
Eine Vorauszahlung von 50 % kann nach Buchung berechnet werden. Die Zahlung erfolgt per Überweisung. Stornierungen bis 14 Tage vor Anreise sind kostenfrei, Stornierungen zwischen 14-7 Tagen vor der Anreise werden mit 50% der Gesamtkosten berechnet, Stornierungen in den 7 Tagen vor der Anreise werden mit 100% der Gesamtkosten berechnet.
46 qm barrierefreie Ferienwohnung mit Terrasse und großer Wiese.
DIe Ferienwohnung verfügt über 1 großes, helles Schlafzimmer mit einem Doppelbett und großzügigem Schrank. Schlafcouch für weitere 2 Personen im Wohnbereich. Bettwäsche wird gestellt. Auf Anfrage stellen wir auch ein Babyreisebett. Großzügige Wohn-Ess-Küche mit großem Esstisch für 4 Personen, Kochfeld mit zwei Kochplatten, Zugang zur Terrasse mit Blick auf unser Hirschgehege. Kühlschrank, Spülmaschine, Ceranfeld mit 2 Kochstellen, Filterkaffeemaschine, Wasserkocher, Toaster und reichhaltiges Geschirr. Geschirrtücher werden gestellt. Terrasse ca. 18 qm zum Relaxen. Gartentisch und Stühle sind vorhanden. Bad mit großzügiger barrierefreier Dusche, Waschbecken und WC. 1 Satz Handtücher wird gestellt.
Konditionen
Anreise von 14:00 Uhr bis 20:00 Uhr.
Abreise bis 10:00 Uhr.
Der Check in ist über einen Code möglich, diesen erhalten Sie vorab per Email.
Haustiere sind nicht erlaubt.
Kostenloses Babybett auf Anfrage möglich.
Bereits im Preis inklusive: Handtücher, Bettwäsche, Endreinigung, WLAN, Parkplatz
DIe Ferienwohnung verfügt über 1 großes, helles Schlafzimmer mit einem Doppelbett und großzügigem Schrank. Schlafcouch für weitere 2 Personen im Wohnbereich. Bettwäsche wird gestellt. Auf Anfrage stellen wir auch ein Babyreisebett. Großzügige Wohn-Ess-Küche mit großem Esstisch für 4 Personen, Kochfeld mit zwei Kochplatten, Zugang zur Terrasse mit Blick auf unser Hirschgehege. Kühlschrank, Spülmaschine, Ceranfeld mit 2 Kochstellen, Filterkaffeemaschine, Wasserkocher, Toaster und reichhaltiges Geschirr. Geschirrtücher werden gestellt. Terrasse ca. 18 qm zum Relaxen. Gartentisch und Stühle sind vorhanden. Bad mit großzügiger barrierefreier Dusche, Waschbecken und WC. 1 Satz Handtücher wird gestellt.
Konditionen
Anreise von 14:00 Uhr bis 20:00 Uhr.
Abreise bis 10:00 Uhr.
Der Check in ist über einen Code möglich, diesen erhalten Sie vorab per Email.
Haustiere sind nicht erlaubt.
Kostenloses Babybett auf Anfrage möglich.
Bereits im Preis inklusive: Handtücher, Bettwäsche, Endreinigung, WLAN, Parkplatz
Afstande fra ferieboligen og placering på kort
Nærtliggende sommerhuse
Er I flere familier, der gerne vil bo tæt på hinanden kan I søge efter nærtliggende sommerhuseSe nabohuse
Priser og kalender
Kalender
Varighed
Personer
Pris
Periode
- Ankomst
- Afrejse
- Varighed
- 1 uge
Personer
Ingen personer er valgt
Bemærk
Ankomst er ikke valgt.
Der er ikke valgt personer.