Fakta om boligen
- 3 personer
- 1 husdyr
- 2 soveværelser
- 1 badeværelse
- Vand 1000
Faciliteter
Afstand
-
Offentlig transport800 m
-
Ski17 km
-
Sø1 km
-
Vand1 km
Husinfo
-
Antal badeværelser1
-
Antal soveværelser2
-
Antal værelser3
-
BBQ
-
Boligareal70 m²
-
Bruser
-
Børnesenge1
-
Certificeret fiskeri
-
DVD
-
Fiskeri
-
Fritliggende
-
Fryser
-
Have
-
Husdyr1
-
Håndklæder gratis
-
Internet
-
Internet (DSL)
-
Internet (ISDN)
-
Køleskab
-
Langrend
-
Legeplads
-
Linnedfri
-
Mikroovn
-
Natur
-
Opvaskemaskine
-
Ovn
-
Parkering overdækket
-
Pejs
-
Radiator
-
Skiområde
-
TV
-
Tv International
-
WLAN
Beskrivelse
Beskrivelsen foreligger desværre ikke på Dansk. Se teksten på Engelsk nedenfor, eller se den maskinoversatte tekst på Dansk.
Escape the stress of everyday life and find peace in our cosy holiday flat, which is quietly located approx. 600m outside Helminghausen. Here, far away from road noise, surrounded by pure nature and only about 1.2 km from the picturesque Diemelsee, we offer you the perfect retreat for 2-3 people. With a separate entrance and your own car park, you can expect a place where privacy and relaxation are paramount.
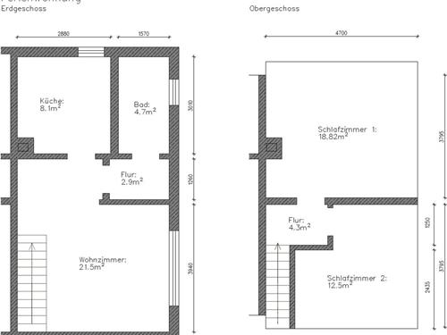
Inside the holiday flat you will find a fully equipped kitchen with cooker, oven, microwave, fridge, freezer and all the utensils you need to prepare delicious meals. The living room is invitingly furnished with a modern sofa, satellite TV, hi-fi system, DVD player and a selection of books, CDs and DVDs. A cosy wood-burning stove makes for pleasant hours. Two bedrooms on the upper floor, each with a double bed, offer comfortable sleeping accommodation and an additional cot or bed can be provided on request. A bathroom with shower, WC and washing facilities completes the interior.
The outdoor area invites you to linger and enjoy the peace and quiet with an adjoining sunbathing lawn, seating, a barbecue and deckchairs. The private car park provides comfort and the proximity to nature offers ideal conditions for relaxing in the open air.
Helminghausen, a charming district of the town of Marsberg, is located in a delightful setting with a wide range of leisure activities. The proximity to Lake Diemelsee enables water sports activities such as boating, surfing and fishing, while the surrounding Hochsauerland region is ideal for hiking, cycling and, in winter, skiing. The village itself, with around 215 inhabitants, offers insights into rural life and is the starting point for exploring the regional sights and the natural beauty of the region.
For anyone looking for a break, our holiday flat offers the perfect combination of comfort, peace and quiet and proximity to nature. Whether you want to actively explore the surrounding area or simply relax and unwind - here you will find the ideal retreat for an unforgettable holiday. We look forward to welcoming you as our guests and making your stay as pleasant as possible!
Basic information
- Pets allowed: 3
- allowed size of dogs: large (more than 60 cm)
- is located in: nothing applicable
- type of building: Multiple-family dwelling
- Total number of floors in the building above the ground floor: 1
- size of property: 400 m²
- detached house
- Owner lives on the property
- Number of bedrooms: 2
- Number of bathrooms: 1
Top features
- WiFi
- heating: Everywhere
- garden: For sole use
- Total of private car parking spaces: 1
- ? of which garage spaces: None
- ? of which carport spaces: None
- ? of which private outdoor parking spaces: 1
Sleeping
bedroom 2
- double bed (1.80 m width)
- bedroom is dimmable
bedroom 4
- double bed (1.80 m width)
- bedroom is dimmable
Bathroom
bathroom 2
- shower
- basin
- toilet
- hair dryer
- daylight
Cooking/Living
- coffee machine: coffee machine
- fridge/freezer: deep freezer, fridge
- stove: electric stove, stove
- kitchen hood
- oven
- toaster
- microwave
- electric kettle
- dishwasher
- dishtowels
- number of dining tables: 1
- number of seats: 3
- number of living rooms: 1
- living room is dimmable
- fireplace
Entertainment
- TV: TV, satellite TV
- DVD player
- music system
- CD player
- party games for adults
For children
- high chair
- party games for children
Utility
- vaccum cleaner
- smoke alarm
Sustainability
- Waste recycling
- Bio garbage available
Outside area
- outdoor furniture
- grill/barbecue: grill/barbecue
Surroundings
- view: garden, forrest, lawn
- directly at the edge of the wood
- Grocery store: 5,0 km
- restaurant: 1,0 km
- train station: 10,0 km
- airport: 70,0 km
- distance public transport: 800 m
- distance to the dog beach: 1,0 km
- water (sea, lake, etc.): 1,0 km
- lake: 1,0 km
- river: 400 m
- water sports: 1,0 km
- angling spot: 1,2 km
- playground: 600 m
- bicycle hire: 1 m
- hiking trail: 100 m
- ski vacation
- distance to ski slope: 17,0 km
- distance to ski school: 17,0 km
- distance to cross-country skiing: 17,0 km
- mountain rail: 17,0 km
Distinctive features
- Suitable for fishing
Type of building: Multiple-family dwelling. size of property: 400m².
Inside the holiday flat you will find a fully equipped kitchen with cooker, oven, microwave, fridge, freezer and all the utensils you need to prepare delicious meals. The living room is invitingly furnished with a modern sofa, satellite TV, hi-fi system, DVD player and a selection of books, CDs and DVDs. A cosy wood-burning stove makes for pleasant hours. Two bedrooms on the upper floor, each with a double bed, offer comfortable sleeping accommodation and an additional cot or bed can be provided on request. A bathroom with shower, WC and washing facilities completes the interior.
The outdoor area invites you to linger and enjoy the peace and quiet with an adjoining sunbathing lawn, seating, a barbecue and deckchairs. The private car park provides comfort and the proximity to nature offers ideal conditions for relaxing in the open air.
Helminghausen, a charming district of the town of Marsberg, is located in a delightful setting with a wide range of leisure activities. The proximity to Lake Diemelsee enables water sports activities such as boating, surfing and fishing, while the surrounding Hochsauerland region is ideal for hiking, cycling and, in winter, skiing. The village itself, with around 215 inhabitants, offers insights into rural life and is the starting point for exploring the regional sights and the natural beauty of the region.
For anyone looking for a break, our holiday flat offers the perfect combination of comfort, peace and quiet and proximity to nature. Whether you want to actively explore the surrounding area or simply relax and unwind - here you will find the ideal retreat for an unforgettable holiday. We look forward to welcoming you as our guests and making your stay as pleasant as possible!
Basic information
- Pets allowed: 3
- allowed size of dogs: large (more than 60 cm)
- is located in: nothing applicable
- type of building: Multiple-family dwelling
- Total number of floors in the building above the ground floor: 1
- size of property: 400 m²
- detached house
- Owner lives on the property
- Number of bedrooms: 2
- Number of bathrooms: 1
Top features
- WiFi
- heating: Everywhere
- garden: For sole use
- Total of private car parking spaces: 1
- ? of which garage spaces: None
- ? of which carport spaces: None
- ? of which private outdoor parking spaces: 1
Sleeping
bedroom 2
- double bed (1.80 m width)
- bedroom is dimmable
bedroom 4
- double bed (1.80 m width)
- bedroom is dimmable
Bathroom
bathroom 2
- shower
- basin
- toilet
- hair dryer
- daylight
Cooking/Living
- coffee machine: coffee machine
- fridge/freezer: deep freezer, fridge
- stove: electric stove, stove
- kitchen hood
- oven
- toaster
- microwave
- electric kettle
- dishwasher
- dishtowels
- number of dining tables: 1
- number of seats: 3
- number of living rooms: 1
- living room is dimmable
- fireplace
Entertainment
- TV: TV, satellite TV
- DVD player
- music system
- CD player
- party games for adults
For children
- high chair
- party games for children
Utility
- vaccum cleaner
- smoke alarm
Sustainability
- Waste recycling
- Bio garbage available
Outside area
- outdoor furniture
- grill/barbecue: grill/barbecue
Surroundings
- view: garden, forrest, lawn
- directly at the edge of the wood
- Grocery store: 5,0 km
- restaurant: 1,0 km
- train station: 10,0 km
- airport: 70,0 km
- distance public transport: 800 m
- distance to the dog beach: 1,0 km
- water (sea, lake, etc.): 1,0 km
- lake: 1,0 km
- river: 400 m
- water sports: 1,0 km
- angling spot: 1,2 km
- playground: 600 m
- bicycle hire: 1 m
- hiking trail: 100 m
- ski vacation
- distance to ski slope: 17,0 km
- distance to ski school: 17,0 km
- distance to cross-country skiing: 17,0 km
- mountain rail: 17,0 km
Distinctive features
- Suitable for fishing
Type of building: Multiple-family dwelling. size of property: 400m².
Afstande fra ferieboligen og placering på kort
- Offentlig transport 800 m
- Ski 17 km
- Sø 1 km
- Vand 1 km
Nærtliggende sommerhuse
Er I flere familier, der gerne vil bo tæt på hinanden kan I søge efter nærtliggende sommerhuseSe nabohuse
Vores gæstevurderinger Eksterne vurderinger
Priser og kalender
Kalender
Ankomst
-
januar 2026
ma ti on to fr lø sø 1 1 2 3 4 2 5 6 7 8 9 10 11 3 12 13 14 15 16 17 18 4 19 20 21 22 23 24 25 5 26 27 28 29 30 31 6 -
februar 2026
ma ti on to fr lø sø 5 1 6 2 3 4 5 6 7 8 7 9 10 11 12 13 14 15 8 16 17 18 19 20 21 22 9 23 24 25 26 27 28 10
Se om emnet er ledigt på den valgte dato
Ledig
Optaget
Ankomst mulig
Varighed
Pris
Periode
- Ankomst
- Afrejse
- Varighed
Personer
Op til 3 personer
Bemærk
Ankomst er ikke valgt.
Varighed er ikke valgt.