Fakta om boligen
- 6 personer
- 7 husdyr
- 2 soveværelser
- 1 badeværelse
- Indkøb 4000
Faciliteter
Afstand
-
Banegård5 km
-
Busstop1 km
-
Diverse30 km
-
Doktor3 km
-
Lufthavn30 km
-
Restauranter500 m
-
Shopping4 km
-
Skilift10 km
Andre
-
Ladestander til elbiler
-
Liggestole
-
Linnedpakke mod betaling
-
Radiator
-
Strygebræt
-
Strygejern
-
Terrasse
-
Tørreskab
Attraktioner
-
Subtropisk swimmingpool
Byggestatus
-
Top placering
Børn
-
Barneseng
-
Trappeport
Generel Information
-
Boligareal75 m²
-
WiFi
Handicap - Mål
-
Frihøjde under håndvasken >= 70 cm
Hjemmesikkerhed
-
Førstehjælpskasse
Køkkenudstyr
-
Kogeplade
-
Komfur
-
Køleskab
-
Opvaskemaskine
-
Ovn
Offentlige rum
-
Lawn
Parkfaciliteter
-
Førstehjælp
-
Grillcenter
-
Internetadgang
Rundt om huset
-
Cykler til rådighed
-
Have
-
Havemøbler
-
Haveskur
-
Internetadgang ISDN
-
Parkering
-
Sun loungers
-
Swimming pool
Sanitet / Vask
-
Bruser
-
Håndvask
-
Tørretumbler
-
Varmt vand
-
Vaskemaskine
Type
-
Feriebolig
Værelsesudstyr
-
Brandalarm
-
Garderobe
-
Komfur
-
Radio
-
Sengetøj
-
Sikkerheds boks
-
Spejl
-
Støvsuger
-
Telefon
-
TV
Beskrivelse
Feriegård Hohe Drei Zinnen
Bolig:
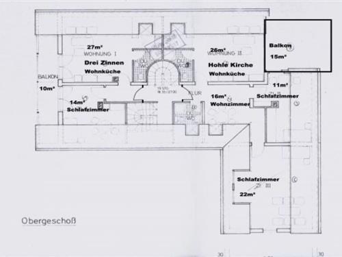
Gratis: Wi-Fi, opladning til elbiler og elcykler, sauna, 5 økologiske æg pr. dag/uge, bål med pindebrød og popcorn, grillaften, 2 pizzaer pr. person (i brændeovnen), leje af 2 mountainbikes og 1 elcykel, brød- og drikkevareservice, hjemmelavede kager lavet af vores egne økologiske, gamle kornsorter om søndagen og på helligdage, seng, håndklæder, bruser, sauna og poolhåndklæder, fuldt udstyret køkken, olier og krydderier... Ny *** Brændeovn. Vi er glade for at kunne invitere dig til en gratis pizza – spis alt hvad du kan – 2 pizzaer pr. person. Alle kan rulle deres egen pizza ud og lægge den ovenpå. (Vi sørger for Pizza Margarita: dej, krydderier, tomatsauce og ost). Den bages derefter i vores brændeovn – og du kan fejre i pavillonen uanset vejret. På vores bagedag om fredagen bager vi pizza, brød, kager og kød i brændeovnen. Pavillonen fungerer som et fællesrum med integreret bålplads og grillplads. (Også om vinteren). Komplet infinity-poolsæt med tag, swimmingpool på 3,00 x 6,00 x 1,50 m og modstrømssystem. En lille børnezoo, hvor vores små gæster kan kæle (vores kaniner, Max & Moritz). Vores egne kyllinger - her kan vores gæster samle deres egne økologiske æg direkte fra reden. Brødbagning med vores gæster - med vores egne gamle kornsorter og surdej. **** Ferielejlighed "Hohle Kirche" med plads til 2-8 personer. Plus ekstra sengepladser. 95 m², 2 soveværelser med 6 senge i massivt træ, gulvvarme, 2 pejse, stort køkken-alrum, stue, stor balkon, 2 badeværelser. Kan lejes som gruppe med vores anden lejlighed for op til 16 gæster.
Layout:
På 1. etage: (Køkken(kakkelovn, kogeplade, komfur, ovn, opvaskemaskine , køleskab, varme), soveværelse(, , dobbeltseng, Fjernsyn, Fjernsyn, radio, tremmeseng, varme), soveværelse(, , dobbeltseng, dobbeltsovesofa, Fjernsyn, Fjernsyn, radio, tremmeseng, varme), badeværelse(, toilet, bruser, håndvask, varme)) , , , , , loungerum(sauna), Internetadgang, Internetadgang, Førstehjælp, tørretumbler, vaskemaskine, balkon(balkon), varme, have(Grill center, Subtropisk badeland, Græsplæne, havemøbler, solstole, swimmingpool, Haveskur), parkering, liggestole(havemøbler), cykler til rådighed, trappegitter, strygebræt, strygejern, tørreskab, Ladestation til el-biler, Vaskeripakke mod et gebyr, telefon
Bolig:
Gratis: Wi-Fi, opladning til elbiler og elcykler, sauna, 5 økologiske æg pr. dag/uge, bål med pindebrød og popcorn, grillaften, 2 pizzaer pr. person (i brændeovnen), leje af 2 mountainbikes og 1 elcykel, brød- og drikkevareservice, hjemmelavede kager lavet af vores egne økologiske, gamle kornsorter om søndagen og på helligdage, seng, håndklæder, bruser, sauna og poolhåndklæder, fuldt udstyret køkken, olier og krydderier... Ny *** Brændeovn. Vi er glade for at kunne invitere dig til en gratis pizza – spis alt hvad du kan – 2 pizzaer pr. person. Alle kan rulle deres egen pizza ud og lægge den ovenpå. (Vi sørger for Pizza Margarita: dej, krydderier, tomatsauce og ost). Den bages derefter i vores brændeovn – og du kan fejre i pavillonen uanset vejret. På vores bagedag om fredagen bager vi pizza, brød, kager og kød i brændeovnen. Pavillonen fungerer som et fællesrum med integreret bålplads og grillplads. (Også om vinteren). Komplet infinity-poolsæt med tag, swimmingpool på 3,00 x 6,00 x 1,50 m og modstrømssystem. En lille børnezoo, hvor vores små gæster kan kæle (vores kaniner, Max & Moritz). Vores egne kyllinger - her kan vores gæster samle deres egne økologiske æg direkte fra reden. Brødbagning med vores gæster - med vores egne gamle kornsorter og surdej. **** Ferielejlighed "Hohle Kirche" med plads til 2-8 personer. Plus ekstra sengepladser. 95 m², 2 soveværelser med 6 senge i massivt træ, gulvvarme, 2 pejse, stort køkken-alrum, stue, stor balkon, 2 badeværelser. Kan lejes som gruppe med vores anden lejlighed for op til 16 gæster.
Layout:
På 1. etage: (Køkken(kakkelovn, kogeplade, komfur, ovn, opvaskemaskine , køleskab, varme), soveværelse(, , dobbeltseng, Fjernsyn, Fjernsyn, radio, tremmeseng, varme), soveværelse(, , dobbeltseng, dobbeltsovesofa, Fjernsyn, Fjernsyn, radio, tremmeseng, varme), badeværelse(, toilet, bruser, håndvask, varme)) , , , , , loungerum(sauna), Internetadgang, Internetadgang, Førstehjælp, tørretumbler, vaskemaskine, balkon(balkon), varme, have(Grill center, Subtropisk badeland, Græsplæne, havemøbler, solstole, swimmingpool, Haveskur), parkering, liggestole(havemøbler), cykler til rådighed, trappegitter, strygebræt, strygejern, tørreskab, Ladestation til el-biler, Vaskeripakke mod et gebyr, telefon
Afstande fra ferieboligen og placering på kort
- Banegård 5 km
- Busstop 1 km
- Diverse 30 km
- Doktor 3 km
- Lufthavn 30 km
- Restauranter 500 m
- Shopping 4 km
- Skilift 10 km
Nærtliggende sommerhuse
Er I flere familier, der gerne vil bo tæt på hinanden kan I søge efter nærtliggende sommerhuseSe nabohuse
Priser og kalender
Kalender
Varighed
Pris
Periode
- Ankomst
- Afrejse
- Varighed
- 1 uge
Personer
Op til 6 personer
Bemærk
Ankomst er ikke valgt.